41 Viewforth, Edinburgh, EH10 4LA

Edinburgh, EH10 4LA
New
Pin View on map

Monthly Rental £2,250 PCM

House

Ground Floor Apartment

Bed

3 Bedrooms

Bathroom

1 Bathroom

Reception

1 Reception Room

Furnishing

Unfurnished

Calendar

Available From 13/02/2026

Pets

Pets Considered

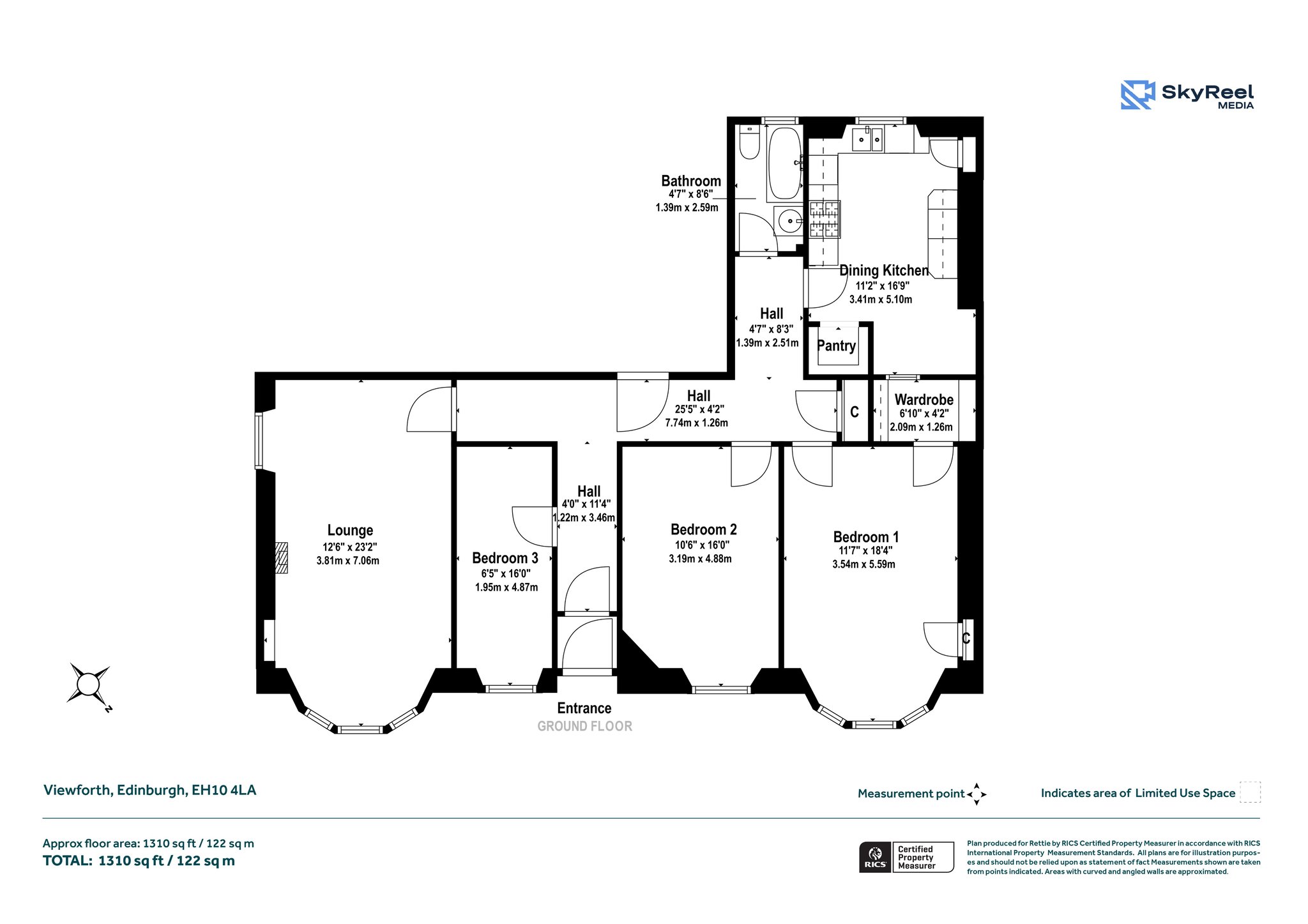
Size

122 sq.m

Parking

On Street/Permit

Telephone

Property Description

Beautiful, newly refurbished three-bedroom main door apartment on Viewforth. Perfect for professionals, or a family seeking generous living space in a prime location a stone’s throw from Bruntsfield and Morningside.

Accommodation comprises;
Main door entrance opens up to large hallway; Large living room with beautiful bay window and intricate cornicing; Spacious dining kitchen with ample worktop space and wall mounted and base units; Three good sized bedrooms, with ample storage; Newly fitted bathroom with shower over bath.

Property has access to the rear communal garden and there is on street permit parking.

Viewforth is located in the prestigious area of Bruntsfield, where residents have a vast array of local amenities on their doorstep, from award-winning restaurants, to boutiques, speciality shops, cafes and bars. The city centre and Haymarket Train Station can be reached on foot in approx 20-30 mins and regular buses connect Bruntsfield to the city centre and wider Edinburgh.

The open green space of Bruntsfield Links and The Meadows are a short stroll away.

More Details

Unfurnished
Deposit: £2,450
Landlord Registration: 1791877/230/04112
EPC: D
Council Tax: E
LARN1903047

Request More Details

Michael Logan

Michael Logan

Portfolio Manager
modern detached house with stone and timber cladding

Looking To Sell Or Let?

Rettie is one of the most trusted and well-respected names in property. Our unrivalled market knowledge helps people from around the world buy, sell, let and develop property in Scotland and the North East of England - from city apartments and rural cottages to large townhouses and prime country homes, farms and estates. We deal with some of the most prestigious properties on the market, but provide the same exceptional standards of service and value for money to all our clients.