Flat 9, 28 MacGinlay Terrace, Edinburgh, Midlothian, EH12 0BQ

Edinburgh, Midlothian, EH12 0BQ
Pin View on map

Monthly Rental £1,500 PCM

House

Upper Floor Apartment

Bed

2 Bedrooms

Bathroom

2 Bathrooms

Reception

1 Reception Room

Furnishing

Unfurnished

Calendar

Available Now

Parking

Off Street Parking

Telephone

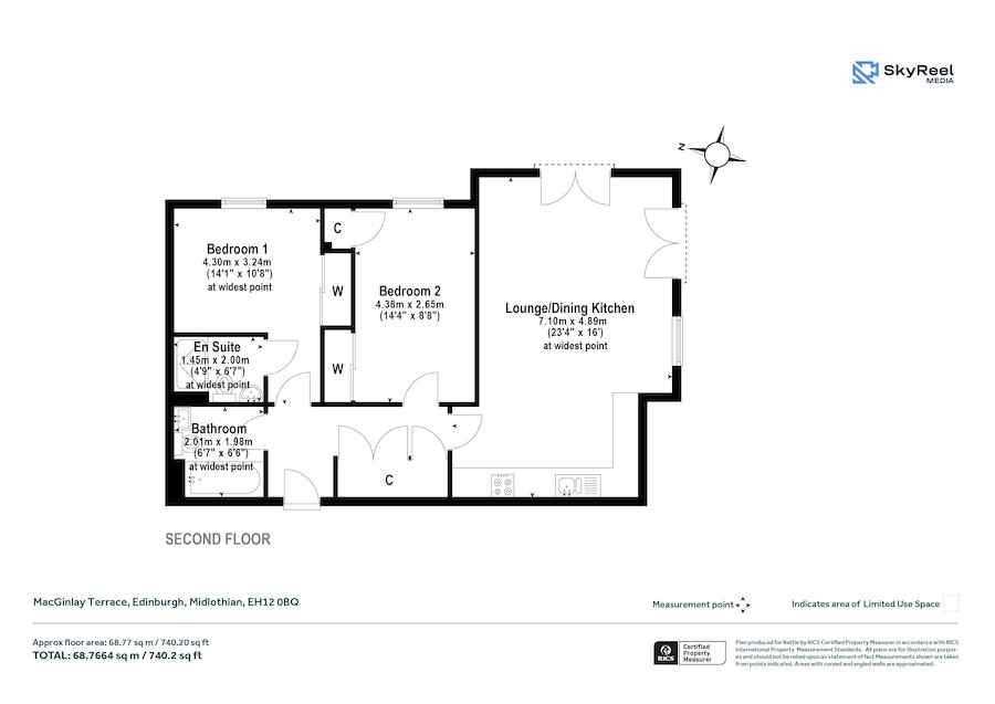
Property Description

Energy Rating A

Located in East Craigs, this bright and spacious unfurnished two bedroom apartment offers modern, energy-efficient living with excellent local amenities and transport links on your doorstep, ideal for professionals, couples, or small families looking for a high quality home in a well-connected part of Edinburgh.

Inside, the property features a generous open plan kitchen/lounge/dining area, creating an inviting space for everyday living and entertaining. The kitchen comes complete with white goods, including a built in washer dryer.

Both bedrooms are well proportioned, with the principal bedroom boasting its own ensuite. A second modern bathroom serves the rest of the property. The flat also offers excellent built-in storage throughout, ensuring a clutter free living environment.

A standout benefit of this home is its EPC rating of A, indicating exceptionally high energy efficiency and extremely low running costs, making it both comfortable and economical year round.

Additional features include off street parking, secure entry, and the convenience of a quiet, well-maintained development.

Situated in a desirable residential area, the property is just a short distance from local shops, cafés, supermarkets. Nearby attractions include Edinburgh Zoo, Murrayfield Stadium, and Carrick Knowe Golf Course. The area is exceptionally well served by public transport, providing fast links to Edinburgh City Centre, Edinburgh Airport, and the Gyle Business Park, while excellent road connections make commuting easy.

More Details

Deposit: £1700
EPC Rating: A
Council Tax Band: E
Landlord Registration: 1793721/230/04122
LARN1903047

Request More Details

Calum Chrystal

Calum Chrystal

Portfolio Manager
modern detached house with stone and timber cladding

Looking To Sell Or Let?

Rettie is one of the most trusted and well-respected names in property. Our unrivalled market knowledge helps people from around the world buy, sell, let and develop property in Scotland and the North East of England - from city apartments and rural cottages to large townhouses and prime country homes, farms and estates. We deal with some of the most prestigious properties on the market, but provide the same exceptional standards of service and value for money to all our clients.