2C Broughton Street Lane, Edinburgh, Midlothian, EH1 3LY
Property Description
Fantastic opportunity to rent a townhouse with small garden in the heart of the city
Stunning furnished, two bedroom new build mews house with private garden located on a quiet lane in Edinburgh's New Town area. Forming part of 'The Mews' Broughton Street Lane, this modern two bedroom mews style home is split over four levels. This stylish house has the benefit of being maindoor, and having its own private back garden. It is in a fantastic central location, minutes from the St James Quarter, but also on a quiet lane so enjoys the best of attributes.
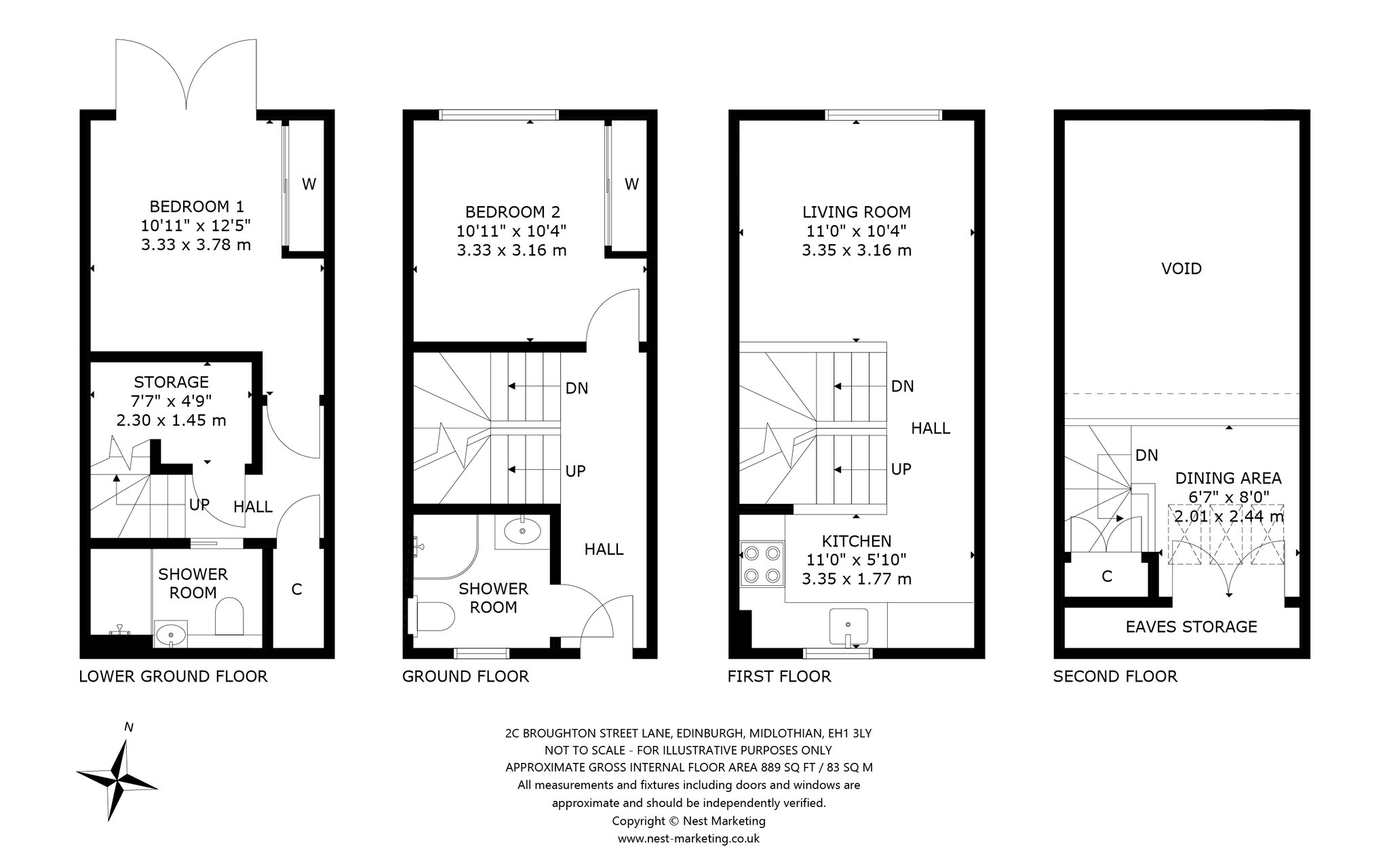
Accommodation comprises; main door entrance and hallway with staircase to all levels. Ground floor double bedroom with large built in wardrobe and shower room. On the first floor is the open plan living space, with sitting and dining area, and contemporary fitted kitchen with integrated appliances. A mezzanine level on the top floor overlooks the living space, which is currently set up as a dining area, or could be a wonderful working from home space. On the basement level is another shower room, two storage cupboards one with washing machine, and another double bedroom with spacious built in wardrobe and patio doors leading out to a private patio area. The property is warmed by air source central heating, double glazed throughout and permit parking on neighbouring streets.
Positioned just off Broughton Street, the property is within a 5 minute walk to the St James Quarter and the Omni cinema complex. While the property itself is on a quiet street, it is so close to an abundance of first-rate bars and restaurants on its doorstep. Waverley Train Station is a 10 minute walk away and there is convenient road access to the City bypass, Edinburgh international Airport and the motorway network, plus is also on the right side of town for easy access to the A1, whilst the tram terminus at the end of York Place is just a short walk as well.
The development has been built to be synonymous with traditional mews house style but with a modern twist. The property is beautifully bright with contemporary features such as a skylight, large windows and everything is finished to a very high specification.
More Details
Deposit £2150
EPC - B
Furnished
Council Tax Band: E
Landlord registration – 993254/230/07021
Scottish Letting Agent Registration – LARN1903047
Similar Properties
Looking To Sell Or Let?
Rettie is one of the most trusted and well-respected names in property. Our unrivalled market knowledge helps people from around the world buy, sell, let and develop property in Scotland and the North East of England - from city apartments and rural cottages to large townhouses and prime country homes, farms and estates. We deal with some of the most prestigious properties on the market, but provide the same exceptional standards of service and value for money to all our clients.

