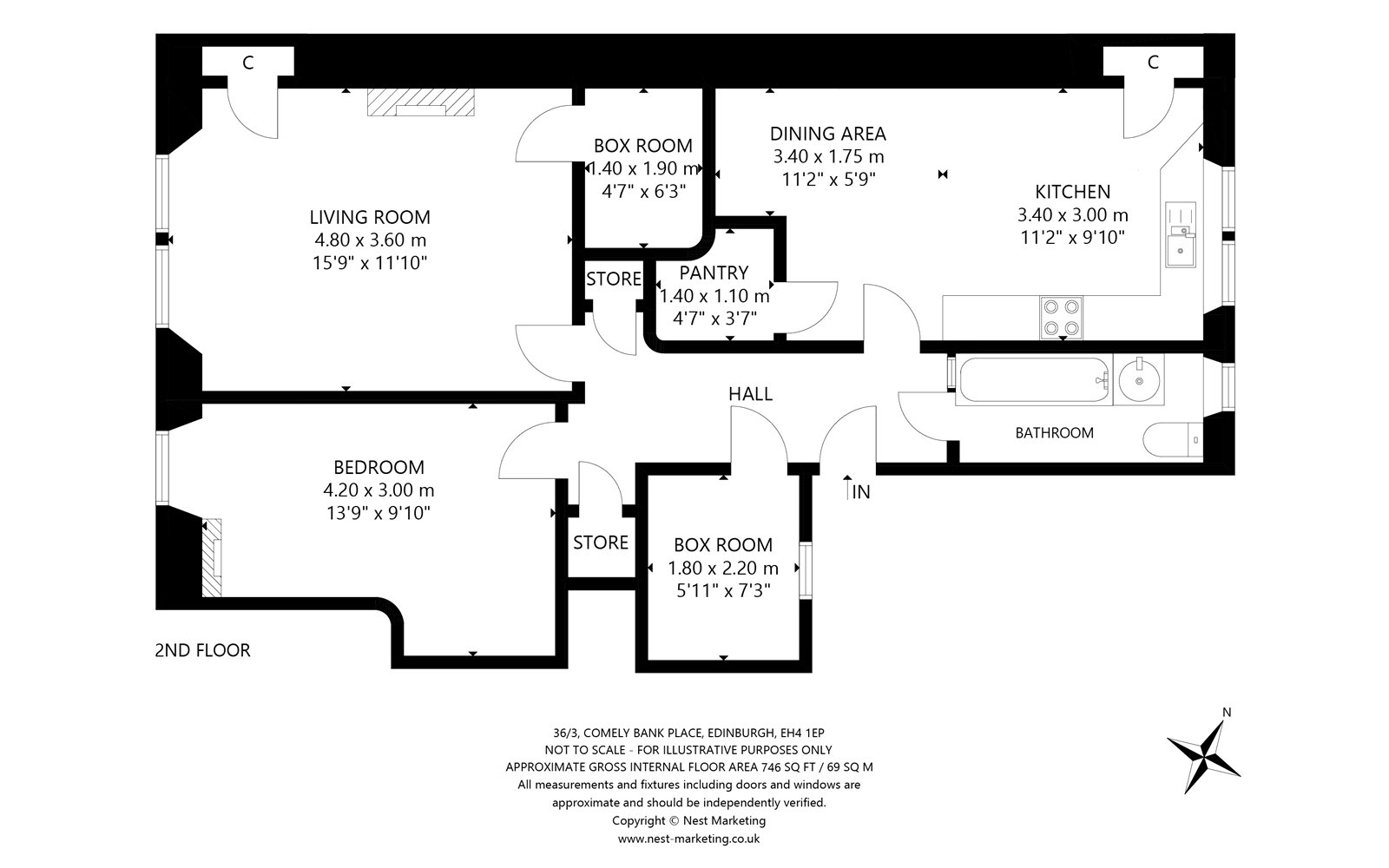
36/3 Comely Bank Place, Edinburgh, EH4 1EP

Edinburgh, EH4 1EP
New
Pin View on map

Monthly Rental £1,600 PCM

House

Upper Floor Apartment

Bed

1 Bedroom

Bathroom

1 Bathroom

Reception

1 Reception Room

Furnishing

Furnished

Calendar

Available From 14/01/2026

Size

63 sq.m

Parking

On Street/Permit

Telephone

Property Description

3D Tour Available!

Located in the highly sought after residential area of Comely Bank, this superb second floor flat forms part of a traditional Victorian tenement. The property lies within close walking distance of Stockbridge and the City Centre.

The accommodation comprises: hallway, large double bedroom, living room with box room off, further box room set up as a study, bathroom with shower over bath, large dining kitchen with pantry.

More Details

Deposit: £1,300
Furnished
Council Tax Band: D
EPC Rating: C
Landlord Registration: 1470180/230/05092
Agent Registration Number: LARN1903047

Request More Details

Iwona Wolinska

Iwona Wolinska

Senior Portfolio Manager
modern detached house with stone and timber cladding

Looking To Sell Or Let?

Rettie is one of the most trusted and well-respected names in property. Our unrivalled market knowledge helps people from around the world buy, sell, let and develop property in Scotland and the North East of England - from city apartments and rural cottages to large townhouses and prime country homes, farms and estates. We deal with some of the most prestigious properties on the market, but provide the same exceptional standards of service and value for money to all our clients.