Monthly Rental £1,850 PCM
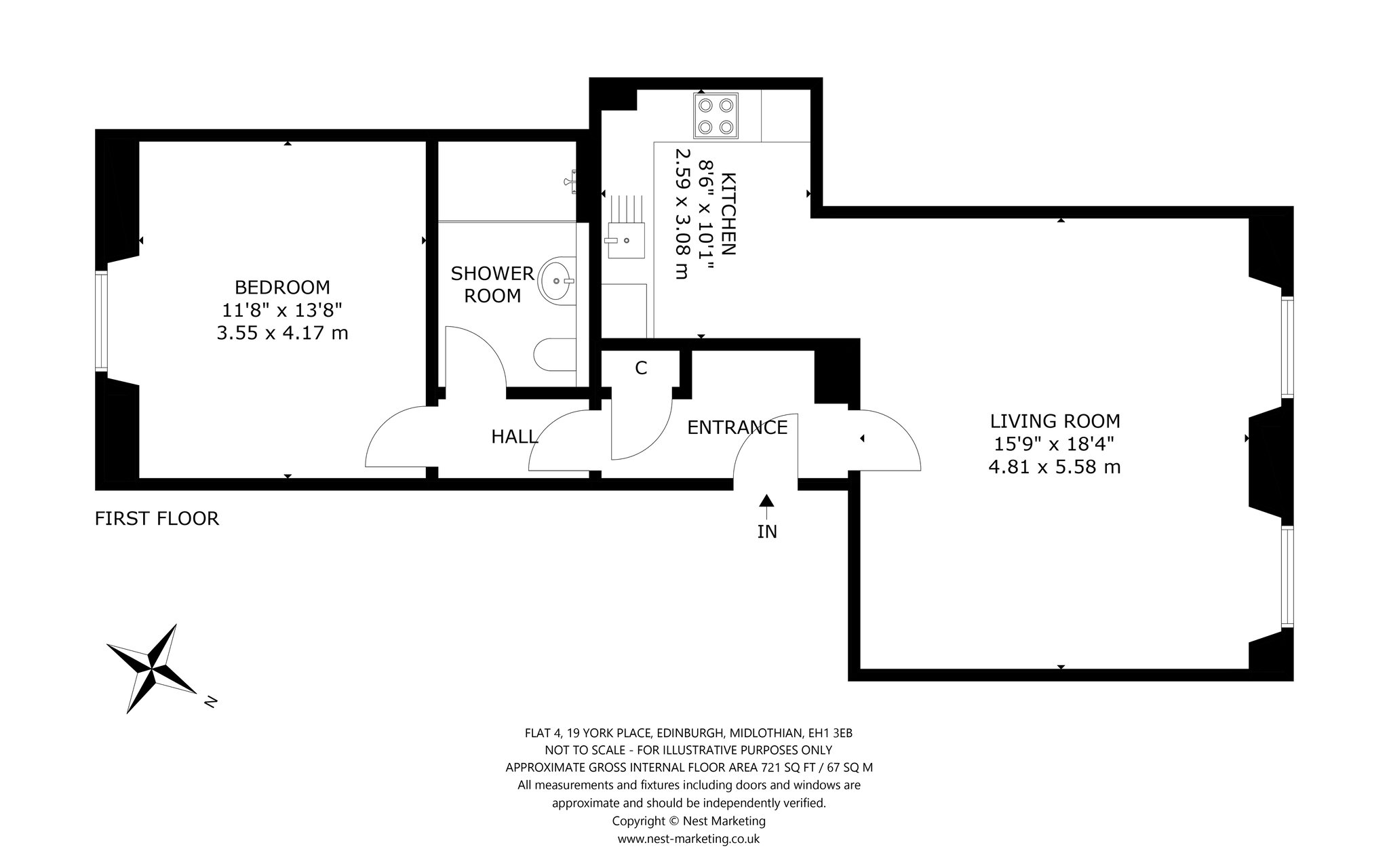
First Floor Apartment
1 Bedroom
1 Bathroom
1 Reception Room
Furnished
Available From 19/01/2026
66 sq.m
On Street/Permit
Property Description
Immaculate first floor high-end apartment, set within a charming B listed building, located right in the heart of Edinburgh.
Accommodation comprises;
Bright living room with high ceilings and large windows allowing a lot of light in and plenty space for a large dining table; Kitchen is set off the living room and has plenty of storage, integrated appliances and electric hob; Double bedroom which is set to the rear of the building which is particularly quiet and benefits from good storage; Stylist shower room with spacious walk-in shower.
Situated in the city's Georgian New Town, York Place enjoys an enviable, central location in one of Edinburgh's most desirable residential areas. The York Place tram stop is only moments away, providing access throughout the city and beyond, whilst also being walking distance of the main retail and commercial offerings of George Street, Princes Street, St Andrew Square and the new St James Centre. For everyday grocery shopping there is a Tesco Express nearby and a Tesco Superstore at Canonmills. The perfect city centre home.
More Details
Deposit: £2,050
Furnished
No Pets
EPC Rating: C
Council Tax Band: E
Landlord Registration Number: 512443/230/23031
LARN190304
Similar Properties
Looking To Sell Or Let?
Rettie is one of the most trusted and well-respected names in property. Our unrivalled market knowledge helps people from around the world buy, sell, let and develop property in Scotland and the North East of England - from city apartments and rural cottages to large townhouses and prime country homes, farms and estates. We deal with some of the most prestigious properties on the market, but provide the same exceptional standards of service and value for money to all our clients.























