Property Description
A magnificent five-bedroom Georgian terraced townhouse, set across three beautifully appointed floors, offering a prestigious and stylish home right in the heart of Edinburgh’s West End.
The property offers a blend of timeless elegance and modern luxury, and has been lovingly and comprehensively refurbished to the highest standards. Every element has been renewed with an eye for preserving its period charm, with corniced ceilings, elegant original features, and a tasteful fusion of classic and contemporary finishes.
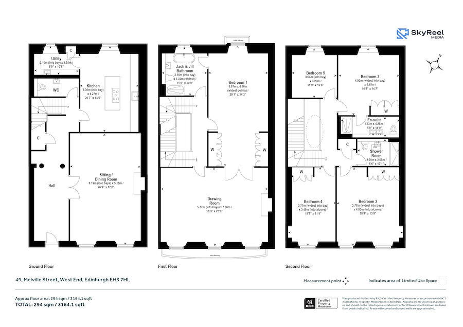
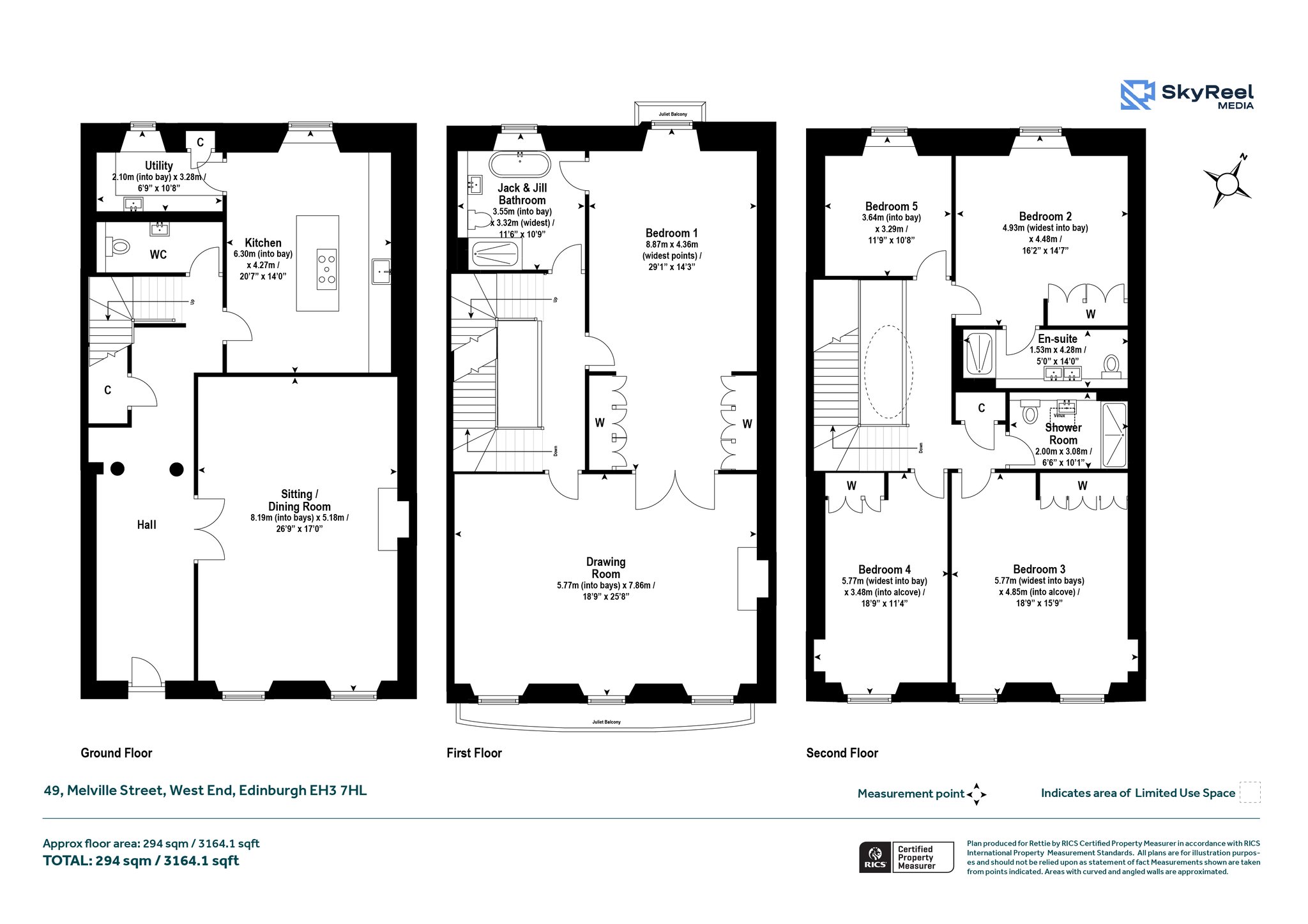
Accommodation Comprises
Ground floor – Grand entrance hallway with beautifully tiled floors by Museum, which run throughout the ground floor; Spacious living room with ample space for dining area; High-spec Rokpunkt kitchen complete with hot tap, induction hob, brand new Neff appliances and a central breakfasting island, ideal for both cooking and socializing; Adjoining utility room for convenience and the practicalities of daily life; WC; Stairs to first floor.
First floor – Landing; Beautiful full-width drawing room with original fireplace and three large south-facing windows, allowing plenty of natural light to flood the room; Huge double doors leading through to the principal bedroom suite, with dressing area and jack and jill ensuite bathroom, also accessed off the hallway; Stairs leading to second floor.
Second floor – Landing; Four double bedrooms, one with a stylish ensuite bathroom; Shower room.
On the upper floors, the townhouse boasts breathtaking views stretching out to Edinburgh Castle, providing a daily reminder of the city’s historic significance. With a reception room on the first and ground floors, they offer elegant spaces to relax or entertain, all while enjoying the refined ambiance of this period home.
There are two parking spaces to the rear of the property available by separate negotiation. There is no direct access from the property to the parking spaces.
Melville Street is a wide and handsome street, recently enhanced by the council’s meticulous paving upgrades, flanked by splendid Georgian architecture just moments from George Street and Princes Street. This central location offers a perfect blend of elegance and convenience, with boutique shops, cafés, fine dining, and green spaces such as Dean Gardens all within easy reach.
The neighbourhood provides excellent schooling, falling within the catchment of Flora Stevensons and St Mary’s primary schools, and Broughton and St Thomas of Aquin’s High schools. There are also a number of respected private schools within easy reach, including The Edinburgh Academy, Fettes College, George Heriot’s and St George’s.
Haymarket Station and tram services are under ten minutes’ walk away, while numerous bus routes and main roads offer effortless city and airport access.
PLEASE NOTE: Some of the images have been virtually staged to provide suggested room layouts.
More Details
Deposit: £7,700
Unfurnished
Council Tax Band: Pending
EPC Rating: C
Landlord Registration: 246879/230/14481
LARN1903047
Similar Properties
Looking To Sell Or Let?
Rettie is one of the most trusted and well-respected names in property. Our unrivalled market knowledge helps people from around the world buy, sell, let and develop property in Scotland and the North East of England - from city apartments and rural cottages to large townhouses and prime country homes, farms and estates. We deal with some of the most prestigious properties on the market, but provide the same exceptional standards of service and value for money to all our clients.
