Property Description
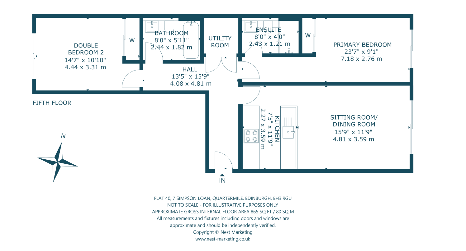
Situated on the fifth floor of a modern, well maintained development with lift access, this stylish two bedroom apartment offers comfortable contemporary living in a prime central location.
The property comprises two well proportioned double bedrooms, with the principal bedroom benefiting from a sleek en suite shower room. A further modern bathroom serves the rest of the apartment. The spacious open plan kitchen, dining and sitting room is finished to a high standard, providing a bright and versatile living space ideal for both everyday living and entertaining. A separate utility room and excellent built in storage throughout add to the practicality of the home.
Finished in a modern, neutral style, the flat feels light and airy and is thoughtfully laid out to maximise space. Residents also enjoy access to a shared garden, offering a welcome outdoor retreat. Please note there is no allocated parking with the property.
Located on Simpson Loan, the property is ideally positioned close to the Meadows, Bruntsfield and the city centre, with an excellent range of cafés, restaurants and local amenities nearby. The area is well served by public transport and is within easy reach of the University of Edinburgh, Quartermile, and Edinburgh’s historic Old Town, making it an ideal location for professionals or sharers seeking central yet peaceful living.
More Details
Furnished
Deposit: £3200
EPC: C
Council Tax: F
Landlord Registration: 1795562/230/13012
LARN1903047
Similar Properties
Looking To Sell Or Let?
Rettie is one of the most trusted and well-respected names in property. Our unrivalled market knowledge helps people from around the world buy, sell, let and develop property in Scotland and the North East of England - from city apartments and rural cottages to large townhouses and prime country homes, farms and estates. We deal with some of the most prestigious properties on the market, but provide the same exceptional standards of service and value for money to all our clients.
