0/2, 64 Strathblane Gardens, Glasgow, G13 1BX

Glasgow, G13 1BX
New
Pin View on map

Monthly Rental £1,050 PCM

House

Ground Floor Apartment

Bed

2 Bedrooms

Bathroom

2 Bathrooms

Reception

1 Reception Room

Furnishing

Unfurnished

Calendar

Available From 23/03/2026

Size

65 sq.m

Tree

Communal Garden

Telephone

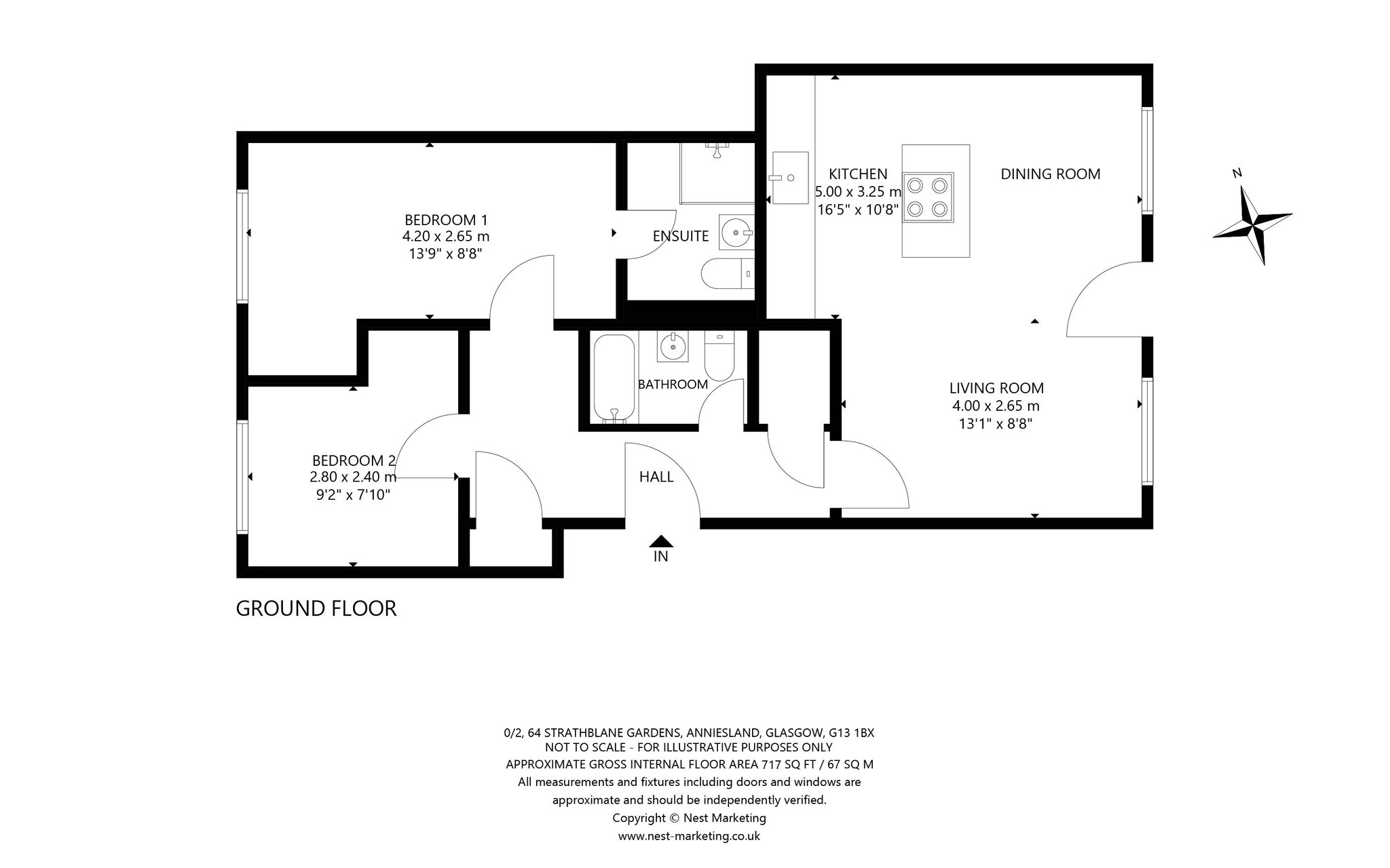
Property Description

Two bedroom flat occupying ground floor position within a popular and convenient modern development. Located in the highly accessible Anniesland area the property occupies a quiet position yet is exceptionally well placed to take advantage of a wide selection of amenities including numerous restaurants, cafés, bars, shops, as well as schools, excellent transport links and easy access to The David Lloyd Leisure Centre.

The interior is bright and includes a spacious, open plan living/kitchen/dining room, two double bedrooms, master en suite shower room and three piece bathroom. Additional features include well maintained communal garden ground and private residents’ parking.

Accommodation:

  • Security entry system
  • Communal entrance hall
  • Reception hall with storage cupboards off
  • Bright and spacious living/kitchen/dining room with patio doors
  • Bedroom one (master) with window to the rear
  • En suite shower room
  • Bedroom two with window to the rear
  • Three piece bathroom
  • Gas central heating
  • Double glazing
  • Well presented communal garden ground
  • Residents’ parking

Scottish Letting Agent registration: LARN1903047

More Details

Landlord registration: 1375189/260/24022
Council tax: C
EPC: C

Request More Details

Bailey Potter

Bailey Potter

Portfolio Manager
modern detached house with stone and timber cladding

Looking To Sell Or Let?

Rettie is one of the most trusted and well-respected names in property. Our unrivalled market knowledge helps people from around the world buy, sell, let and develop property in Scotland and the North East of England - from city apartments and rural cottages to large townhouses and prime country homes, farms and estates. We deal with some of the most prestigious properties on the market, but provide the same exceptional standards of service and value for money to all our clients.