Ground Floor, 41 Athole Gardens, Dowanhill, Glasgow, G12 9BQ
Monthly Rental £1,750 PCM
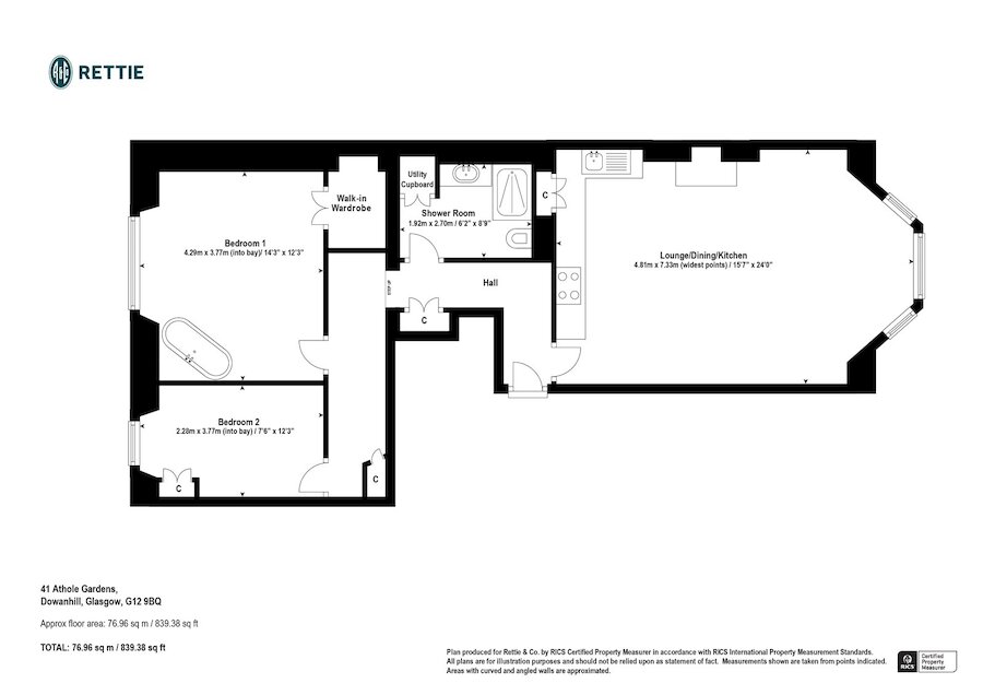
First Floor Apartment
2 Bedrooms
1 Bathroom
1 Reception Room
Unfurnished
Available From 06/02/2026
79 sq.m
Communal Garden
On Street/Permit
Property Description
Located a short walk from Byres Road, The Botanic Gardens and near Great Western Road this two-bedroom elevated ground floor conversion offers an exclusive, quiet and leafy Westend address overlooking one of the finest residents gardens the Westend has to offer. Internally, the current owner has undertaken one of the most sympathetic and tasteful renovations, and in doing so has seamlessly blended traditional new additions with the original features. The accommodation includes secure entry to a period communal hallway, entrance hall, bay windowed living room overlooking residents gardens, stunning open plan kitchen, two bedrooms and an exquisite shower room. Athole Gardens which dates to circa 1880 is a landmark ‘U’ shaped terrace of handsome blonde sandstone townhouses with central landscaped gardens to the front in the incredibly popular and convenient Dowanhill area.
UNFURNISHED
Scottish Letting Agent Registration: LARN1903047
More Details
Landlord registration: 1708363/260/04012
1708365/260/04012
Deposit £1950
Council tax: D
EPC: C
Similar Properties
Looking To Sell Or Let?
Rettie is one of the most trusted and well-respected names in property. Our unrivalled market knowledge helps people from around the world buy, sell, let and develop property in Scotland and the North East of England - from city apartments and rural cottages to large townhouses and prime country homes, farms and estates. We deal with some of the most prestigious properties on the market, but provide the same exceptional standards of service and value for money to all our clients.























































