2/1, 177 Finnieston Street, Glasgow, G3 8HE

Glasgow, G3 8HE
New
Pin View on map

Monthly Rental £1,500 PCM

House

Apartment

Bed

2 Bedrooms

Bathroom

1 Bathroom

Reception

1 Reception Room

Furnishing

Unfurnished

Calendar

Available Now

Size

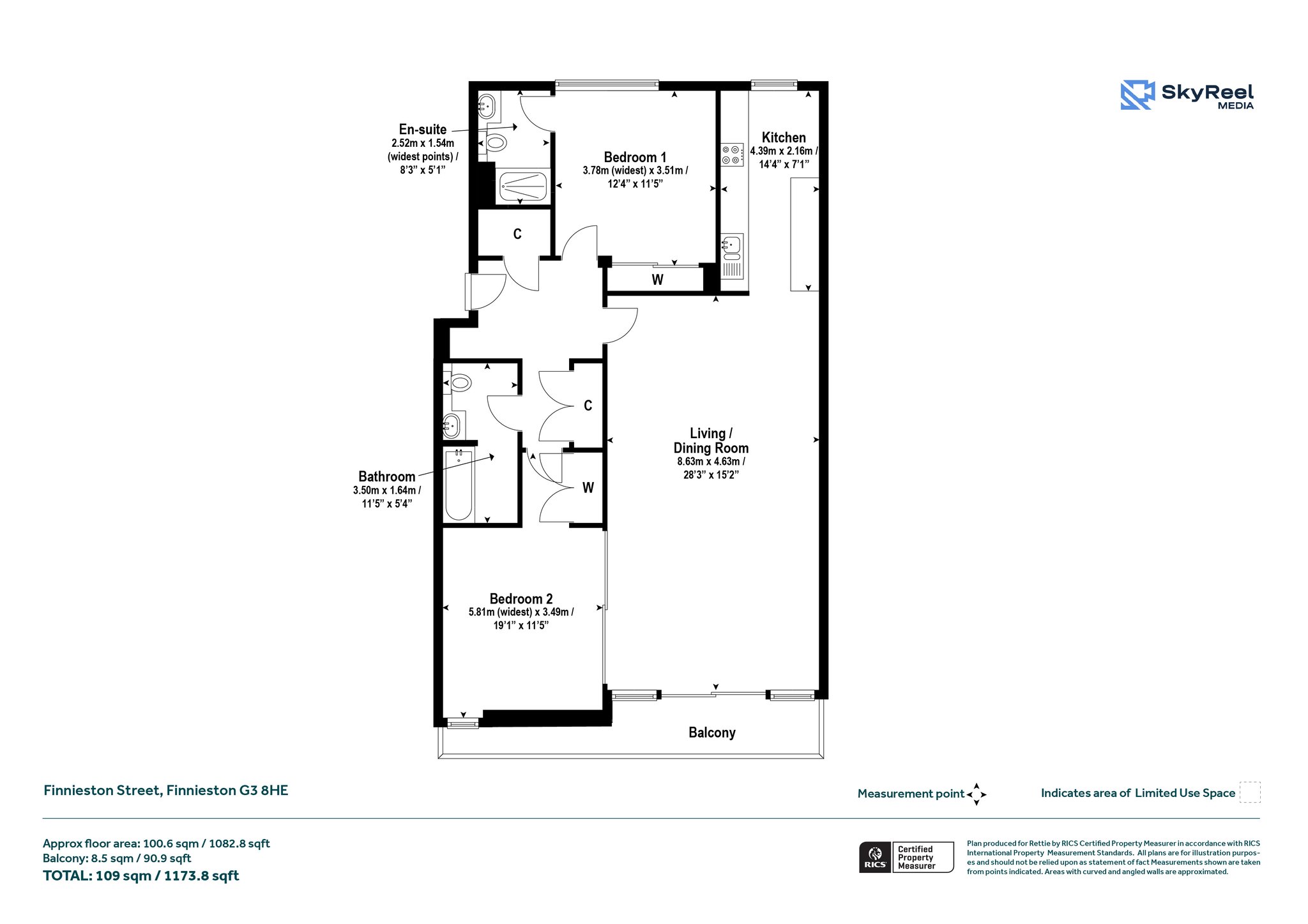
111 sq.m

Parking

Off Street Parking

Telephone

Property Description

This bright and generously proportioned river side apartment is exceptionally well located for nearby Finnieston, with a wealth of local amenities on Argyle Street and the City Centre’s Financial Services District.

Accommodation comprises security entry; communal entrance with lift or stair access to each floor; welcoming reception hall with utility and storage cupboard off, fabulous open plan living space with access to balcony; open plan dining area and sleek kitchen complete with a range of base and wall units, master bedroom with fitted storage and contemporary en suite shower room, the generously sized second bedroom also benefits from fitted storage; three piece bathroom with over bath shower.

The property further benefits from double glazing, private balcony and an allocated parking space.

Scottish letting agent registration: LARN1903047

More Details

Landlord registration: Pending
Deposit £1700
Council tax: F
EPC: C

Request More Details

Katrina Westhead

Katrina Westhead

Portfolio Manager
modern detached house with stone and timber cladding

Looking To Sell Or Let?

Rettie is one of the most trusted and well-respected names in property. Our unrivalled market knowledge helps people from around the world buy, sell, let and develop property in Scotland and the North East of England - from city apartments and rural cottages to large townhouses and prime country homes, farms and estates. We deal with some of the most prestigious properties on the market, but provide the same exceptional standards of service and value for money to all our clients.