1/1, 14 Belhaven Terrace, Dowanhill, Glasgow, G12 0TG

Dowanhill, Glasgow, G12 0TG
Pin View on map

Monthly Rental £2,950 PCM

House

Ground Floor Apartment

Bed

3 Bedrooms

Bathroom

3 Bathrooms

Reception

1 Reception Room

Calendar

Available Now

Size

201 sq.ft

Tree

Private Garden

Parking

On Street/Permit

Telephone

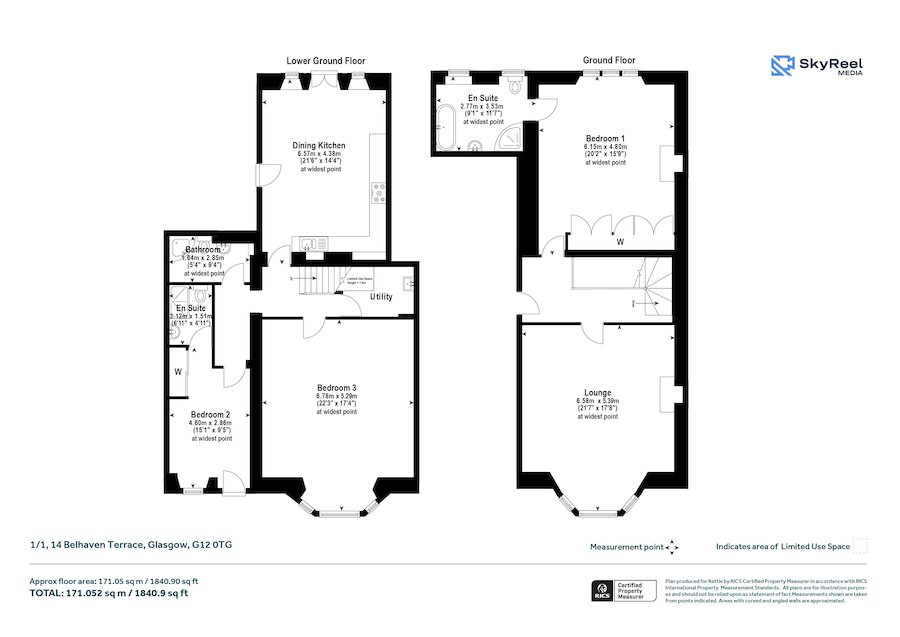
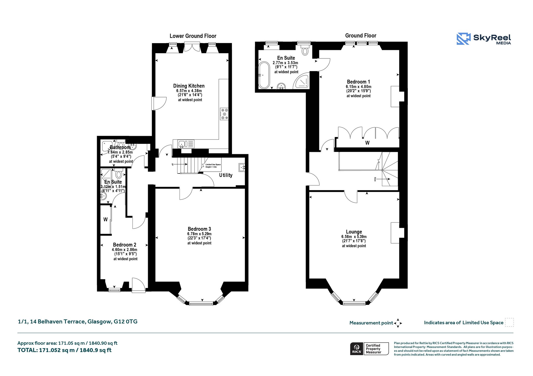
Property Description

Forming part of the prestigious Belhaven Terrace, this wonderful duplex apartment enjoys its own private garden.

This beautifully presented ground floor conversion offers spacious and flexible accommodation set over two levels.

The property is entered via a security entry door into a well-presented communal hall, with access to the apartment on the ground floor level. Accommodation comprises fabulous bay windowed lounge with feature fireplace, substantial principal bedroom with generous storage and ensuite bathroom with separate shower. Stairs lead to the lower ground floor accommodation which comprises modern dining kitchen with double doors leading to the private rear garden, double bedroom with ensuite bathroom and further bedroom which could be utilised as guest bedroom, home office, or second lounge.

An internal viewing of this property is strongly recommended in order to appreciate the style and quality of accommodation on offer.

Occupying a quiet residential locale, yet only moments from the bustling Byres Road and West End, there is an enviable selection of independent shops, bars and restaurants close at hand. The property is also conveniently placed for the University of Glasgow and the famous Botanic Gardens. The area is well served by regular public transport links to the city centre and beyond.

The landlord is flexible and can offer the property on a furnished or unfurnished basis.

Scottish letting agent registration: LARN1903047

More Details

Landlord registration: 258810/260/14171 / 1742534/260/08032
Deposit £3150
Council tax: F
EPC: C

Request More Details

Grace Reilly

Grace Reilly

Associate Director
Lauren Campbell

Lauren Campbell

New Business Coordinator
modern detached house with stone and timber cladding

Looking To Sell Or Let?

Rettie is one of the most trusted and well-respected names in property. Our unrivalled market knowledge helps people from around the world buy, sell, let and develop property in Scotland and the North East of England - from city apartments and rural cottages to large townhouses and prime country homes, farms and estates. We deal with some of the most prestigious properties on the market, but provide the same exceptional standards of service and value for money to all our clients.