25 Westfield Road, Berwick-upon-Tweed, Northumberland, TD15 1PT

Berwick-upon-Tweed, Northumberland, TD15 1PT
Sold SSTC
Pin View on map

Offers Over £150,000

House

Semi Detached House

Bed

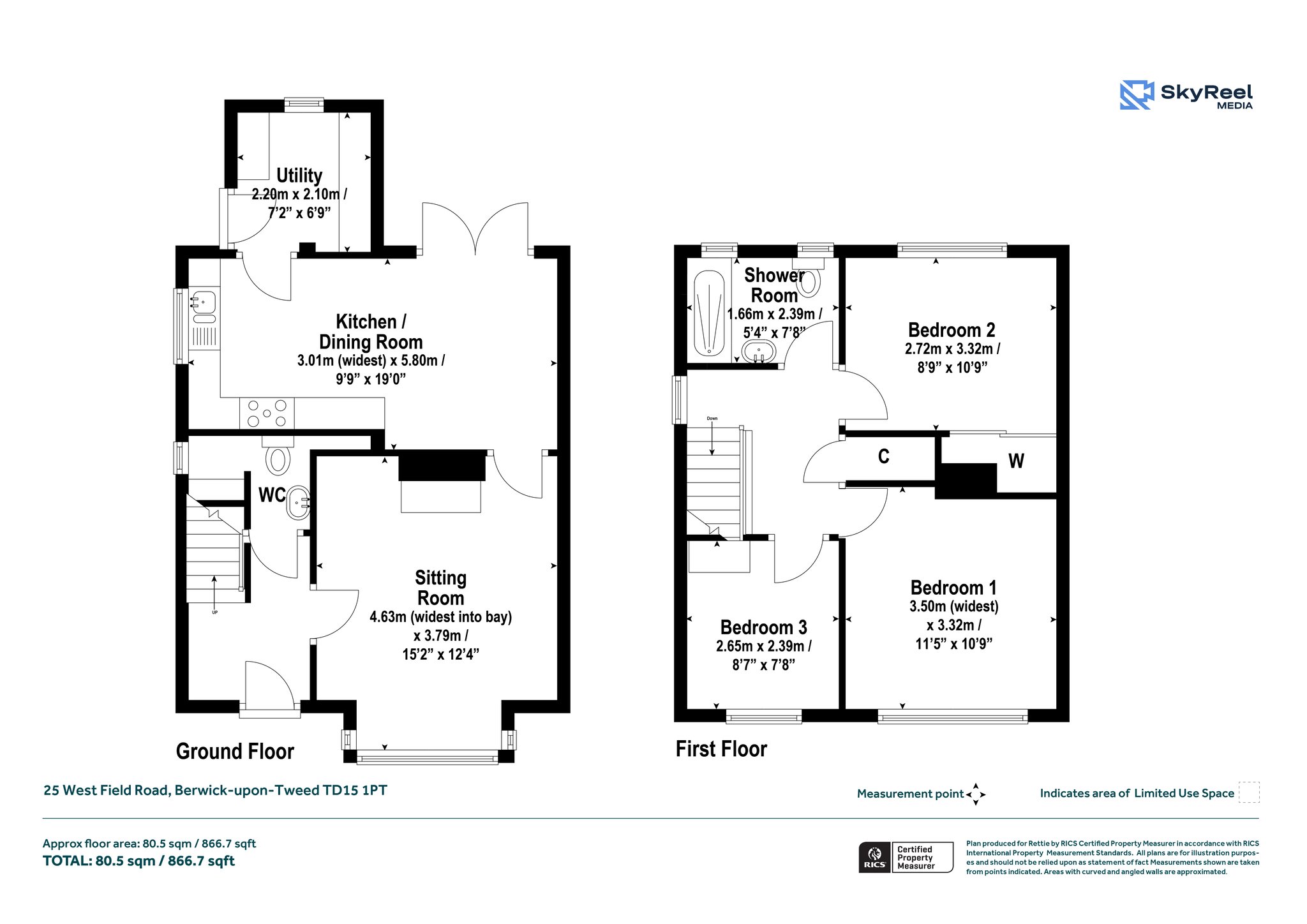
3 Bedrooms

Bathroom

1 Bathroom

Reception

1 Reception Room

Size

80 sq.m

Tree

Private Garden

Parking

On Street/Permit

Telephone

Property Description

CLOSING DATE SET: FRIDAY 7TH NOVEMBER AT 12NOON.

A well-presented semi-detached family home occupying a generous corner plot in a peaceful and sought-after residential area, within easy walking distance to the train station and town centre. The house offers a contemporary dining-kitchen and bathroom and gardens to the front, side and rear. There is also the potential to extend into the loft as the neighbouring property has done to create further living accommodation.

Accommodation Comprises

Ground Floor: Hall, Cloakroom, Sitting Room, Dining-Kitchen, Utility Room.

First Floor: Landing, Two Double Bedrooms, Single Bedroom, Family Bathroom.

Outside: Landscaped Gardens, Unrestricted On-Street Parking.

Distances: Berwick Railway Station 0.5 mile, Edinburgh 56 miles, Newcastle 65 miles (all distances are approximate).

More Details

Tenure: Freehold
Listed: The property is not listed.
EPC: C (69)
Council Tax Band: A
What3words: loose.prefer.bravo
Services: Mains Water, Electricity, Drainage, Gas Central Heating.

Contact Us

Amy Brown

Amy Brown

Associate Director
Mortgage Calculator
Monthly payments
Please set an interest rate.

Your home may be repossessed if you do not keep up repayments on your mortgage. There may be a fee for mortgage advice. The actual amount you pay will depend upon your circumstances.

Tax Calculator
LBTT calculator for properties purchased in Scotland. Stamp Duty calculator for properties purchased in England.
Land & buildings transaction tax (LBTT)
= £0
New build house with stone and timber cladding

Looking To Sell Or Let?

Rettie is one of the most trusted and well-respected names in property. Our unrivalled market knowledge helps people from around the world buy, sell, let and develop property in Scotland and the North East of England - from city apartments and rural cottages to large townhouses and prime country homes, farms and estates. We deal with some of the most prestigious properties on the market, but provide the same exceptional standards of service and value for money to all our clients.