659 Stirling Road, Cumbernauld, Glasgow, G67 4AB
Property Description
- Fabulous detached family home dating from mid 19th century
- Located in peaceful semi-rural hamlet to the outskirts of Cumbernauld
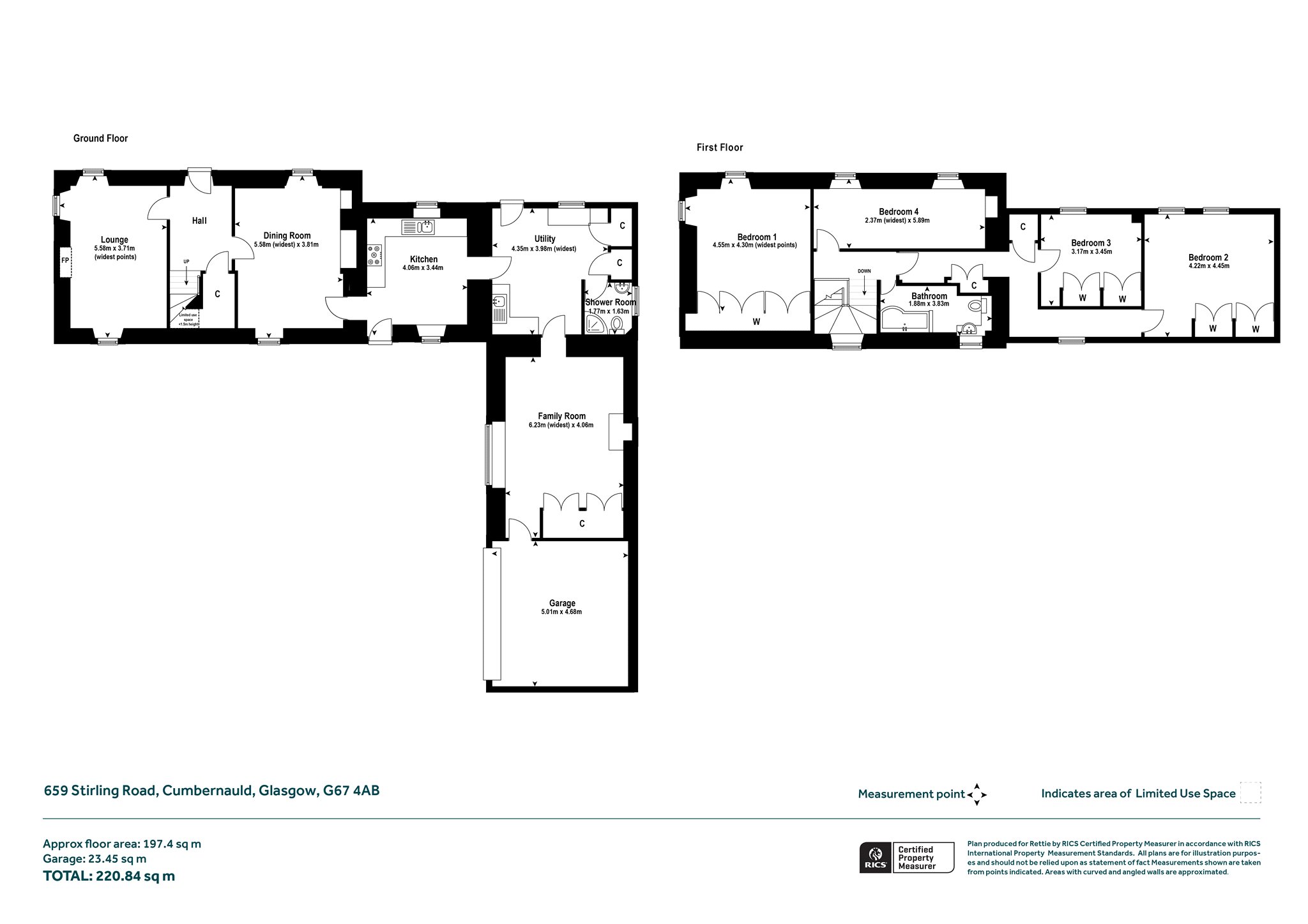
- Abundant period charm, seven principal apartments (four bedrooms/three public rooms), floor space of approx. 2,124 ft²
- Set within large and well established walled garden grounds
- Presented to market in fantastic condition
- Well retained period features
- Superb for access to Glasgow City Centre
- Gated entry, driveway parking, double garage
Thought to have been constructed c.1860, ‘Applecross’ is a simply charming detached family home set amongst beautiful walled garden grounds. The property here is set upon the largest plot in the intimate hamlet of Luggiebank (south of Cumbernauld) and offers a hugely appealing marriage of semi-rural privacy/tranquility and accessibility, with the Glasgow City Centre located just 13 miles away and accessible via the M80. A really special property and one deserving of prompt first hand inspection.
Summary of Accommodation
- Reception hallway with staircase
- Lounge with multi
- aspect window formations and log burning stove
- Formal dining room
- Family Room ( or bedroom 5)
- Kitchen
- Utility Room
- Shower Room
- Family bathroom
- Four bedroomsExternally, there are expanses of lawn detailed with a selection of shrubs and mature trees. Sections of hard landscaping offering plenty of space for al
- fresco dining.
Situation
Luggiebank is a small village to the south of Cumbernauld that is well located for access to local schools and public transport. Cumbernauld town centre offers an array of amenities including supermarkets, health and recreational facilities, bars and restaurants. The area is particularly well served for access to the City Centre with good access to the road network and, subsequently, the motorway network.
SAT NAV REF: G67 4AB
EPC BAND : D
COUNCIL TAX BAND : F
Epc: Band D
More Details
Situation: Private Garden
Council Tax Band: F
Tenure: Contact Branch
Your home may be repossessed if you do not keep up repayments on your mortgage. There may be a fee for mortgage advice. The actual amount you pay will depend upon your circumstances.
Similar Properties
Looking To Sell Or Let?
Rettie is one of the most trusted and well-respected names in property. Our unrivalled market knowledge helps people from around the world buy, sell, let and develop property in Scotland and the North East of England - from city apartments and rural cottages to large townhouses and prime country homes, farms and estates. We deal with some of the most prestigious properties on the market, but provide the same exceptional standards of service and value for money to all our clients.
