Property Description
- Extended/sympathetically developed four bedroomed semi-detached bungalow
- Dating from the 1930s – attractive stone façade, seamless marriage of traditional & modern
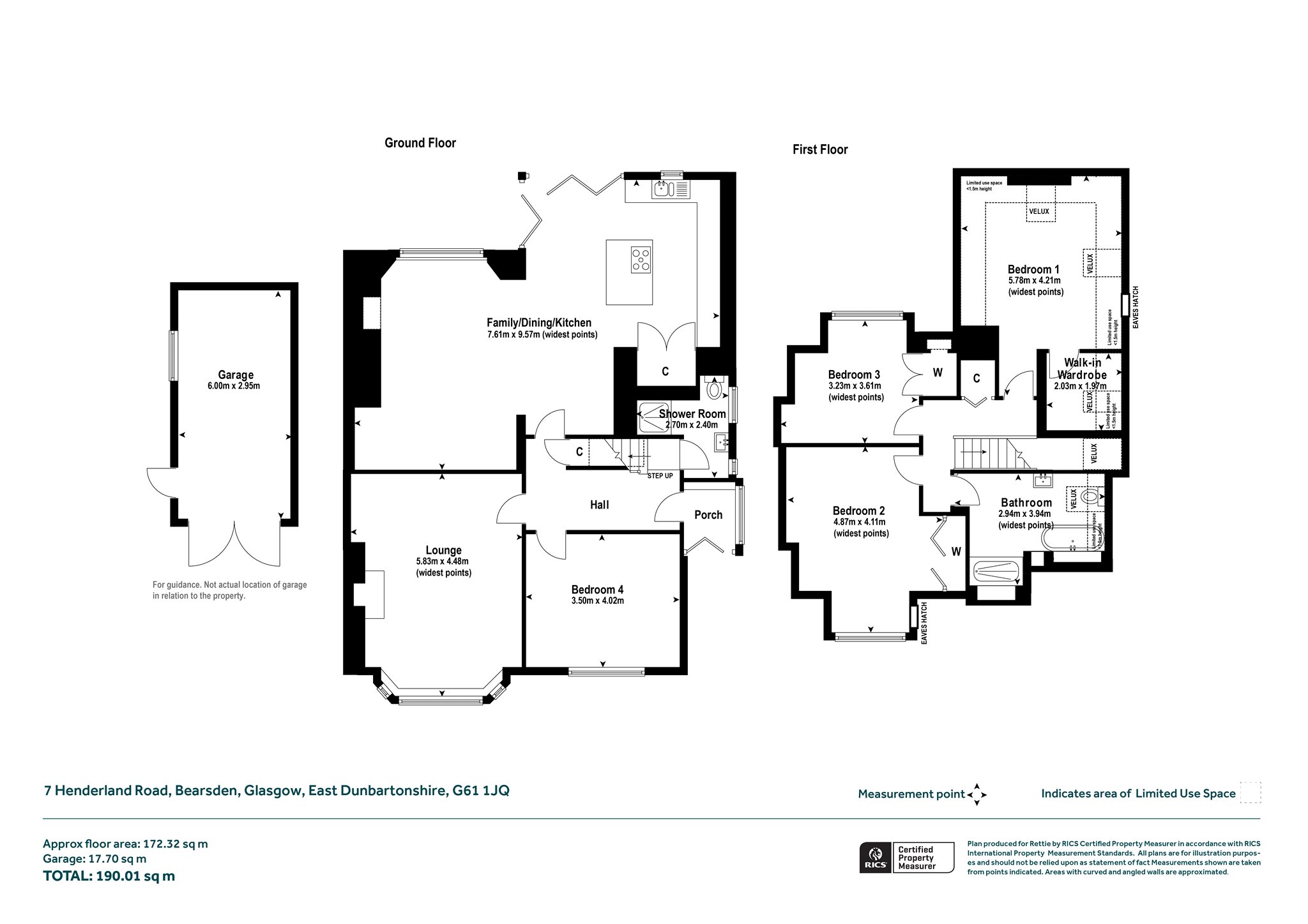
- Four bedrooms, two fabulous public areas, floor space over 1,850 sq.ft
- Stunning open plan living/dining/kitchen space – the heart of the home
- Professionally landscaped and beautifully arranged garden space – south facing to rear
- Off street driveway parking and detached garage
- Double glazing and gas central heating
One of only two of its kind, this simply charming semi-detached bungalow was originally constructed in the 1930’s and has, over time, been significantly and successfully developed and extended to create what now stands as an initially charming/unassuming yet hugely impressive home of six roomy principal apartments (including an outstanding living/dining/kitchen space). A wonderful home that will draw interest from those varying in age & stage, with early viewing advised.
Initial inspection will impress – gated driveway, blonde stone façade, double storm door entry and a backing of mature tree line – a lovely first impression. It is, however, assessment of the rear elevation that will better showcase the space on offer here. Internally, our clients have employed neutral decorations across the accommodation which accentuates the feeling of space and light found in all of the principal apartments. Contemporary, good quality fixtures and fittings to be found throughout.
Summary of Accommodation
- Storm door entry through to porch
- Recpetion hallway with staircase to first floor, storage off
- Bay windowed lounge with feature fireplace
- Family/dining/kitchen space – kitchen with central island, handleless units, quality appliances, larder cupboard
- Shower room and large family bathroom
- Four bedrooms – walk in wardrobe off principal bedroomExternally, the property features fabulous garden space to front and rear, with the rear garden featuring an attractive combination of lawn, raised beds and hardscaping. There is also a lovely backdrop onto the mature treeline of the Cairnhill Woods.
Situation
The property is located within the Switchback district and, within it, a particularly appealing address. It falls within the catchment for Westerton Primary and Boclair Academy schools and is but a short walk from the local beauty spot of Cairnhill Woods and the railway station at Westerton. Additionally, there are regular bus services into the West End and City from nearby Switchback Road and Maryhill Road.
Sat Nav Ref: G61 1jq
EPC : BAND C
COUNCIL TAX : BAND F
TENURE : FREEHOLD
More Details
Situation: Private Garden
Council Tax Band: F
Tenure: Freehold
Your home may be repossessed if you do not keep up repayments on your mortgage. There may be a fee for mortgage advice. The actual amount you pay will depend upon your circumstances.
Similar Properties
Looking To Sell Or Let?
Rettie is one of the most trusted and well-respected names in property. Our unrivalled market knowledge helps people from around the world buy, sell, let and develop property in Scotland and the North East of England - from city apartments and rural cottages to large townhouses and prime country homes, farms and estates. We deal with some of the most prestigious properties on the market, but provide the same exceptional standards of service and value for money to all our clients.

