Property Description
- Two bedroom Semi-Detached all-on-level House.
- Former stable building to Victorian mansion.
- Stylish modern interior and specification contrast traditional exterior.
- Wonderfully private situation and garden.
- Very convenient for amenities and shops.
- Gas CH, double glazing, alarm, wood burning stove.
- Double car port and large shed.
- Gated driveway. Ample parking provision.
- At end of private, dead-end, lane.
- Ideal home for couples or individuals.
Stables Cottage is a traditional Semi-Detached House (all-on-level) that originally formed part of the stables to the B-Listed mansionhouse, Carrick Arden, that lies to the south.
The character of the original building, with its handsome façade and shallow pitched slated roof, has been maintained, the post-war rear extensions turning it into an appealing, and somewhat unique, two bedroom home.
It comes with a gas central heating system with an efficient Ideal Logic Combi 30 boiler. The uPVC framed double glazed windows in the bedrooms, bathroom, and lounge rear window, were installed about eight years ago, the timber framed windows elsewhere (side window of the lounge, hall, and kitchen) are older. The rear kitchen door (double glazed uPVC) was renewed only this year (2023). The kitchen was installed in 2008 and has smart charcoal grey coloured (matt finish) units and cool ‘Metro’ wall tiling, and in the same year the bathroom was also renewed with the impressive four-piece suite and tiling.
The setting of the house is definitely one of its key assets. It is very privately set at the end of Beechwood Lane behind a high brick Victorian wall, substantial iron driveway gates, and a bank of mature trees/planting. The sweeping gravel driveway leads around the house to a double car port and parking area to the rear/side of the property. Parking provision can be for as many as ten cars. The front garden is a lovely area and well planted, the rear garden a more modest space and arranged as a sheltered patio garden. Access to Bearsden’s excellent amenities is easy via either Drymen Road or Milngavie Road, both very nearby.
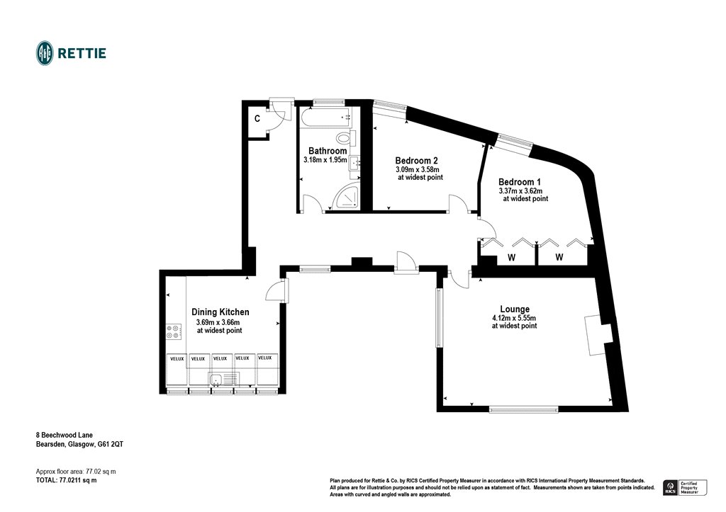
Accommodation
- Hall – this is a generous entrance to the house with a wide L-shaped arrangement running through the spine of the property, finished in gorgeous limestone. Window and a glass panelled door to the rear patio garden.
- Lounge – one of the extensions to the property, this is a spacious room, accentuated by its high vaulted ceiling and its double aspect (windows to the south and to the west). It is bright and freshly decorated and features industrial style wall lights and at the focal point of the room is a brick fire surround, with a chunky wooden mantel, and inset a wood burning stove.
- Kitchen – also an extension, this is quite a feature space with a bank of five windows across the back, matched by five further windows set into the roof pitch. These have an extra single glazed layer, to create, effectively, triple glazing. White wooden window shutters. Appliances include – four burner gas hob, double oven with grill, filter cooker hood, fridge, freezer, and washing machine. Plenty of space for a table and chairs. A lovely room.
- Bedroom 1 – a double bedroom with a window to the front and a feature curved wall. It has a good run of fitted wardrobes along one wall.
- Bedroom 2 – a slightly smaller double bedroom also with window to the front.
- Bathroom – fully tiled, there is a smart four piece white suite with WC, WHB, bath and a shower enclosure, in which there is a powerful thermostatic shower. Chrome towel radiator.
The house is alarmed and extends to securing the garden shed. External lights are on the front of the house and side, the front garden fence, the car port and to the rear garden, operating on dawn to dusk sensors. A movement sensor in the car port activates a floodlight.
Situation
Stables Cottage is within the Conservation Area of Bearsden and is very handily situated off Drymen Road at the end of Beechwood Lane. As detailed earlier, access to Bearsden’s excellent shops and amenities is easy via Drymen Road or walking through Carrickarden Road to Milngavie Road where you will find the shops at Kessington. Not far away is Bearsden railway station (less than half a mile), where there is a late opening Co-op store and just north of this is the heart of the town being Bearsden Cross, where you will an excellent selection of quality independent retailers, cafés and restaurants, a well stocked post office and a Marks & Spencer’s Food Hall. As well as the railway station (there are others within Bearsden at Hillfoot and Westerton) there are regular bus services on both Drymen Road and Milngavie Road.
Sat Nav Ref: G61 2qt
EPC : BAND D
COUNCIL TAX : BAND F
TENURE : FREEHOLD
More Details
Situation: Private Garden
Council Tax Band: F
Tenure: Freehold
Your home may be repossessed if you do not keep up repayments on your mortgage. There may be a fee for mortgage advice. The actual amount you pay will depend upon your circumstances.
Similar Properties
Looking To Sell Or Let?
Rettie is one of the most trusted and well-respected names in property. Our unrivalled market knowledge helps people from around the world buy, sell, let and develop property in Scotland and the North East of England - from city apartments and rural cottages to large townhouses and prime country homes, farms and estates. We deal with some of the most prestigious properties on the market, but provide the same exceptional standards of service and value for money to all our clients.
