Property Description
- Detached four bedroomed villa with cul-de-sac setting
- Large corner plot with amazing views of Campsie Fells
- Popular Milton of Campsie location
- Off street driveway parking and attached garage
- Fresh carpeting throughout, contemporary PVCu double glazing
- Great potential for extension (subject to necessary permissions/warrants)
- Great garden space
Positioned on a larger than typical corner plot at the entry to an intimate cul-de-sac of just three detached homes, No.1 Marley Way is an impressive four bedroomed detached property that affords exciting scope for growing and established families looking to settle in the quiet and leafy East Dunbartonshire village of Milton of Campsie. The property has been under the same ownership for a number of years, having been very well maintained across said duration, with any incoming purchasing party affording exciting scope to implement their own themes and ideas to a home brimming with potential.
The corner plot position (and resultant additional space associated with the plot) provides exciting potential for significant extension (without being to the detriment of the garden space), where any work should be carried out via appropriate consents from the local authority. In all, an exciting opportunity for a wide variety of buyers with early first-hand inspection encouraged and advised.
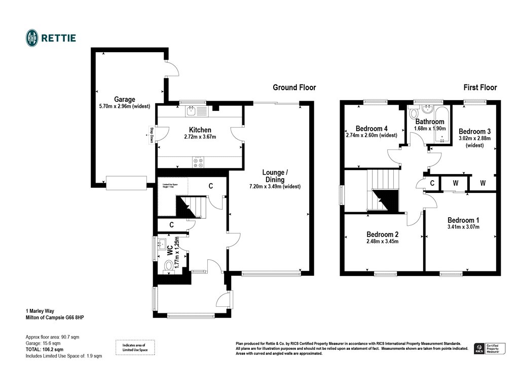
Our suite of HDR images, 360° immersive tour, HD video and floorplan will allow for thorough desktop appraisal of the property, with a summary of the accommodation to be found as follows:-
Summary of Accommodation
- Entrance vestibule with room for shoes/coats
- Reception hallway with staircase, cloakroom w.c and generous storage
- Large open plan lounge/dining area – sliding doors to rear garden
- Fitted kitchen – integrated grill/oven, four burner stove, oak cabinetry
- Courtesy door from kitchen into attached garage
- Tiled three
- piece family bathroom, over bath shower
- Four bedrooms – two larger doubles, two good sized single rooms
There is good garden space to both the side and rear of the property – well established, entirely level and with areas of lawn and stone paviours marrying to great effect. An ideal space for chil’s play, al fresco dining and gardening pursuits.
Situation
The property is in a quietly positioned development off Birdston Road and is in easy reach of the local village amenities including Craighead Primary School and good selection of shops. Excellent road links (access to M80 via Stepps) provide easy access to Glasgow City Centre (just over twelve miles away by road and with a regular bus service). Good golf courses and the impressive natural splendour of the Campsie Fells are all to be found nearby.
Sat Nav Ref: G66 8hp
COUNCIL TAX : BAND E
EPC : BAND C
TENURE : FREEHOLD
More Details
Situation: Private Garden
Council Tax Band: E
Tenure: Freehold
Your home may be repossessed if you do not keep up repayments on your mortgage. There may be a fee for mortgage advice. The actual amount you pay will depend upon your circumstances.
Similar Properties
Looking To Sell Or Let?
Rettie is one of the most trusted and well-respected names in property. Our unrivalled market knowledge helps people from around the world buy, sell, let and develop property in Scotland and the North East of England - from city apartments and rural cottages to large townhouses and prime country homes, farms and estates. We deal with some of the most prestigious properties on the market, but provide the same exceptional standards of service and value for money to all our clients.
