Tigh Geal, Station Road, Rhu, Helensburgh, Argyll and Bute, G84 8LW
Offers Over £1,200,000
Detached House
5 Bedrooms
4 Bathrooms
4 Reception Rooms
Private Garden
Double Garage
Off Street Parking
Property Description
Architecturally designed exquisite hillside home with over 5,000 sq ft of space, panoramic views and approx 3.3 acres of private grounds.
At a Glance
Over 5,000 sq ft of beautifully proportioned accommodation
Elevated position with panoramic views of Gare Loch and Clyde Estuary
Circa 3.3 acres of landscaped gardens, mature woodland, and tennis court
Five bedrooms, four bathrooms (all ensuite)
Eclectic interiors with natural materials and bespoke finishes
Key open-plan spaces, ideal for entertaining
Extensive outdoor terraces and balconies
Integrated double garage and long, tree-lined, driveway approach
Peaceful yet accessible location, 2 miles from Helensburgh
Excellent travel links to Glasgow and beyond
A Modernist Masterpiece, Hidden in Nature
Nestled into the hillside above Rhu and surrounded by mature woodland, Tigh Geal is a remarkable 1970s residence that blends iconic architecture with timeless design. Translating to The White House in Gaelic, this bespoke family home offers a rare sense of privacy and tranquillity, with expansive views sweeping across the Gare Loch, Rhu Point and the Clyde estuary.
Built circa 1976 and owned by the same family since 1987, Tigh Geal has been meticulously maintained and sympathetically updated, preserving the mid-century soul of its design aesthetic while adding modern comfort. Full-height glazing, multiple balconies, and extensive open-plan interiors characterise this unique home — designed to bring the outside in.
It is a a home of singular style and one of striking design, conceived from the advantages of its delightful private hillside setting, the adjoining countryside and woodlands, and the southwards views to the Gare Loch.
Outdoor Living
Designed for outdoor enjoyment and relaxation.
Multiple terraces for entertaining and quiet seating.
Mature trees providing natural shade and privacy.
Large, well-maintained lawn.
Ornamental fish pond adding charm and tranquility.
Private tennis court for recreation.
Grounds extending to approximately 3.3 acres, offering:
Peace and seclusion.
Abundant space for leisure, gardening, and nature watching.
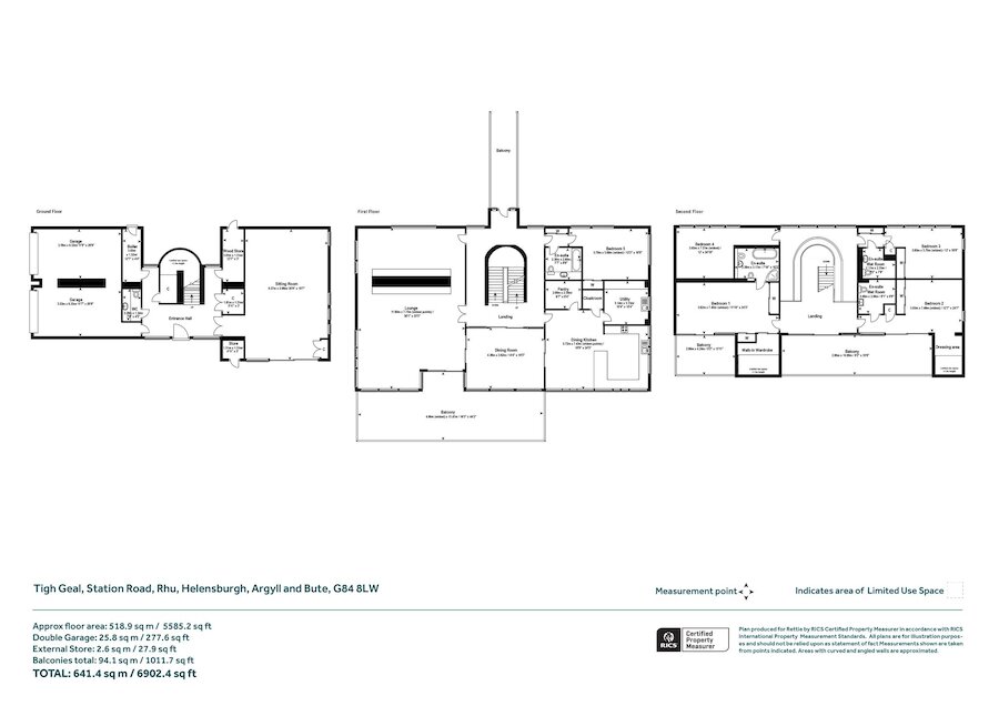
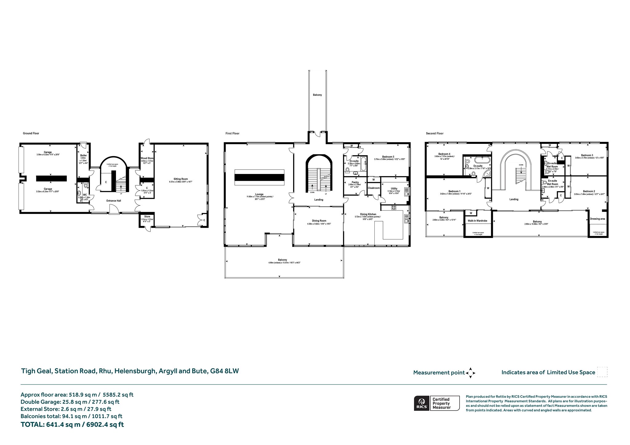
Ground Floor
- Impressive entrance portico and expansive terrace.
- Broad reception hall with elegant proportions.
- Spacious living room ideal for entertaining.
- Convenient WC/cloakroom.
- Ample storage areas, including:
o Internal storage room.
o External store.
o Dedicated wood store.
• Boiler room for efficient home management.
• Large integrated double garage with internal access.
First Floor
• Stunning galleried hall creating a dramatic central space.
• Elegant lounge and separate sitting room for relaxed living.
• Formal dining room for entertaining.
• Substantial sun terrace/balcony offering beautiful views.
• Spacious dining kitchen with:
. Adjacent walk-in pantry.
. Separate utility room.
• Guest cloakroom.
• Generous double bedroom with private ensuite bathroom.
Second Floor
• Landing with access to an additional large sun terrace.
• Luxurious principal bedroom suite featuring:
o Walk-in wardrobe.
o Ensuite bathroom.
o Private sun terrace.
• Two further double bedrooms, each with:
o Ensuite wet/shower rooms.
• Additional bedroom or flexible home office space.
Located in Rhu, a picturesque village 2 miles west of Helensburgh, the property enjoys easy access to local sailing clubs including the Royal Northern & Clyde Yacht Club, hill walking routes, and coastal waters. The western shore of Loch Lomond are just over 7 miles away with the world famous Loch Lomond Golf Club on the same flank, by Luss. Helensburgh provides a full range of shops, restaurants, schools (including the private Lomond School), and leisure facilities. For broader amenities, Glasgow is just 28 miles away, easily reached by car or train.
Transport Links
Helensburgh Central: direct services to Glasgow Queen Street & Edinburgh
Helensburgh Upper: West Highland Line to Oban, Fort William, and sleeper to London
Glasgow Airport: 22 miles
Road links via A814, A82, M8 and Erskine Bridge
Travel Directions
From Helensburgh, follow the A814 to Rhu. At the Marina, turn right onto Pier Road, continue uphill and turn right onto Station Road. Tigh Geal is located on the right-hand side, set back from the road and accessed via a long, tree-lined, driveway its discreet approach a quiet prelude to the stunning house that awaits.
EPC : BAND E
COUNCIL TAX : BAND H
TENURE : FREEHOLD
More Details
Situation: BalconyPrivate Garden
Council Tax Band: H
Tenure: Freehold
Your home may be repossessed if you do not keep up repayments on your mortgage.
There may be a fee for mortgage advice. The actual amount you pay will depend upon your circumstances. The fee is up to 1% but a typical fee is 0.3% of the amount borrowed.
Similar Properties
Looking To Sell Or Let?
Rettie is one of the most trusted and well-respected names in property. Our unrivalled market knowledge helps people from around the world buy, sell, let and develop property in Scotland and the North East of England - from city apartments and rural cottages to large townhouses and prime country homes, farms and estates. We deal with some of the most prestigious properties on the market, but provide the same exceptional standards of service and value for money to all our clients.
