Property Description
Forming part of Bearsden’s prestigious St. Andrew’s View development, a luxurious, two bedroomed second floor apartment with lift access and private balcony.
St. Andrew’s View is a top-quality development of only twenty flats, most of which are two bedroomed apartments. Specifically designed for those aged sixty and over, it is a superbly executed and an award-winning development, designed by architect Donald Bentley of Studio Bark Architects, in the Courthill district of Bearsden, located beside Mugdock Care Home and the grounds of Bearsden Academy.
The client was Bield who are specifically noted for delivering projects targeted at older clients and, at St. Andrew’s View, they have a really first-class development that is well-equipped and with a high spec. A security-controlled entrance door protects a carpeted residents’ hallway and stairway where, importantly, there is a lift giving access to individual floors. This specific apartment is found on second floor.
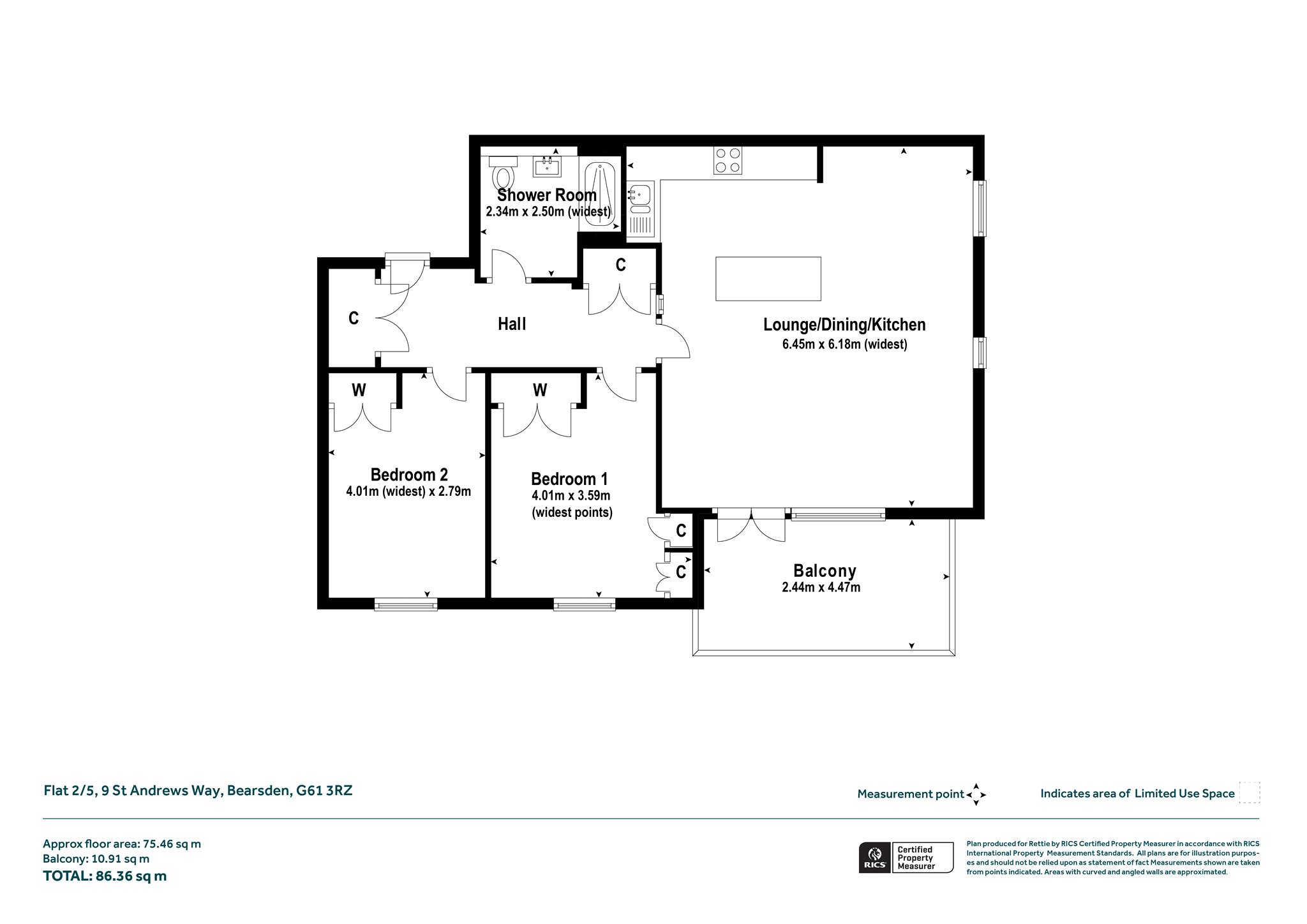
A spacious flat, it occupies a second-floor position and enjoys a corner position with a sun/balcony. In total, the apartment extends to a generous 811.ft² approximately, and, in addition to the benefit of the excellent balcony, it boasts a number of aesthetic and practical improvements that our client has made over the last few years such as the beautiful parquet style flooring in the hallway and kitchen . There is a mains gas central heating system with combi-nation boiler and windows and French doors are UPVC, finished in white to the inside and contemporary grey to the outside. The residents’ entranceway is protected by a door entry phone system and there is both a stair and a lift to individual floors. The flat has its own allocated parking space in a residents’ carpark, situated at the end of the building.
Great layout and a well-considered design the subjects comprise as follows:-
• The security-controlled residents’ entranceway with staircase and lift.
• A vestibule that is shared with only one other flat.
• Private reception hall with good storage provision.
• A super corner position lounge with French doors onto a very good-sized sun balcony
• Open-plan dining room.
• Open-plan kitchen with a selection integrated-appliances.
• Two double bedrooms, both with wardrobe provision.
• Immaculate tiled shower room with walk in shower enclosure (running from mains system).
Situation
The property sits just about a mile, northwest, of Bearsden Cross and, therefore, within easy reach of the excellent facilities to be found there, including shops (Marks & Spencer’s (food hall)), restaurants, banks and a Post Office. Just south of The Cross is Bearsden Railway Station and this provides a regular service into Glasgow’s West End and City Centre, including a direct service through to Edinburgh Waverley. Nearby, in the adjoining Mosshead Estate, is Bearsden’s fairly unique facility of Bearsden Ski Club, with its excellent club house and two artificial slopes. For golfers, Bearsden has three courses, with an additional four in neighbouring Milngavie. Bearsden has two tennis clubs.
Sat Nav Ref: G61 3rz
EPC : BAND B
COUNCIL TAX : BAND F
TENURE : FREEHOLD
More Details
Situation: Balcony
Council Tax Band: F
Tenure: Freehold
Your home may be repossessed if you do not keep up repayments on your mortgage. There may be a fee for mortgage advice. The actual amount you pay will depend upon your circumstances.
Similar Properties
Looking To Sell Or Let?
Rettie is one of the most trusted and well-respected names in property. Our unrivalled market knowledge helps people from around the world buy, sell, let and develop property in Scotland and the North East of England - from city apartments and rural cottages to large townhouses and prime country homes, farms and estates. We deal with some of the most prestigious properties on the market, but provide the same exceptional standards of service and value for money to all our clients.
