Property Description
- Three bedroomed semi-detached villa by John MacDonald
- Constructed pre-war, forming part of Bearsden’s desired Burnbrae district
- Elevated position with stunning panoramic views towards Campsie Fells
- Presented to market in very good condition – contemporary kitchen and recently refitted shower room
- Mosshead Primary/Bearsden Academy catchment
- West facing rear garden – perfect for afternoon/evening sun
- Close by fantastic recreation space including the Kilmardinny Loch Nature Reserve
- Off street driveway parking and detached garage
Originally constructed in the 1920’s by well regarded builder John MacDonald, this traditional three bedroomed semi-detached villa occupies a commanding, elevated position on Beech Avenue and could easily be argued as one of the stronger inherent examples of its kind with fabulous views over the district and towards the Campsie Fells. Under the same ownership for a number of years, the property has been very well maintained over this period, with the incoming purchaser presented with a property very much ‘ready to go’ but with exciting scope to redecorate/extend (subject to permissions) according to style/budget.
These properties are particularly notable for their generous room sizes, ceiling heights and flexibility of accommodation, with the two public rooms and two main bedrooms essentially interchangeable. A lovely family home in close proximity to that fantastic primary/secondary school and abundant green/recreation space that the area is renowned for. Early first hand inspection is advised.
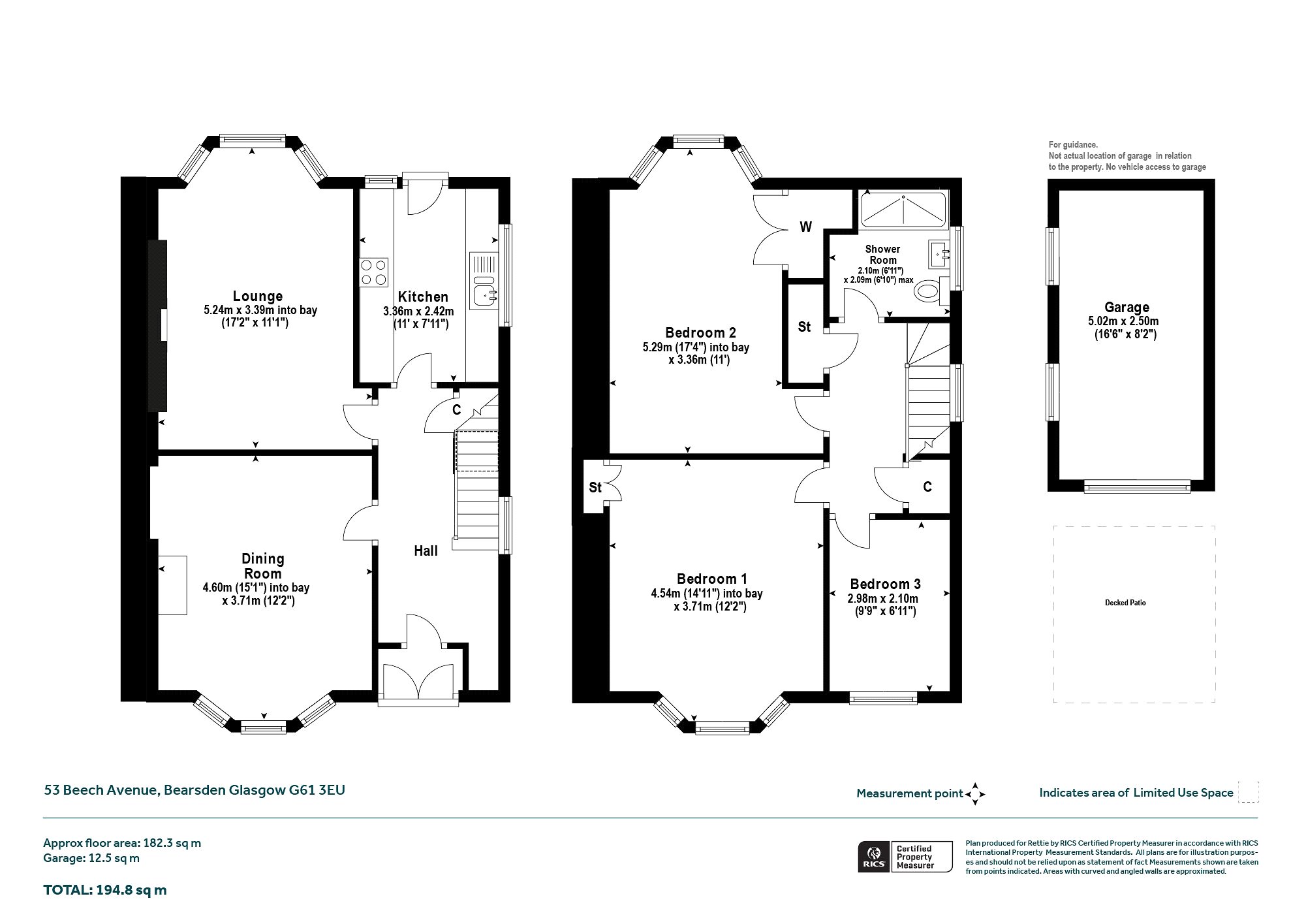
Summary of Accommodation
- Storm door entry through to vestibule
- Reception hallway (laid to oak flooring) with staircase and under stair storage
- Formal bay windowed dining room with feature fireplace (living flame gas)
- Bay windowed lounge with feature fireplace
- Contemporary fitted kitchen – range of integrated appliances, plenty worktop/storage space
- Recently refitted, tiled shower room – sharp white sanitary ware, oversized shower unit
- Two large double bedrooms (both with bay windows, exceptional views from principal bedroom)
- Additional single/nursery room – currently set up as a dressing area with fitted wardrobes, perfect for use as home office.
There is fantastic garden space to both front and rear, with the fully enclosed rear garden notable for its westerly orientation (afternoon/evening sun). The garage has been moved to create space for a lovely deck that acts as a bit of a sun trap and provides good space for outdoor furniture/entertaining. Off street parking for 2/3 cars.
Situation
Beech Avenue is ideally located with wide access to the surrounding amenities that are available within Bearsden and Milngavie, with Bearsden Cross offering a variety of boutiques and shops and a Marks and Spencers food hall. Additionally, at the Burnbrae Retail Park, are a large Waitrose, an Aldi, and a Home Bargains and on Milngavie Road an Asda supermarket. For those who are commuting, the area is well provided for by the national road network system, with both Switchback Road and Maryhill Road providing convenient access into Glasgow city centre by car.
Sat Nav Ref: G61 3eu
EPC : BAND D
COUNCIL TAX : BAND F
TENURE : FREEHOLD
More Details
Situation: Private Garden
Council Tax Band: F
Tenure: Freehold
Your home may be repossessed if you do not keep up repayments on your mortgage. There may be a fee for mortgage advice. The actual amount you pay will depend upon your circumstances.
Similar Properties
Looking To Sell Or Let?
Rettie is one of the most trusted and well-respected names in property. Our unrivalled market knowledge helps people from around the world buy, sell, let and develop property in Scotland and the North East of England - from city apartments and rural cottages to large townhouses and prime country homes, farms and estates. We deal with some of the most prestigious properties on the market, but provide the same exceptional standards of service and value for money to all our clients.

