House 4, Schaw House, 69 Schaw Drive, Bearsden, Glasgow, G61 3AT
Property Description
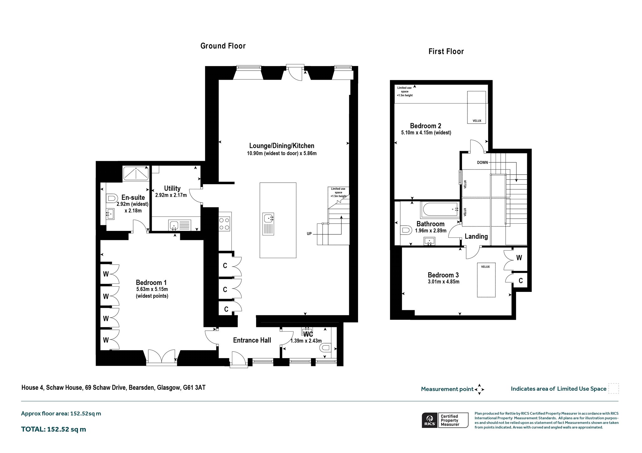
- Three bedroomed Duplex Conversion of Mews style
- Main door access to front and rear, private outdoor space
- Forms part of Bearsden’s iconic/landmark Schaw House
- Exacting specification, stylishly presented throughout
- Stunning open plan living/dining/kitchen area
- Substantial principal bedroom suite
- Gas central heating (combination boiler), sash in casement windows (reframed and shutters added in 2022)
- Two private parking spaces and plenty visitors provision
Forming part of Premier Burrell’s fastidious/sympathetic development of Bearsden’s most iconic building – Schaw House, this exceedingly stylish and immaculately appointed three bedroomed ‘Mews’ style conversion is a property of a profile more commonly seen in Glasgow’s West End and will appeal to a range of buyers varying in age and stage.
Circa 2006/7, the developers transformed this Tudor Gothic inspired mansion, which dates from 1895, into a highly desirable residential address – living in Schaw House is a rare privilege indeed. Amongst the 23 properties there are five more individual ‘Mews style’ homes with No. 4 one of these – a property with its own ‘front and back doors’ and with accommodation set over two floors including a striking main living space that includes, on an open-plan basis, a kitchen/dining room/lounge enhanced by the features of both its staircase and the sizeable island unit designed as part of the renewed kitchen. Our client has taken the extra step from previous renovations to implement really stylish panelling to kitchen units/wardrobes along with other aesthetic touches. Thorughout, contemporary decorations and high end fixtures/fittings and appliances are to be found – first hand inspection will not disappoint.
Summary of Accommodation
- Entrance hallway – cloakroom w.c off
- Substantial open plan living/dining/kitchen area (extending to over 35’ in length)
- Dedicated utility room
- Sumptuous principal bedroom suite – ensuite shower room/run of panelled wardrobes
- Upper landing with feature double glazed roof light
- Two additional double bedrooms
- Tiled three
- piece family bathroom
Situation
Schaw House is set amidst extensive lawned communal gardens maintained by the factor. It is located just to the north of Bearsden Cross and therefore within easy reach of same. Here you will find an excellent selection of quality independent retailers, along with a Marks & Spencer’s Food Hall, a Bank of Scotland, a well-stocked post office and a couple of pharmacies. There are coffee houses/cafes and a few restaurants. Just south of Bearsden Cross is Bearsden railway station providing regular links into Glasgow’s West End and city centre, including a service to Edinburgh Waverley.
Schaw House is located at the very end of Schaw Drive.
Sat Nav Ref: G61 3at
EPC : BAND C
COUNCIL TAX : BAND E
TENURE : FREEHOLD
More Details
Situation: Communal Garden
Council Tax Band: E
Tenure: Freehold
Your home may be repossessed if you do not keep up repayments on your mortgage. There may be a fee for mortgage advice. The actual amount you pay will depend upon your circumstances.
Similar Properties
Looking To Sell Or Let?
Rettie is one of the most trusted and well-respected names in property. Our unrivalled market knowledge helps people from around the world buy, sell, let and develop property in Scotland and the North East of England - from city apartments and rural cottages to large townhouses and prime country homes, farms and estates. We deal with some of the most prestigious properties on the market, but provide the same exceptional standards of service and value for money to all our clients.
