Property Description
- Charming, cottage style two bedroomed semi-villa
- Set upon a large corner garden with Roselea Drive
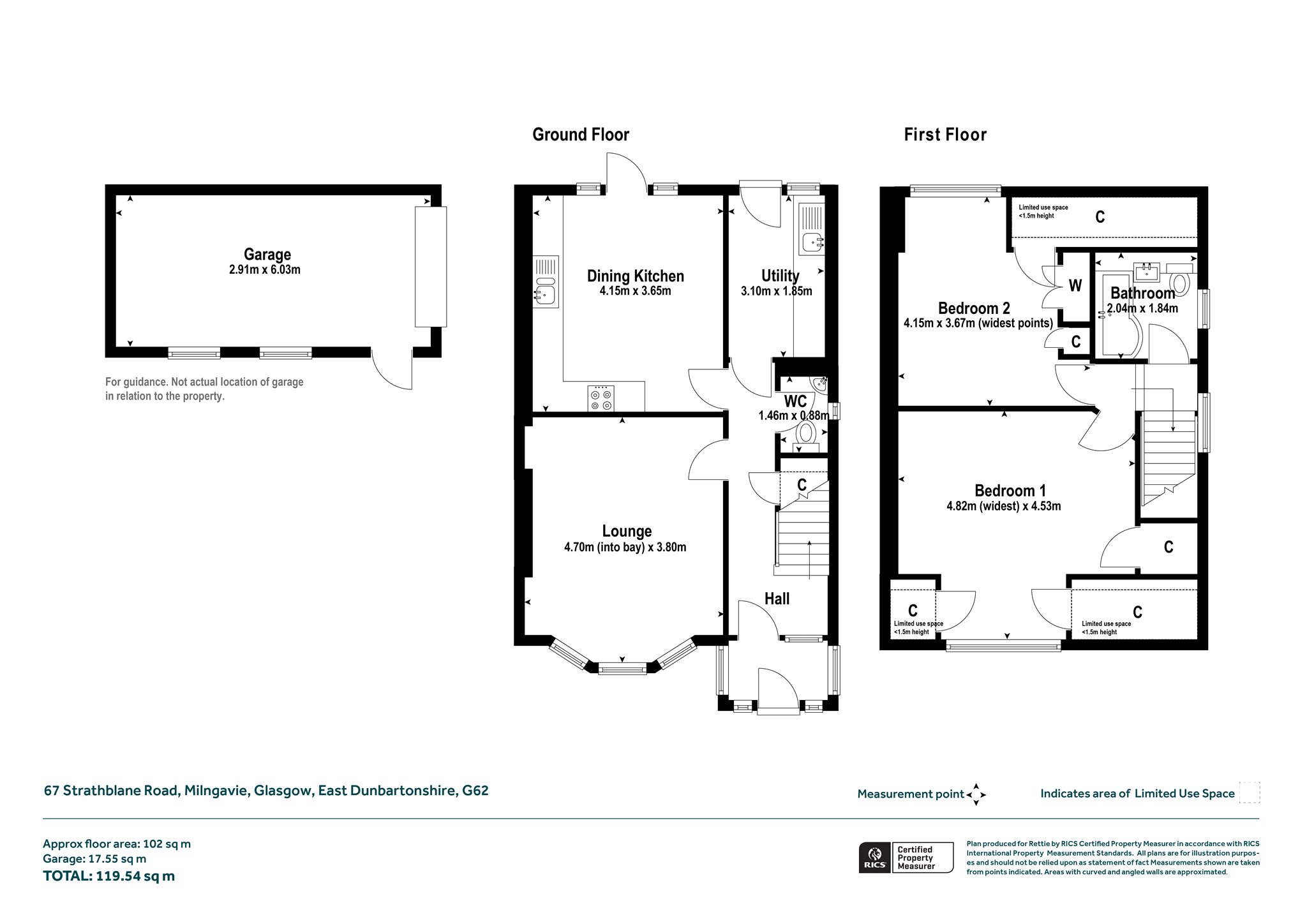
- Lounge, dining/kitchen, utility, two bedrooms, bathroom
- Gated driveway to front, additional drive and single garage to side
- Recently reroofed, PVCu double glazing
- On the doorstep of Milngavie Reservoirs
- Milngavie Primary/Douglas Academy catchment
Originally constructed in the 1950’s and set upon a large corner plot with beautifully arranged gardens, ‘Kiloran’ is a simply charming two bedroomed cottage style semi-villa that enjoys a fabulous location just to the north of Milngavie village. A perfect home for smaller families, couples and individuals, with great room proportions and high ceilings across the accommodation.
Initial assessment will impress, with gated entry opening up to drive and beautifully arranged gardens. A sharp white render and replacement roof in anthracite grey provide aesthetic appeal.
Summary of Accommodation
- Glazed entry porch
- Welcoming reception hallway with storage & cloakroom, w.c off and staircase to first floor
- Bay windowed lounge, display recess with archway motif
- Large dining kitchen with shaker style units, quality worktops and integrated appliances
- Dedicated utility/laundry room (houses laundry appliances, Worcester Bosch combi boiler
- Three
- piece family bathroom with over bath shower, integrated cabinetry
- Two large double bedrooms
Externally, the property features generous, very private gardens that run from front to side and rear, with a combination of lawn, stone paviours and timber decking providing options for child’s play and outdoor entertaining. Off street parking via gated driveway to front, additional single car drive and garage accessed via Roselea Drive.
Situation
The property is well positioned for access into Milngavie centre with its numerous retail options, train station and larger supermarkets. The reservoir is located directly behind Roselea Drive which is excellent for leisure activities and Mugdock Country Park is close by along with the West Highland Way.
Sat Nav Ref: G62 8ha
EPC : BAND C
COUNCIL TAX : BAND E
TENURE : FREEHOLD
More Details
Situation: Private Garden
Council Tax Band: E
Tenure: Freehold
Your home may be repossessed if you do not keep up repayments on your mortgage. There may be a fee for mortgage advice. The actual amount you pay will depend upon your circumstances.
Similar Properties
Looking To Sell Or Let?
Rettie is one of the most trusted and well-respected names in property. Our unrivalled market knowledge helps people from around the world buy, sell, let and develop property in Scotland and the North East of England - from city apartments and rural cottages to large townhouses and prime country homes, farms and estates. We deal with some of the most prestigious properties on the market, but provide the same exceptional standards of service and value for money to all our clients.
