Property Description
- Luxury retirement apartment in Milngavie’s Riverwood development
- Exclusive to those aged 60 or over
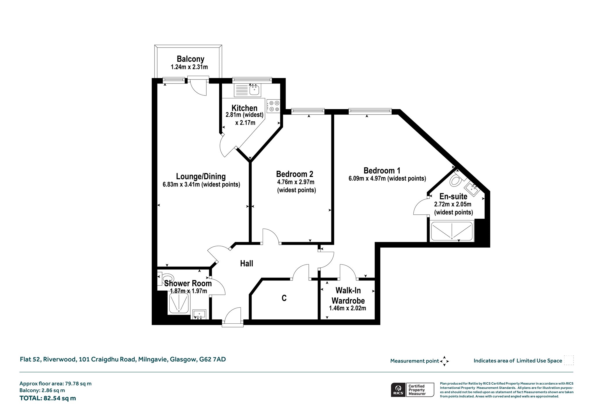
- Larger style, two bedroomed model
- Spacious lounge/dining room with private balcony (south facing aspects)
- Lift access to upper floors
- Emergency Care – 24 hour operation
- Immaculate communal lounge, guest suite available
- Private parking (permitted at £250 per space)
- House manager on site from Monday to Thursday
Managed by McCarthy Stone, the Riverwood development has, since the point of its completion in 2020, fast emerged as the premier retirement development in the desirable village of Milngavie. The development has been designed with convenience and luxury in mind, with the abundant amenities of Milngavie Village located close by. In all, a very secure, safe and well appointed living environment that any discerning downsizer/couple of retirement age should seriously consider.
New to market is one of the coveted, larger style two bedroomed apartments, with fantastic open plan lounge/dining facility featuring direct access out to private balcony. Beautifully appointed throughout. The property enjoys a top floor position within the development and, as such, enjoys fabulous open aspects (to the south/west) across the surrounding district.
It is a condition of purchase that single occupants must meet the age requirements of 60 years, in an event of a couple the second person must be over the age of 55 years.
Summary of Accommodation
Two bedrooms, large lounge/dining, integrated kitchen (Bosch appliances), tiled shower room and ensuite off principal bathroom, plenty storage
Situation
As detailed earlier the development has a handy location just east of the village centre. Here, it's pedestrianised centre has a good range of retailers including a Boots and a Marks & Spencer’s food hall. There is both Bank of Scotland and Royal Bank of Scotland branches. At the easterly of the precinct is a large Tesco and Milngavie railway station which provides regular links into Glasgow City Centre and West End. Not far away (at the Burnbrae Retail Park) is a large Waitrose and an Aldi.
Sat Nav Ref: G62 7ad
COUNCIL TAX : BAND E
EPC : BAND D
TENURE : FREEHOLD
More Details
Situation: Balcony
Council Tax Band: E
Tenure: Freehold
Your home may be repossessed if you do not keep up repayments on your mortgage. There may be a fee for mortgage advice. The actual amount you pay will depend upon your circumstances.
Similar Properties
Looking To Sell Or Let?
Rettie is one of the most trusted and well-respected names in property. Our unrivalled market knowledge helps people from around the world buy, sell, let and develop property in Scotland and the North East of England - from city apartments and rural cottages to large townhouses and prime country homes, farms and estates. We deal with some of the most prestigious properties on the market, but provide the same exceptional standards of service and value for money to all our clients.
