Property Description
In one of Milngavie’s most admired locations, just west of the village centre, is this very impressively extended, beautifully presented and equipped, Detached House of great design and space an which features a particularly impressive, and increasingly sought, kitchen/dining/living room.
Entrance vestibule and large hall
Lounge
Family room or bedroom 4
3 impressive principal bedrooms
The feature kitchen/dining/living room
High quality kitchen by Magnet
Matching Magnet utility room
Bathroom and shower room, faultlessly done
Gas CH and double glazing
Lovely garden
Double garage
Highly regarded location
Description
Originally a double-fronted bungalow, a modern extension and reconfiguration has resulted in this spacious and extremely well-designed Detached House.
Our clients have invested significantly over recent years in a comprehensive programme of further upgrading to provide the superbly finished and appointed home seen here. A stunning kitchen, by Magnet, in a cool grey colour (Fleetwood Graphite), along with a matching utility room, makes a bold statement in the key living area of the open-plan kitchen/dining/living room.
Both the bathroom and the shower room have been renewed and boast high quality suites, and fitments, and are most thoughtfully designed. The whole house was redecorated along with the installation of contemporary, white, door sets to enhance the overall modern ambiance. Windows, and external doors, are all double glazed with uPVC framed units and the central heating (gas) had a new combination boiler fitted in 2020 (Alpha E-Tech 33). A cosy touch of luxury, for those cold autumn and winter evenings, in the living room, is a log burner stove, by the Danish company TermaTech.
Outside, the garden is level and very nicely arranged and has a detached double garage at the end of a long and wide gravel driveway.
Summary of Accommodation
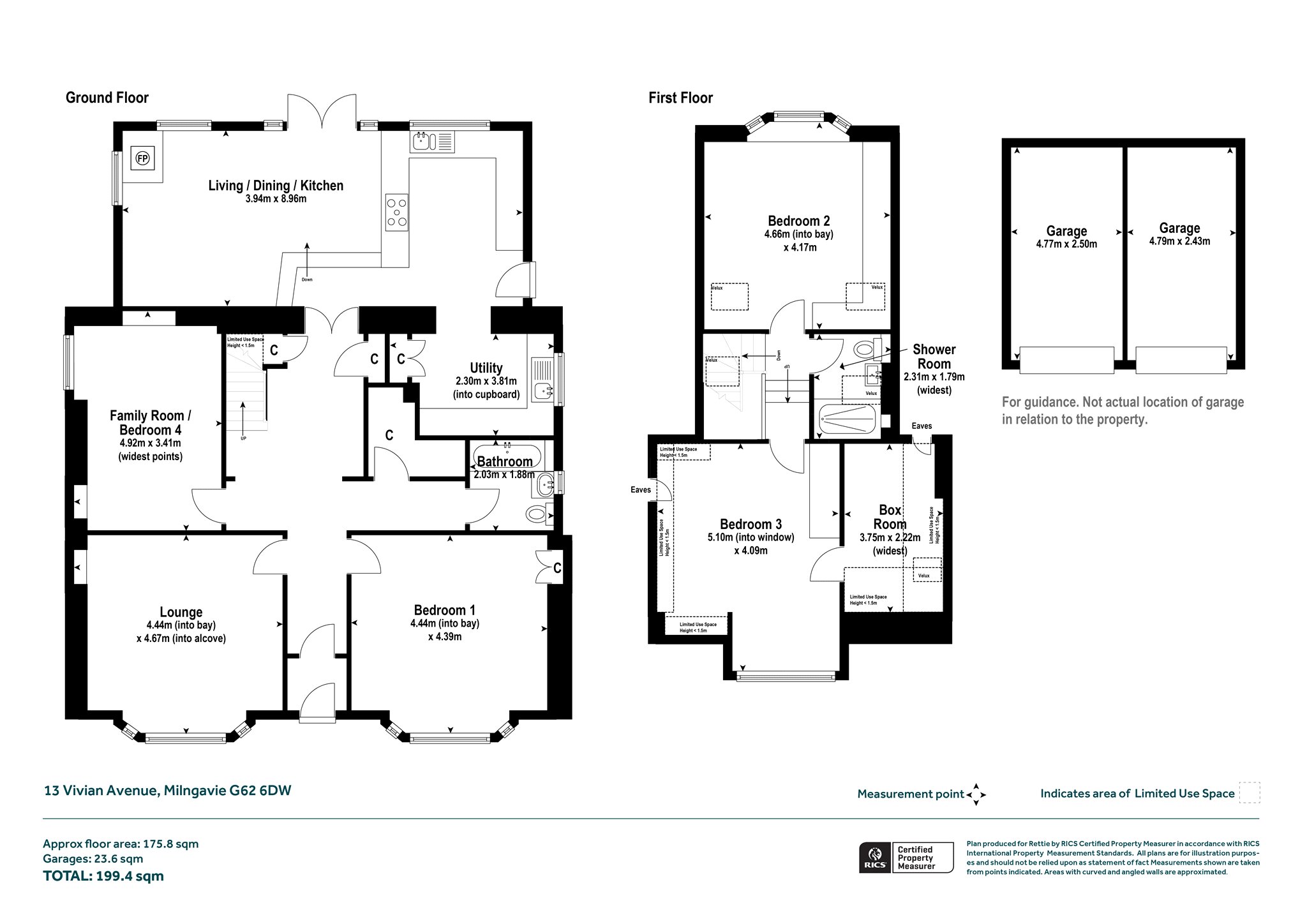
Ground Floor
Entrance vestibule. A generous sized reception hall with three storage cupboards. Lounge with wide bay window featuring white, New England style, vinyl shutter blinds. Family TV room (or 4th bedroom if needed). The key living space - the open plan kitchen/dining/living room which features exposed roof beams and is arranged on a split-level basis, kitchen to the dining/living room. The colour of the Magnet units is offset by lovely marble solid resin worktops and a striking black mirrored glass wall splashback. Integrated appliances include - induction hob with a ceiling mounted extractor hood above, two ovens, microwave, warming drawer, dishwasher. An adjacent utility room is identically finished to the kitchen and includes a fitted, double-width, larder cupboard.
The primary bedroom is on the ground floor and broadly matches the lounge in scale and too features a wide bay window with shutter blinds. Bathroom - beautifully done with marble style wet-wall panelling in both black and white. The contemporary suite is offset by black Hansgrohe brassware and a really cool, circular, mirror with “halo” lighting (subtly changes colour). Over the bath is a powerful thermostatic shower.
First Floor
A dog-leg staircase ascends from the large entrance hall to an upper landing, illuminated by a modern Velux window. There are two fine double bedrooms here, both featuring quality modern bedroom furniture. Ensuite to bedroom 3 is a very useful boxroom, with skylight window, with fitted shelving unit that matches the fitted furniture of the bedroom. To service these two bedrooms is a fully tiled shower room, with Velux, featuring an oversized shower enclosure with a further powerful thermostatic shower and a “floating” whb/vanity unit.
Gardens
The house has a generous, level, plot. Most lies to the rear where a large central lawn is flanked by gravel paths and two well planted shrub beds. In the southeast corner, behind the double garage, is a productive garden and a greenhouse. All is enclosed by hedges/fences and is gated. The front garden has a low-level garden wall to the pavement behind which is a lawn with peripheral beds. The wide, and long, gravel driveway provides off street parking for several cars.
Location
The pocket of addresses, of which Vivian Avenue form’s part, just to the west of the village centre is one of the most sought after. With the pedestrianised village centre but minutes’ walk away, the railway station some ten minutes, and ready access to Allander park, and beyond, it is truly a great location. School catchment is Craigdhu Primary and the high-performing Douglas Academy. Nearby is the Milngavie Early Years Learning Centre. Milngavie is well served for shopping, sports facilities, clubs/societies, cafes/restaurants, and wonderful walks. Rail and road links provide ready connections to the West End and the City Centre.
Sat NAV ref: G62 6DW
COUNCIL TAX : BAND G
EPC : BAND D
TENURE : FREEHOLD
More Details
Situation: Private Garden
Council Tax Band: G
Tenure: Freehold
Your home may be repossessed if you do not keep up repayments on your mortgage. There may be a fee for mortgage advice. The actual amount you pay will depend upon your circumstances.
Similar Properties
Looking To Sell Or Let?
Rettie is one of the most trusted and well-respected names in property. Our unrivalled market knowledge helps people from around the world buy, sell, let and develop property in Scotland and the North East of England - from city apartments and rural cottages to large townhouses and prime country homes, farms and estates. We deal with some of the most prestigious properties on the market, but provide the same exceptional standards of service and value for money to all our clients.

