Property Description
Highly impressive Detached House
4 Bedrooms
2 Public Rooms & large Conservatory
Great south-facing rear garden/setting
Superb, and private, outlook
High-end Bathroom, Ensuite, and WC
Very smart Kitchen
Gas CH and double glazed
Garage. Car charging point
A four-bedroomed Detached House in truly immaculate condition with a
highly impressive spec and standard of finish and boasting a superb position, within the North Baljaffray district, at the far end of the Abercrombie Drive cul-de-sac. On the preferred southerly side of the drive, it has an outstanding panoramic view over Glasgow, as far as the Glennifer Braes, and with no properties behind the house with the landscaped rear garden backing directly onto a broad expanse of grassed ground to give the house a real sense of privacy and detachment. Truly a great position and outlook and one not to change.
A sizeable quality conservatory with double-glazed glass roof and with brick coursework, by Penicuik, provides a great dining room/additional living space, in addition to the other public rooms/spaces provided. The kitchen and the en-suite shower room were renewed about ten years ago and thereafter, in 2017, the toilet and the fabulous main bathroom. All beautifully done and appointed.
The house has been designed on an appealing split-level basis to accommodate the fall of the land and to take best advantage of the view. The rear garden has been impressively landscaped, including a superb, south facing, sun terrace and a, west facing, sun patio.
Gardens to the front include an area of grass and a double width monobloc driveway leading to the property’s garage (power & light). To the easterly side of the house is a timber garden shed.
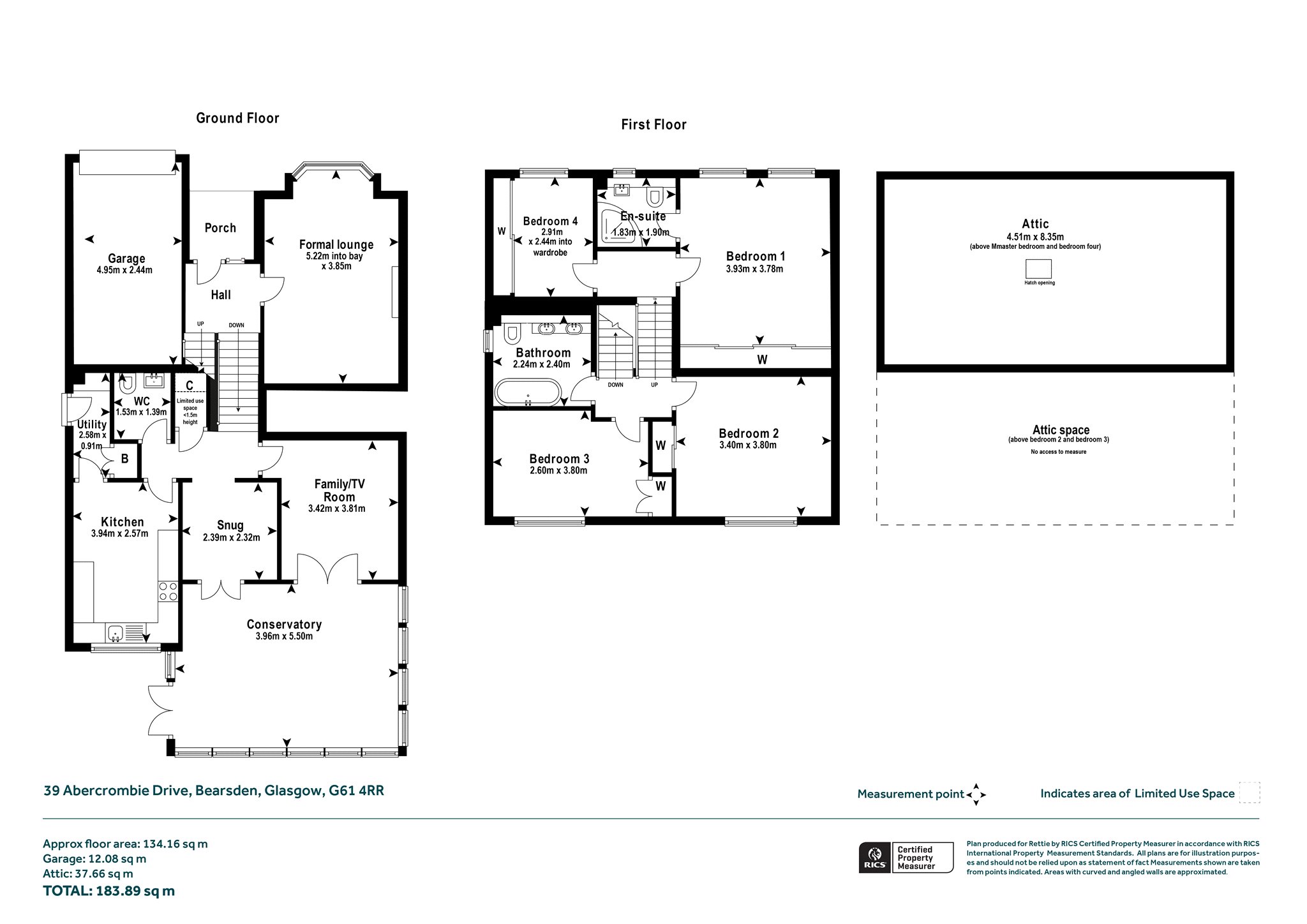
Summary of Accommodation
Covered entranceway. Reception hall where a split-level staircase leads to the lower and upper levels. Lounge, a fine public room with window to the front and a fireplace with marble inlay and hearth and a Living Flame coal effect gas fire. On the lower level, a hallway with store cupboard. Snug – a useful little reading area or perhaps study (inner hall) which, in turn, has double doors to the conservatory. Family sitting room, also with double doors to conservatory. Conservatory - a very generous space with double glazed windows around three sides and a set of French doors, west, to the property’s sun terrace (Sanderson window blinds). Kitchen, supplied by Glasgow Kitchens & Bathrooms, in white high gloss with contrasting charcoal-coloured worktops, above which is a white “metro” wall tile and concealed under-unit lighting. Integrated appliances include a four-burner gas hob, oven, a stainless-steel and glass cooker hood and, concealed, a fridge freezer and a slimline dishwasher. Off the kitchen is a utility space, with back door, in which there is plumbing for a washing machine and space for a tumble dryer. Guest WC.
The upper level of the house provides the accommodation for the property’s four bedrooms, the bathroom and the en-suite. Firstly, there is the primary bedroom, a large bedroom with two twin-framed windows to the front and a full wall of mirrored wardrobes. Ensuite shower room with a large corner shower enclosure with thermostatic shower with both deluge and handheld showerheads. Bedrooms two and three are both doubles, with bedroom two a particularly generous room, and both bedrooms provide an outstanding, southerly, outlook to the rear across Glasgow. Both have wardrobe provision. Completing the accommodation is bedroom four which would ordinarily be a single room but has been made into a dressing room with a run of fitted wardrobes with sliding doors along a wall. Bathroom - superbly done and including an oval shaped, free standing, bath, a floating vanity surface on which is both his and her basins.
Location
Abercrombie Drive is part of North Baljaffray on the very north westerly fringe of Bearsden by Windyhill golf course. Adjacent is the Mains Plantation Woodland – a lovely spot for a stroll and to exercise the dog. For those with children, the local primary school is nearby at Baljaffray Primary with secondary provision at the high-performing Bearsden Academy at Courthill. Beside Bearsden Academy is St. Nicholas’ Primary School and also within Bearsden the junior school for The High School of Glasgow. Local shops can be found at Baljaffray precinct, including a soon to open mini-Sainsbury’s. Greater facilities to be found either at Bearsden Cross (approx. 1.8 miles) or, roughly equidistant, Milngavie Village Centre, both of which have railway stations to Glasgow’s West End and City Centre (four trains per hour peak times, including a service terminating at Edinburgh Waverley).
A great house
Sat NAV ref: G61 4RR
EPC: BAND C
COUNCIL TAX : BAND G
TENURE : FREEHOLD
More Details
Situation: Contact branch
Council Tax Band: G
Tenure: Freehold
Your home may be repossessed if you do not keep up repayments on your mortgage. There may be a fee for mortgage advice. The actual amount you pay will depend upon your circumstances.
Similar Properties
Looking To Sell Or Let?
Rettie is one of the most trusted and well-respected names in property. Our unrivalled market knowledge helps people from around the world buy, sell, let and develop property in Scotland and the North East of England - from city apartments and rural cottages to large townhouses and prime country homes, farms and estates. We deal with some of the most prestigious properties on the market, but provide the same exceptional standards of service and value for money to all our clients.
