Property Description
An extended Detached House in the highly sought after Mosshead district nearby the local primary school and within the catchment for the high-performing Bearsden Academy
Single storey rear extension
Excellent, converted, attic room
2 bedrooms plus home office (small bedroom 3)
2-3 public rooms
Extended kitchen
Shower room + WC
Gas central heating (renewed boiler)
Double glazing (2014)
Long tandem style garage
Mosshead Primary and Bearsden Academy catchment
Description
Built approximately 60 years ago by WS Gordon a brick-built 3 bedroom Detached House with, latter, single storey rear extension that adds a living room and which enlarges the kitchen. A smart ground floor WC was renewed about five years ago and the attic room (originally formed more than 50 years ago) was significantly upgraded, circa 2014, to provide the very smart, and even more useable room, seen now. There is a fixed staircase to this (installed over 50 years ago) for ease of access which as a result does make the size of bedroom 3 slightly smaller but still ideal as an infants room or for a home office.
All windows are double glazed and nearly all were renewed circa 2014. Only the front door, and its side screen, and the kitchen back door are of an older vintage. The roofline soffits and fascias are also in uPVC for low maintenance. Central heating is mains gas and here a new ATAG combination boiler was installed about 4/5 years ago. A long “tandem style” garage (could take two cars) includes a utility area at its end with sink, washing machine, tumble drier, and an additional freezer. Very handy.
Whilst there is scope for buyers to personally invest, it is clear that this has been a well maintained home with good kitchen and sanitary ware fitments, décor, and flooring.
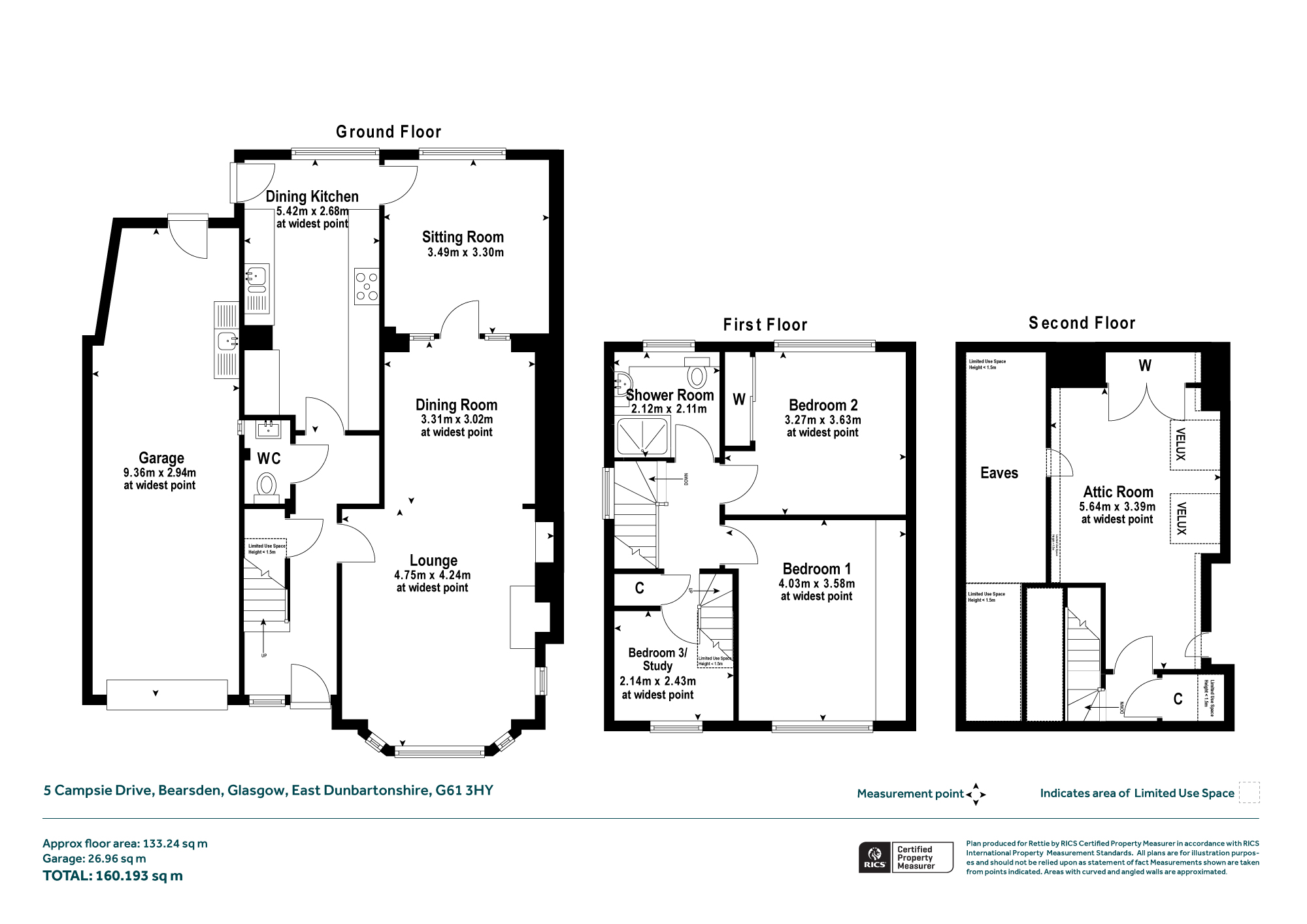
Summary of Accommodation
Ground Floor
Entrance hall. Lounge with wide bay window (featuring smart, white, wooden shutter blinds) plus additional side window. Note: the wall mounted gas fireplace here was decommissioned by the owner previously. No warranties therefore given. Dining room arranged open plan to the lounge. Living room - part of the extension and a cosy family TV Room. The kitchen has modern style units in cream coloured high gloss with solid oak worktops. Appliances include - halogen hob, double oven with grill, microwave, fridge-freezer, and a freestanding dishwasher. WC - very smartly done in a contemporary style.
First Floor
The staircase ascends to the first-floor landing where there is a able window (to the south) and an over stair store cupboard. Two double bedrooms, both with wide 3-frame windows and both with wardrobe provision, those in the primary bedroom running the full length of the main wall. Bedroom 3 is a small single, by virtue of the staircase to the attic room, but would be perfect for a youngster or as a home office. The former bathroom was refitted as a shower room with modern white suite and fitted bathroom furniture. The shower enclosure has a thermostatic shower operating off the central heating boiler.
Second Floor
The attic room is a great asset and very smartly done because of the 2014 upgrade. Two large, double glazed, Velux windows throw a huge amount of light into the room. It has two access points to eaves storage but also has a wardrobe cupboard at the end. The staircase to it has a cupboard at the landing and a run of fitted bookshelves.
Gardens
To the front a pebble drive and bay can take up to three cars. Privet hedging to front and north boundary provides some screening with a corner conifer bed setting all off. To the north side of the house a gated path accesses the rear garden, as does the kitchen back door, and a rear garage door. This has a south and west orientation to capture the sun. A nicely designed gravel and stone sun terrace has been created, fringed by a low-level stone wall with steps leading up to an area of grass, bordered by established planted beds, particularly to the rear boundary. All is enclosed by fencing.
Location
The Mosshead estate is on the northerly edge of Bearsden yet is a little over one mile, by direct foot, to Bearsden Cross (and approx. 1.5 mile by car). It is close to the beauty spot of Kilmardinny Loch around which is a lovely woodland walk. Very popular with families due to the local primary school and from being in the catchment for Bearsden Academy beside which is St Nicholas Primary. On Stockiemuir Avenue is a smart, well stocked, Co-op mini market with Bearsden’s main shops to be found at The Cross or at Kesington. At Burnbrae is a Waitrose, and an Aldi. At the top of the estate is Bearsden Ski Club with its two slopes and clubhouse. Beyond the nearby Mosshead Park, via Mosshead Rd it is a relatively short walk to the brilliant new facilities of the local-authority Allander Sports Centre at Kilmardinny as well as the private Pure Gym on Milngavie Road.
Sat Nav ref: G61 3HY
EPC : BAND D
COUNCIL TAX : BAND G
TENURE : FREEHOLD
More Details
Situation: Private Garden
Council Tax Band: G
Tenure: Freehold
Your home may be repossessed if you do not keep up repayments on your mortgage. There may be a fee for mortgage advice. The actual amount you pay will depend upon your circumstances.
Similar Properties
Looking To Sell Or Let?
Rettie is one of the most trusted and well-respected names in property. Our unrivalled market knowledge helps people from around the world buy, sell, let and develop property in Scotland and the North East of England - from city apartments and rural cottages to large townhouses and prime country homes, farms and estates. We deal with some of the most prestigious properties on the market, but provide the same exceptional standards of service and value for money to all our clients.
