Property Description
The seven ‘Deck Houses’, designed by the admired architect Murray Russell, were built in the 1970s as a ‘Concept for Living’ project that provides a very appealing alternative to mainstream architectural norms. They really are fantastic modern homes, still highly contemporary, and very cleverly designed. The key to the design is the discreet, even modest, single-storey front elevation that presents to the streetscape with the majority of the accommodation set to the rear where its two-storey elevation, with its super full-width sun deck, really conveys the size of the house and from which there is a very peaceful, and leafy, outlook over the gardens to trees.
One of only seven, special, ‘Deck Houses’
Highly imaginative mid-terrace design
Six main apartments (can be three or four bedrooms)
Built in the 1970s
Bearsden Primary and Academy catchment
Designed as a ‘Concept for Living’
Accommodation orientated, mainly, to the rear
Discreet front façade, very private rear garden
Feature full width ‘deck’ terrace across whole upper level
Bathroom and Shower Room
Kitchen and useful Laundry/Store
Smart double glazing. Gas central heating with renewed boiler
Roof retiled, walls re-rough casted.
Integral garage with electric door
No 19 is set to the middle of the gently curved terrace and has a particularly private rear garden as well as a charming, also private, front patio garden, to the side of which a driveway leads to the integral single garage, with a remote-controlled electric door.
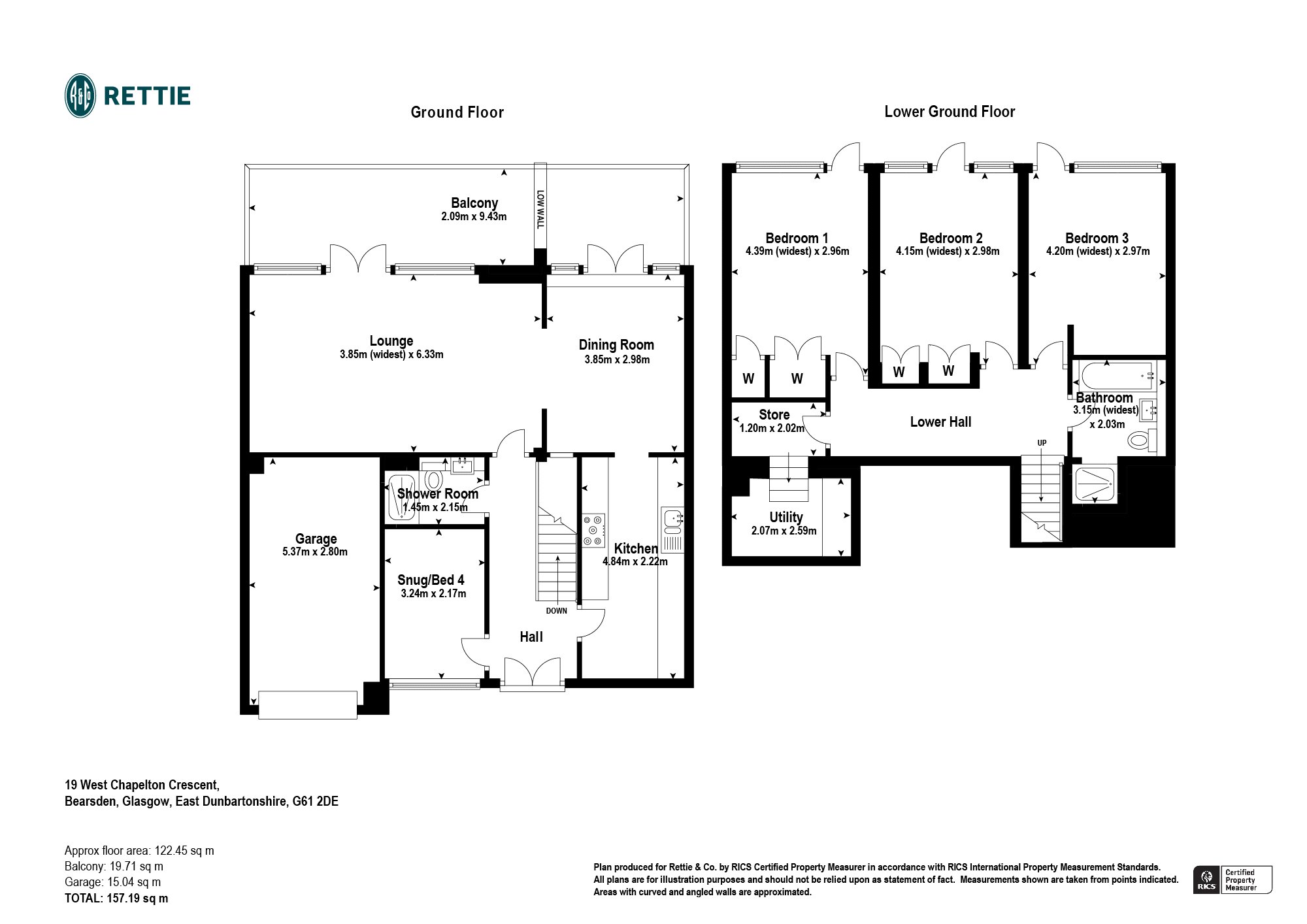
Summary of Accommodation
The ‘public’ accommodation is set on the entrance level, described by the architect as the ’living deck’ and includes - Entrance Hall. Lounge with lots of glass, French doors to the sun terrace and a feature barrel vaulted ceiling. Dining room open plan to the lounge and with French doors also to sun terrace. The two sun terraces/decks leading off both the lounge and the dining room. A home office or snug or bedroom 4. Kitchen where the cabinets have solid oak fronts by Winchmore of Suffolk. Against these are more modern grey coloured, concrete style, laminate work surfaces and a contemporary, almost commercial style, wall panels in a grey metal effect, all offset by quality Amtico flooring. Shower room (renewed in 2022) and with powerful thermostatic shower. On this level is the garage, integral to the house, nicely set under the pitch of the roof.
The bedrooms are on the lower ground floor level, the ‘sleeping deck’, where direct access is provided to the garden from each of the three double bedrooms, all having French doors. On this ‘garden level’ is a good-sized hall. The smart four-piece bathroom includes a shower enclosure and is all very smartly done in a contemporary style; it has a four-piece suite that includes an oversized ‘wet room’ style shower enclosure with floor drain. It features another powerful thermostatic shower. It is tiled to full height in the enclosure and half height on walls to match the flooring with a further large wall vanity mirror fitted. Chrome towel radiator. Finally, a very useful storeroom with laundry area.
The windows and external doors have all been replaced with quality double glazed units framed in woodgrain style uPVC. The gas central heating had a new combination boiler (Vaillant ecoTec plus 832) installed in late 2023.
It is all a particularly considered design and one that should appeal to families, couples, and early downsizers.
Garden
The front garden is on a slope with the front of the house well screened by a densely planted bed, behind which is a sheltered patio, perfect for morning and early afternoon sun. To the side is a drive to the garage.
The rear garden is very private and has a lovely stone slabbed terrace across the rear of the house, accessed directly from each of the three bedrooms. Stone flagged steps lead down to a lower grassed garden bounded by fencing and screened by trees to make it very private. Shed. Not far away are the courts of Bearsden Tennis Club the sound of ball on racquet a peaceful backdrop and appropriate during the recent Wimbledon championship.
Location
The house is in the very established and traditional address of West Chapelton Crescent, which falls within the Conservation Area of Old Bearsden. It enjoys a fabulously convenient situation for Bearsden’s railway station (only one-third of a mile away) and for the heart of the town, Bearsden Cross (just under half a mile) where along with independent retailers, cafés, and shops is an M&S food hall. At the railway station is a well-stocked Co-op store. Just to the east, at Kessington, is a Sainsbury’s convenience store and a large Asda.
Sat Nav ref : G61 2DE
TENURE : FREEHOLD
COUNCIL TAX : BAND G
EPC : BAND C
More Details
Situation: Private Garden
Council Tax Band: G
Tenure: Freehold
Your home may be repossessed if you do not keep up repayments on your mortgage. There may be a fee for mortgage advice. The actual amount you pay will depend upon your circumstances.
Similar Properties
Looking To Sell Or Let?
Rettie is one of the most trusted and well-respected names in property. Our unrivalled market knowledge helps people from around the world buy, sell, let and develop property in Scotland and the North East of England - from city apartments and rural cottages to large townhouses and prime country homes, farms and estates. We deal with some of the most prestigious properties on the market, but provide the same exceptional standards of service and value for money to all our clients.
