Property Description
A very impressive, early post war (1950s), Detached House by John Lawrence in the ever popular Switchback district. An excellent rear extension creates a super open-plan kitchen/dining/ family living room to complement the lounge and formal dining room, 4 bedrooms, 2 shower rooms, and a large ensuite bathroom.
Detached House
Four bedrooms
Lounge and dining room (open plan)
Kitchen/dining room with family room extension
Large ensuite bathroom, with shower room, to primary bedroom
Two shower rooms
Gas central heating with condensing combi boiler
uPVC double glazing
Garage
Description
John Lawrence was one of the country's leading pre and post-war house builders and the properties built during the 1950s in Bearsden's Switchback district have proved enduringly popular. 15 Kelvin Crescent is a particularly good example with a very imaginative, modern, rear extension, with lots of glass, that adds to the open-plan dining kitchen to create that all important, heart-of-the-home, family living space. The extension was added in 2006.
In addition to this much has been upgraded including the kitchen, both shower rooms, the ensuite bathroom, internal doors (those on the ground floor including skirtings and facings in oak), a more efficient central heating boiler (Worcester Greenstar 30i ErP condensing combination) under a maintenance contract with Scottish Gas, windows and external doors (uPVC, double glazed), and rooflines (soffits, fascias, gutters).
Outside, the garden is very neat and nicely landscaped with the south facing rear garden fully enclosed (fencing and gate) and incorporating a fine sized sun terrace. Attached to the west gable is a single garage, added at the same time as the extension.
Summary of Accommodation
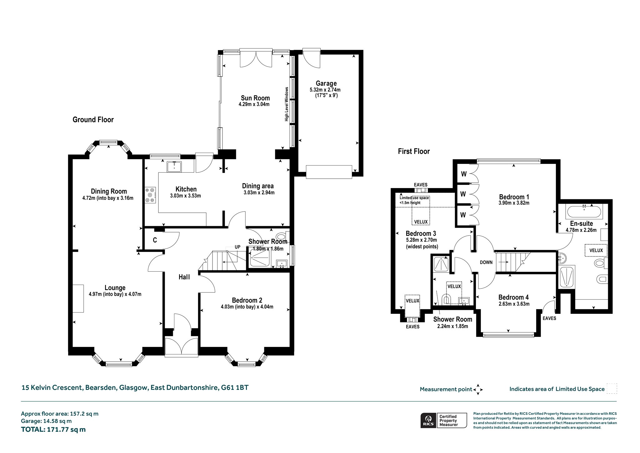
Ground Floor
Entrance vestibule. Hall. Lounge with bay window and a classic “Minster” style fireplace. Dining room, also with bay window, open-plan to the lounge. Dining kitchen - the kitchen was renewed in 2023 with blue Shaker units, by Howden, with white marble style worktops and cool, white, “metro” wall tiles. Appliances of five-ring gas hob, oven/grill, cooker-hood, dishwasher, and fridge-freezer will all be included. Family room (garden room) - this is the rather imaginatively designed extension dating from 2006. With a high mono-pitched roof/ceiling it enhances the space as do the windows, and patio/French doors, on three sides - really connects to the garden and being open-plan to the dining kitchen really does create the very heart of this home. Shower room - fully tiled with a shower enclosure featuring a modern Mira Sport electric shower. Bedroom 4 - fined size double room with bay window.
First Floor
Bedroom 1 – a really lovely primary bedroom with a suite of fitted wardrobes, and matching bedside tables and chest of drawers. Ensuite bathroom - surprisingly large and with a 5-piece suite including an oversized shower enclosure with thermostatic shower with both deluge and hand shower heads. Two further bedrooms. 2nd shower room with travertine floor and wall tiles and another powerful thermostatic shower.
Garden
To the pavement there is a low-level rendered garden wall behind which is a shaped lawn with two particularly well stock side beds. A monobloc drive down the side of the property provides off road parking for two to three cars and with a turning/parking bay in front of the house. To the east side of the property a gravel pathway, via a gate, provides access to the rear garden. To the west, at the end of the driveway, is the attached single garage within which there is a rear pass door to the garden.
The rear garden is south facing and has a lovely shaped monobloc sun patio across the full width of the house with a low level brick retaining wall and steps leading down to another shaped lawn with peripheral shrub beds, all bordered by fencing and hedging for security.
Location
The Switchback district is to the southern edge of Bearsden, just south of Canniesburn Toll. As such it provides ready access via Switchback Road (A739) to Anniesland, the West End, and the City Centre. School catchment is Westerton Primary and Boclair Academy. Westerton railway station is just under one mile away with very regular services to the city, including services to Edinburgh, as well as westbound to West Dunbartonshire and ultimately Helensburgh.
Closeby is a charming woodland walk through the Cairnhill Woods and across Switchback Road is Dawsholm Park and the University of Glasgow Garscube Estate, flanked by the River Kelvin. At Temple (adjoins Anniesland) and by the Forth and Clyde Canal are the excellent facilities of the David Lloyd Sports Complex.
Sat NAV ref: G61 1BT
EPC : BAND D
COUNCIL TAX : BAND F
TENURE : FREEHOLD
More Details
Situation: Private Garden
Council Tax Band: F
Tenure: Freehold
Your home may be repossessed if you do not keep up repayments on your mortgage. There may be a fee for mortgage advice. The actual amount you pay will depend upon your circumstances.
Similar Properties
Looking To Sell Or Let?
Rettie is one of the most trusted and well-respected names in property. Our unrivalled market knowledge helps people from around the world buy, sell, let and develop property in Scotland and the North East of England - from city apartments and rural cottages to large townhouses and prime country homes, farms and estates. We deal with some of the most prestigious properties on the market, but provide the same exceptional standards of service and value for money to all our clients.
