Property Description
- Main door three bedroomed lower cottage flat
- Very well presented across accommodation
- Fantastic location in Milngavie’s Clober Estate
- Great room proportions
- Private, sunny, garden space to front and rear – beautifully landscaped
- PVCu double glazing and gas central heating
- A great property for downsizers/young professionals in equal measure
An exceptional example of its kind, this three-bedroomed lower, main door cottage flat has been fastidiously maintained/upgraded across the duration of our client’s custodianship and offers particularly versatile internal accommodation that will suit a wide variety of buyer profiles. Very much ‘ready to go’ for the prospective bidding party and a property deserving of prompt first hand inspection.
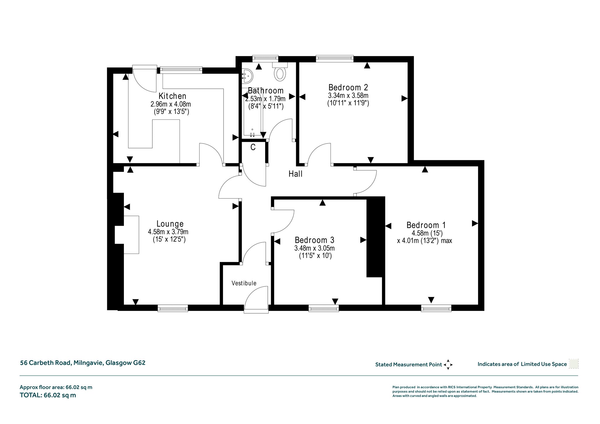
Summary of Accommodation
- Entrance hall with staircase and store cupboard
- Reception hallway with storage cupboard off
- Generously sized lounge
- Dining kitchen off
- Three bedrooms (two good doubles and a further single room)
- Three
- piece bathroom
Situation
Carbeth Road is located just west of The Village Centre and, therefore, within easy walking distance of the excellent facilities, shops and amenities to be found at its pedestrianised centre. Here you will find quality independent retailers, along with the high street names of Marks & Spencer’s, Boots and Tesco, with a Waitrose and Aldi a little further away at The West of Scotland Rugby Ground. At the end of the precinct is Milngavie Railway Station with its four trains an hour into Glasgow’s West End and City Centre, including a service terminating at Edinburgh, Waverley. Milngavie has many clubs and societies, with Stathblane Road home to the excellent Nuffield Health Fitness & Wellbeing Gym. It is also the start/finish of The West Highland Way which takes you through the wonderful expanses of Allander Park, Drumclog Moor and Mugdock Country Park. With regards to schooling, the property falls within the catchment for Clober Primary and for the superb facilities of Douglas Academy which has a glowing HMI report.
Sat Nav Ref: G62 7ax
EPC : BAND C
COUNCIL TAX : BAND C
TENURE : FREEHOLD
More Details
Situation: Private Garden
Council Tax Band: C
Tenure: Freehold
Your home may be repossessed if you do not keep up repayments on your mortgage. There may be a fee for mortgage advice. The actual amount you pay will depend upon your circumstances.
Similar Properties
Looking To Sell Or Let?
Rettie is one of the most trusted and well-respected names in property. Our unrivalled market knowledge helps people from around the world buy, sell, let and develop property in Scotland and the North East of England - from city apartments and rural cottages to large townhouses and prime country homes, farms and estates. We deal with some of the most prestigious properties on the market, but provide the same exceptional standards of service and value for money to all our clients.
