Flat 11/3, Whistlefield Court, 2 Canniesburn Road, Bearsden, G61 1PX
Property Description
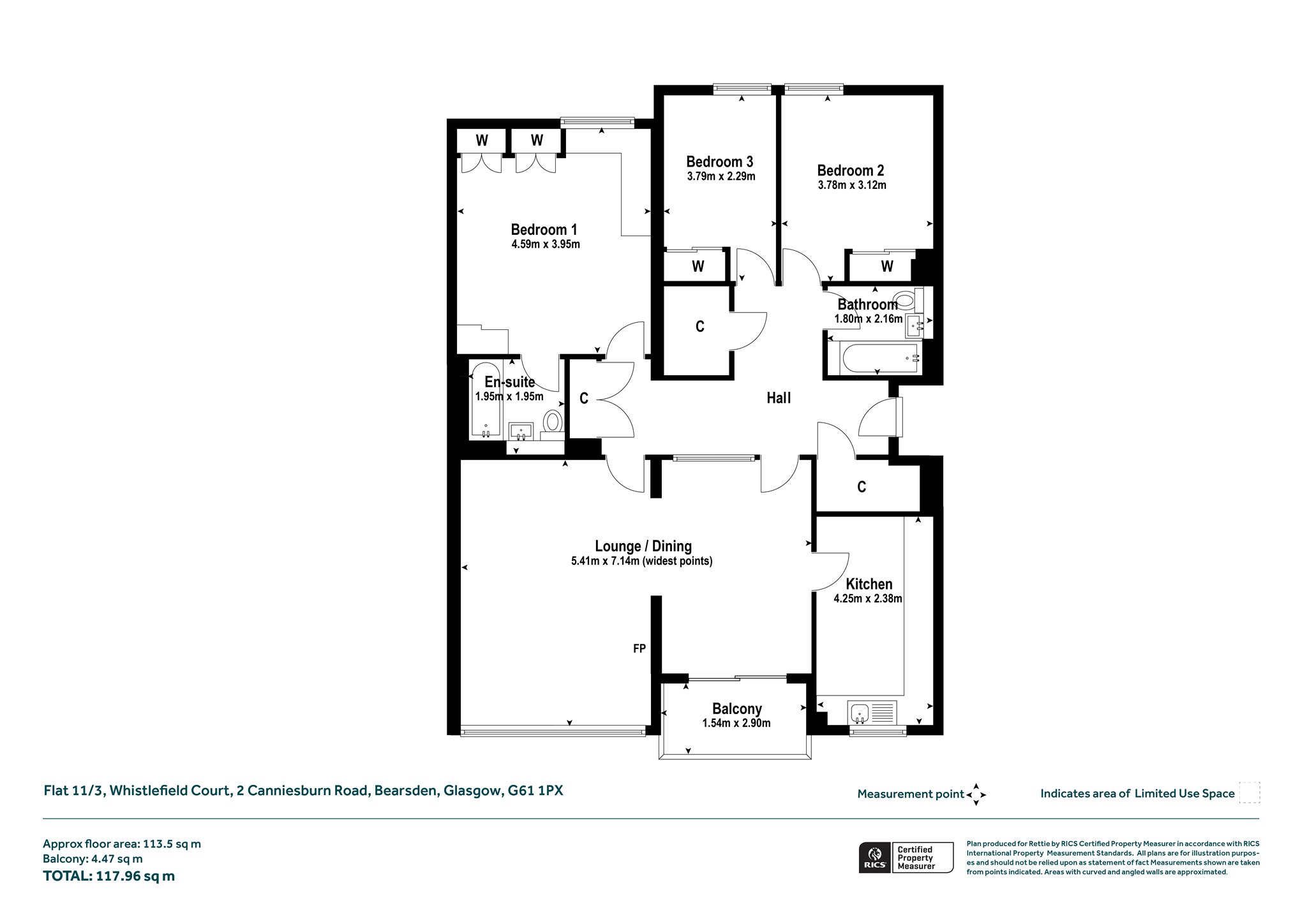
- Three bedroomed top floor apartment
- Forming part of popular flatted development by Bovis Homes (1970’s)
- Complete programme of refurbishment and upgrading required
- Superb position with south facing balcony
- Residents parking and garage
- Security controlled entry
Located to the south of Bearsden Cross, Whistlefield Court is a popular development that was constructed by developers Bovis Homes in the mid 1970’s. This apartment is one of only six using this entranceway, the development an intimate mix of two- and three-bedroom apartments, and some townhouses, all set amidst lovely resident’s grounds, part of which lead through woodland to the water’s edge of St Germans Loch.
The property here is one of the three bedroomed models and occupies a top floor position with a south facing balcony. Under the same ownership from the point of build, the successful bidding party should envisage a wholesale programme of modernisation – of course, price reflected, and a great opportunity to redesign/upgrade one of these super apartments in ones’ own taste and vision.
Prior to viewing, we would recommend assessment of the surveyor’s Home Report.
Summary of Accommodation
- Reception hallway with storage off
- Large lounge/dining area with balcony off
- Kitchen
- Three bedrooms
- Family bathroom and ensuite
Situation
Whistlefield Court is located just off Canniesburn Road and is therefore well placed for easy commuting to Glasgow's West End and to the City Centre. Bearsden Cross is just under one mile to the north with the shopping facilities at Anniesland just over one mile to the south. The nearest railway station is at Bearsden, Station Road (about a 10-minute walk) with another station at Westerton which has more services given its branch connection.
Sat Nav Ref: G61 1px
EPC : BAND G
COUNCIL TAX : BAND F
TENURE : FREEHOLD
More Details
Situation: Balcony
Council Tax Band: F
Tenure: Freehold
Your home may be repossessed if you do not keep up repayments on your mortgage. There may be a fee for mortgage advice. The actual amount you pay will depend upon your circumstances.
Similar Properties
Looking To Sell Or Let?
Rettie is one of the most trusted and well-respected names in property. Our unrivalled market knowledge helps people from around the world buy, sell, let and develop property in Scotland and the North East of England - from city apartments and rural cottages to large townhouses and prime country homes, farms and estates. We deal with some of the most prestigious properties on the market, but provide the same exceptional standards of service and value for money to all our clients.
