Property Description
- Three bed semi-detached villa by John Lawrence
- Set in midst of quiet address in Boclair district
- Very well maintained – room to redecorate according to taste
- Good rear garden – set over two principal tiers, backing onto established woodland
- Killermont Primary and Boclair Academy catchment
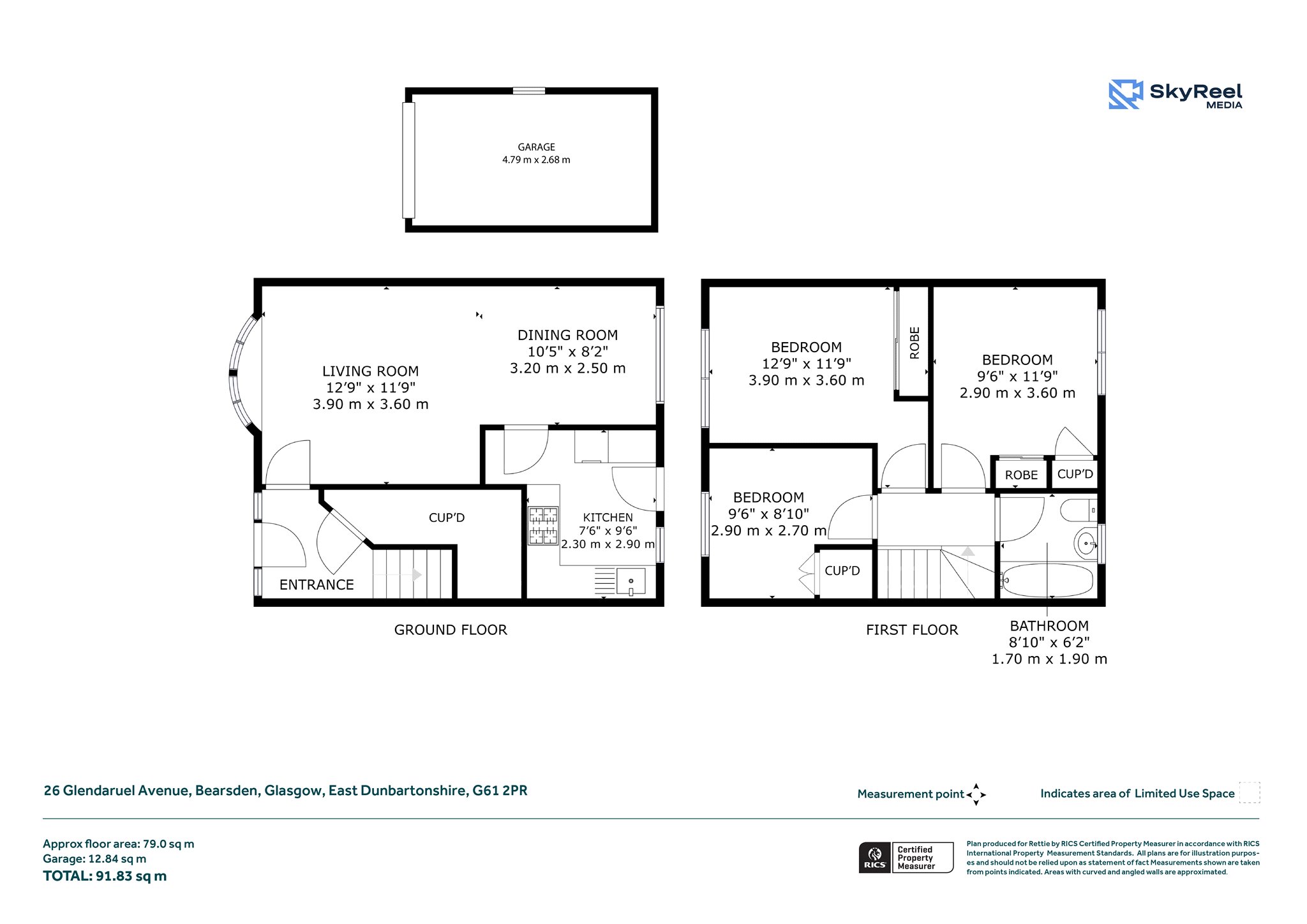
- Off street driveway parking and detached garage
Of a consistently popular house type and enjoying a location in one of the Boclair district’s quieter addresses, No.26 Glendaruel Avenue has been very well maintained across the duration of our client’s ownership and affords the successful bidding party plenty scope to redecorate and, potentially, extend according to taste and budget. A home brimming with inherent value and one deserving of prompt first hand inspection.
Summary of Accommodation
- Entrance vestibule
- Reception hallway with large storage cupboard
- Lounge/dining area
- Contemporary fitted kitchen
- Three
- piece family bathroom
- Three bedrooms – two doubles and additional single room
Situation
Apart from the schools, the house is handy for the shops on Rannoch Drive and more so Sainsburys and Asda on Milngavie Road. Bearsden Cross and the excellent facilities to be found there are about 1 mile to the west. The nearest Railway Station is at Hillfoot where regular services connect you into Glasgow’s West End and City Centre.
Sat Nav Ref: G61 2pr
EPC: BAND C
COUNCIL TAX : BAND E
TENURE : FREEHOLD
More Details
Situation: Private Garden
Council Tax Band: E
Tenure: Freehold
Your home may be repossessed if you do not keep up repayments on your mortgage. There may be a fee for mortgage advice. The actual amount you pay will depend upon your circumstances.
Similar Properties
Looking To Sell Or Let?
Rettie is one of the most trusted and well-respected names in property. Our unrivalled market knowledge helps people from around the world buy, sell, let and develop property in Scotland and the North East of England - from city apartments and rural cottages to large townhouses and prime country homes, farms and estates. We deal with some of the most prestigious properties on the market, but provide the same exceptional standards of service and value for money to all our clients.
