Offers Over £230,000
First Floor Apartment
2 Bedrooms
2 Bathrooms
1 Reception Room
Off Street Parking
Property Description
- Large two bedroomed apartment by CALA Homes (2004)
- Fantastic position in quiet residential development close by Bearsden Golf Club
- Spacious lounge with ‘Juliet’ balcony
- Contemporary kitchen, shower rooms, fixtures & fittings
- Off street residents’ parking
- Security controlled entry system
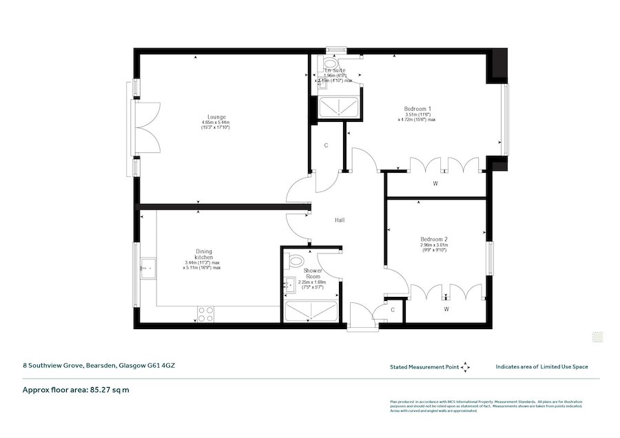
Constructed by the well-regarded CALA Homes in 2004, Southview Grove is a notably intimate and highly regarded development including twelve luxury apartments and enjoys an appealing situation towards the end of quiet residential cul-de-sac to the north side of Bearsden Golf Course. This particularly property (one of the larger two bedroomed models) is positioned on the preferred first floor of the building and, as viewing will verify, features large room proportions throughout, including a fantastic lounge with ‘Juliet’ balcony.
Our suite of HDR images, 360° immersive tour, HD video and floorplan will allow for thorough desktop appraisal of the property, with a summary of the accommodation to be found as follows:-
Summary of Accommodation
Reception hallway with storage off, large lounge with Juliet balcony, contemporary fitted kitchen with range of integrated appliance/oak worktops/smart handleless cabinets, two double bedrooms, shower room x2 (one off principal bedroom)
There is gas central heating with a combination boiler, UPVC double glazed windows, wireless ceiling speakers in the two shower rooms and a security door entry system for the communal front door. Super wardrobe/storage provision.
Situation
Nearby Castlehill Primary School and not far from St Nicholas’ Primary and Bearsden Academy. A few hundred yards from Thorn Park. An easy walk, via Westbourne Drive Lane, to Bearsden Cross.
Residents’ gardens with play area and car park.
Sat Nav Ref: G61 4gz
EPC : BAND B
COUNCIL TAX : BAND F
TENURE : FREEHOLD
More Details
Situation: Contact branch
Council Tax Band: F
Tenure: Freehold
Your home may be repossessed if you do not keep up repayments on your mortgage. There may be a fee for mortgage advice. The actual amount you pay will depend upon your circumstances.
Similar Properties
Looking To Sell Or Let?
Rettie is one of the most trusted and well-respected names in property. Our unrivalled market knowledge helps people from around the world buy, sell, let and develop property in Scotland and the North East of England - from city apartments and rural cottages to large townhouses and prime country homes, farms and estates. We deal with some of the most prestigious properties on the market, but provide the same exceptional standards of service and value for money to all our clients.
