Fixed Price £250,000
Semi Detached House
2 Bedrooms
1 Bathroom
1 Reception Room
Private Garden
Off Street Parking
Property Description
- John Lawrence Semi-Detached Villa
- Open plan lounge/dining room
- Kitchen
- 2 Bedrooms
- Shower room
- Double glazed, gas central heating
- Front and rear gardens.
- Driveway for up to 3 cars.
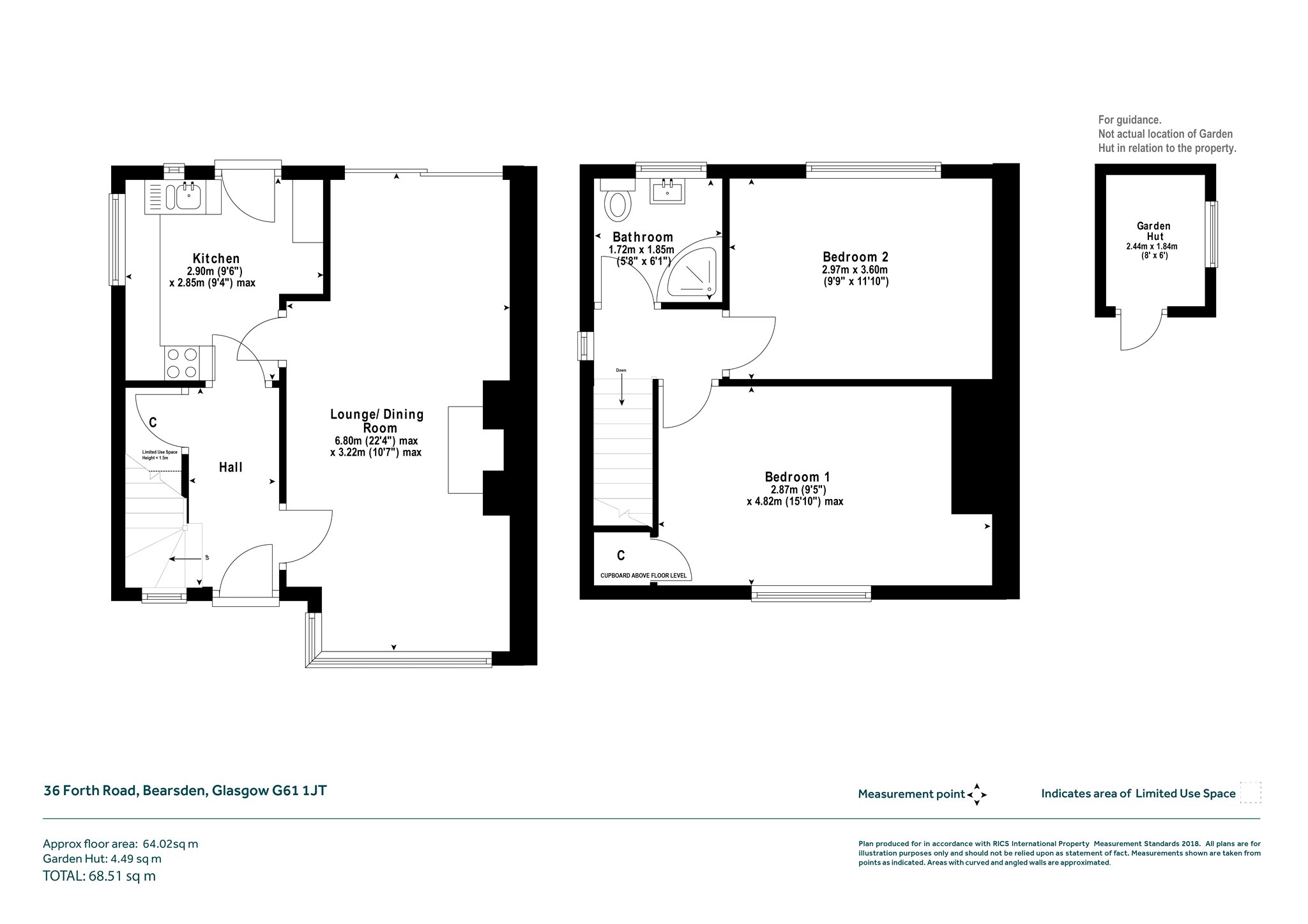
Ground Floor
Hall with under stair storage cupboard; Open plan Lounge/Dining room with French doors to the rear garden; Kitchen – kitchen units with smart worktops and tiled upstand. Appliances include four burner gas hob, double oven with grill and cooker hood. Additionally, there is space/plumbing for washing machine and a fridge freezer.
First Floor
Upper Landing with side window, hatch to attic; two Double Bedrooms; Shower room with both deluge and hand shower heads.
Situation
The property is situated in Bearsden’s Stonedyke district. Nearby is the Primary School of Colquhoun Park. Secondary Schooling is at Boclair Academy (new £40m school premises currently under construction). Within a 10-minute walk (approximately 0.5 miles) is Westerton Railway Station providing regular links into Glasgow’s West End and City Centre including west bound to West Dunbartonshire. Bearsden Cross is just over one mile to the northeast. Colquhoun Park, a great expanse for children and with a small Nature Reserve, is just beyond Canniesburn Road.
Sat Nav Ref: G61 1jt
COUNCIL TAX : BAND D
EPC : BAND D
TENURE : FREEHOLD
More Details
Situation: Private Garden
Council Tax Band: D
Tenure: Freehold
Your home may be repossessed if you do not keep up repayments on your mortgage. There may be a fee for mortgage advice. The actual amount you pay will depend upon your circumstances.
Similar Properties
Looking To Sell Or Let?
Rettie is one of the most trusted and well-respected names in property. Our unrivalled market knowledge helps people from around the world buy, sell, let and develop property in Scotland and the North East of England - from city apartments and rural cottages to large townhouses and prime country homes, farms and estates. We deal with some of the most prestigious properties on the market, but provide the same exceptional standards of service and value for money to all our clients.
