Property Description
This immediately impressive two-bedroom apartment occupies a preferred first floor position and is located in the highly popular and incredibly convenient Thornwood district.
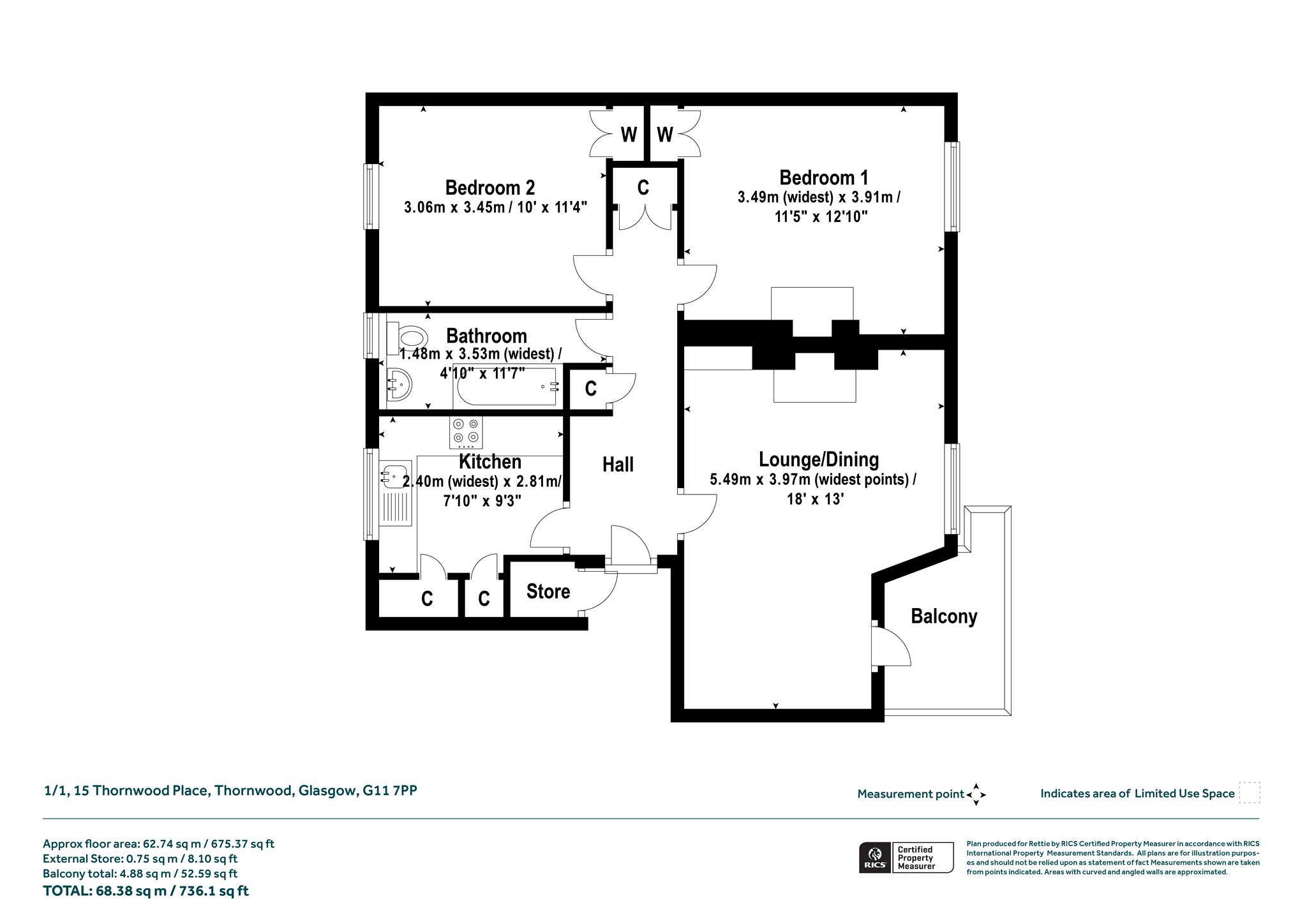
The internal accommodation benefits from excellent natural light, is of generous proportions and is presented in walk in condition throughout. Notable highlights include a fabulous main lounge/dining room, a separate kitchen off the reception hall, two spacious double bedrooms and an attractive three-piece bathroom. Additional features include ample storage off the reception hall, bedroom one and bedroom two together with the added bonus of a large, private balcony accessed from the lounge/dining room.
15 Thornwood Place is located in the sought-after Thornwood area and is exceptionally well placed to take advantage of an enviable selection of local amenities in Partick, Hyndland and Broomhill together with excellent transport links and access to The University of Glasgow and Anniesland College.
Accommodation:
- Communal entrance close
- Welcoming reception hall with two useful storage cupboards off
- Superb main lounge/dining room with window to the front and access to private balcony
- Charming, separate kitchen off the reception hall complete with a range of base and wall units, integrated appliances, additional storage and two section window to the rear
- Bedroom one with two section window to the front and fitted wardrobes
- Bedroom two with two section window to the rear and fitted wardrobes
- Stylish three-piece bathroom comprising bath, over bath shower, toilet and wash hand basin. Window to the rear
- Gas central heating
- Double glazing
- Well maintained shared garden to the rear of the building
EPC: C
Council Tax: B
Tenure : Freehold
More Details
Situation: BalconyCommunal Garden
Council Tax Band: B
Tenure: Freehold
Your home may be repossessed if you do not keep up repayments on your mortgage. There may be a fee for mortgage advice. The actual amount you pay will depend upon your circumstances.
Similar Properties
Looking To Sell Or Let?
Rettie is one of the most trusted and well-respected names in property. Our unrivalled market knowledge helps people from around the world buy, sell, let and develop property in Scotland and the North East of England - from city apartments and rural cottages to large townhouses and prime country homes, farms and estates. We deal with some of the most prestigious properties on the market, but provide the same exceptional standards of service and value for money to all our clients.
