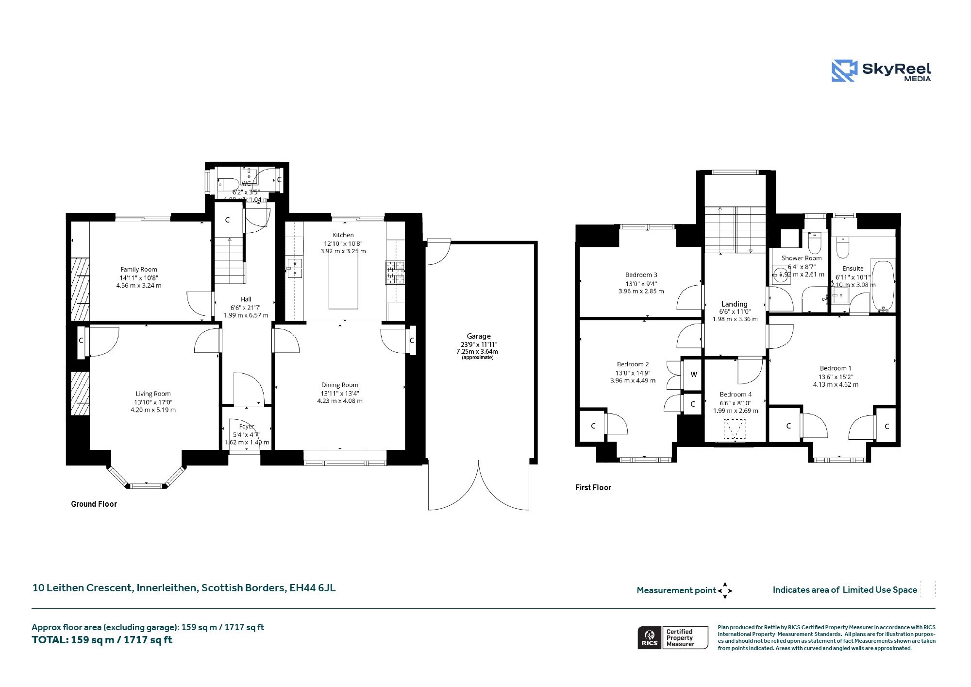
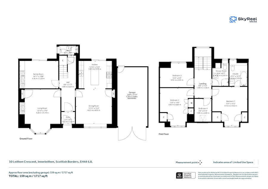
10 Leithen Crescent, Innerleithen, Scottish Borders, EH44 6JL

Innerleithen, Scottish Borders, EH44 6JL
Under Offer
Pin View on map

Offers Over £540,000

House

Detached House

Bed

4 Bedrooms

Bathroom

2 Bathrooms

Reception

3 Reception Rooms

Size

1,717 sq.ft

Tree

Private Garden

Garage

Garage

Parking

Off Street Parking

Telephone

Property Description

No.10 Leithen Crescent is a charming Victorian manse set within a peaceful and generous sized plot in the sought after town of Innerleithen set in the stunning Tweed Valley. The property boasts four bedrooms and three reception rooms offering flexible space for family living over two principal floors.

Highlights Include

  • Generous sitting room with ornate carved wooden fireplace, deep bay window, wood-burning stove and ornate cornicing.
  • Open plan kitchen/dining room with picture window, modern country-style kitchen and original wooden floorboards.
  • Cosy snug/family room which doubles as a useful home office, the room further benefits from a wood-burning stove and french doors to the garden.
  • Refurbished windows replaced with double glazed timber sash and case units in the sitting room, kitchen, principal bedroom and second bedroom.
  • Principal bedroom with large en-suite bathroom boasting shower over bathtub and white three-piece suite.
  • Three further bedrooms (two doubles and one single) and additional shower room.
  • Useful downstairs WC with back door and cloakroom.
  • Generous, mature enclosed wraparound gardens offering privacy and ample opportunity to enjoy the sunshine.
  • Large outhouse ideal for storage/external home office/home gym.
  • Ample off-street parking for several vehicles and EV Charging facility installed.

10 Leithen Crescent is an utterly charming home, rich in key period features whilst also enjoying sensitive modern upgrades to the windows and bathrooms. Its peaceful location is only a short distance from the bustling high-street which boasts an array of independent retailers, coffee shops, restaurants, and local schooling is a short walk from the property.

Innerleithen is well connected being only 7-miles East of Peebles and the Edinburgh City Bypass is a mere 22-mile drive. The A72 serves as an easy connection to the wider central Scottish Borders. There are regular bus routes to the Borders and Edinburgh via the X62 service.

EPC Rating - D
Council Tax - E
Tenure - Freehold

Viewings by appointment via Rettie Borders.

More Details

Situation: Private Garden
Council Tax Band: E
Tenure: Freehold

Contact Us

Hugh Rettie

Hugh Rettie

Associate Director
Paul Banyard Cert CII (MP)

Paul Banyard Cert CII (MP)

Mortgage & Protection Advisor
Mortgage Calculator
Monthly payments
Please set an interest rate.

Your home may be repossessed if you do not keep up repayments on your mortgage. There may be a fee for mortgage advice. The actual amount you pay will depend upon your circumstances.

Tax Calculator
LBTT calculator for properties purchased in Scotland. Stamp Duty calculator for properties purchased in England.
Land & buildings transaction tax (LBTT)
= £0
New build house with stone and timber cladding

Looking To Sell Or Let?

Rettie is one of the most trusted and well-respected names in property. Our unrivalled market knowledge helps people from around the world buy, sell, let and develop property in Scotland and the North East of England - from city apartments and rural cottages to large townhouses and prime country homes, farms and estates. We deal with some of the most prestigious properties on the market, but provide the same exceptional standards of service and value for money to all our clients.