Lint Mill, Near Stenton, Dunbar, East Lothian, EH42 1TD

Dunbar, East Lothian, EH42 1TD
Sold
Pin View on map

Offers Over £695,000

House

Detached House

Bed

4 Bedrooms

Bathroom

2 Bathrooms

Reception

3 Reception Rooms

Size

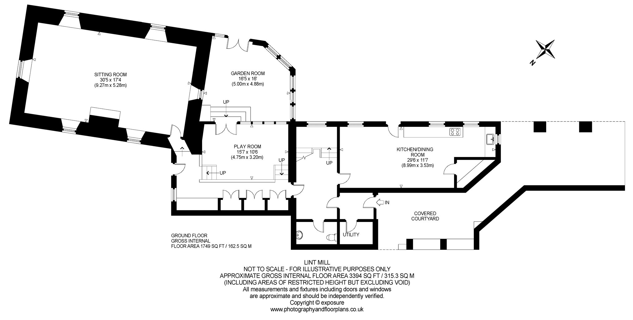
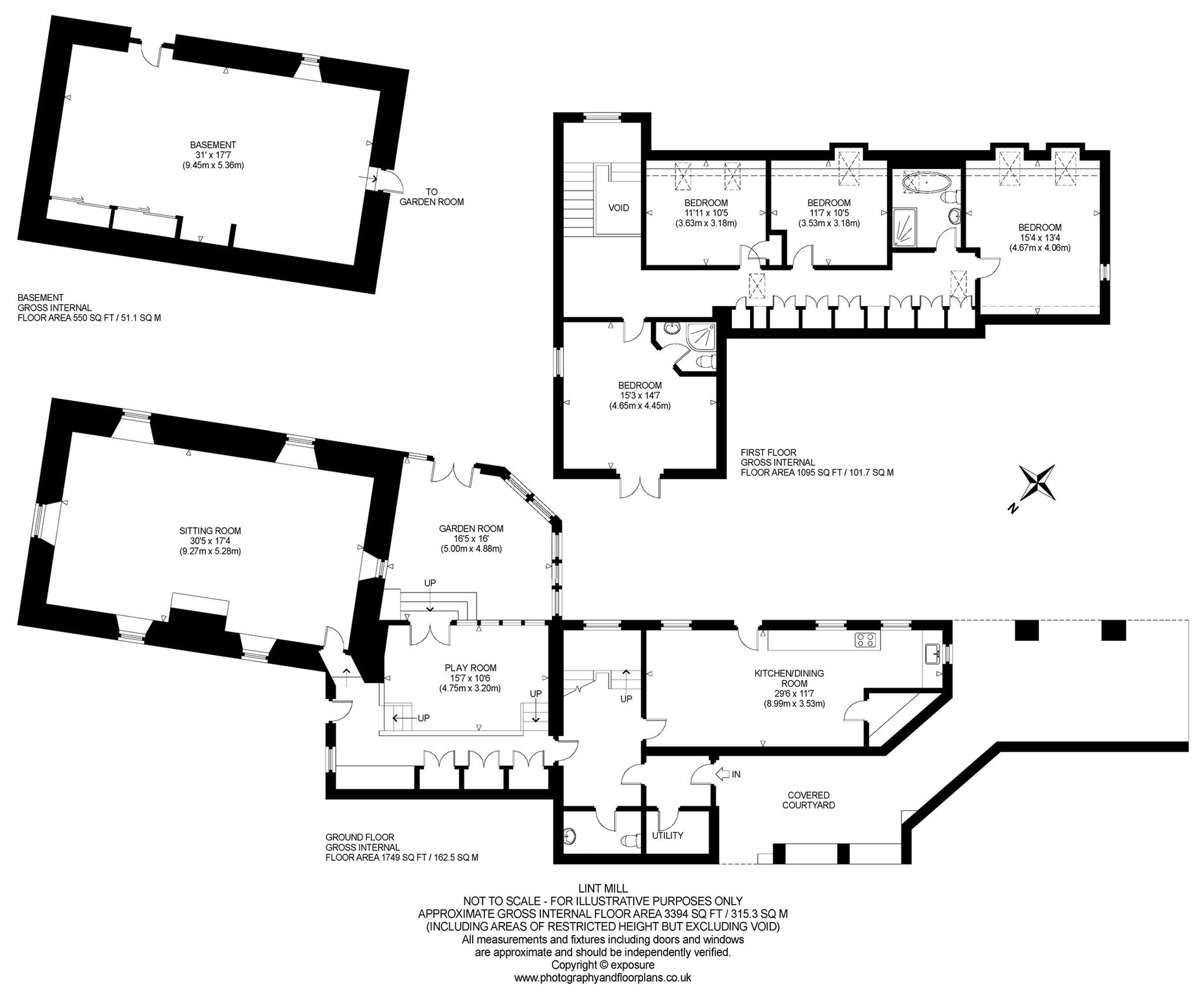
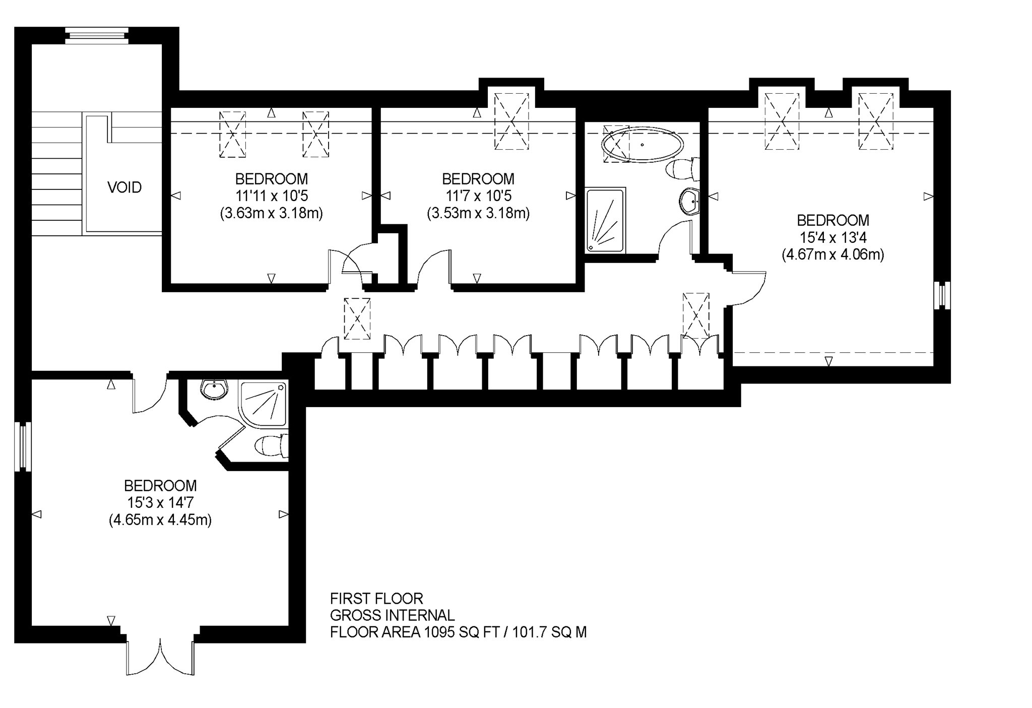
3,394 sq.ft

Plot

About 0.70 Acres

Tree

Private Garden

Telephone

Property Description

A delightful detached 4-bedroom family house overlooking the Whittingehame Water with stunning views across open countryside, all within easy commuting distance of Edinburgh.

Summary of Accommodation:

Ground Floor: Vestibule, Hall, Sitting Room, Dining Room, Garden Room, Kitchen/Breakfast Room with doors to large decked Terrace, Study Area, Utility Room, Shower Room.

First Floor: Landing, Master Bedroom with En-suite Shower Room & Terrace, Three Further Double Bedrooms, Family Bathroom.

Basement: Gym/Office/Studio/Games Room/Workshop

About 0.70 Acres

More Details

EPC Band - E
Council Tax - Band G
Tenure - Freehold

Contact Us

Charlotte Canby

Charlotte Canby

Senior Sales Negotiator
Andrew Smith MRICS

Andrew Smith MRICS

Director of Country House Sales
Paul Banyard Cert CII (MP)

Paul Banyard Cert CII (MP)

Mortgage & Protection Advisor
Mortgage Calculator
Monthly payments
Please set an interest rate.

Your home may be repossessed if you do not keep up repayments on your mortgage. There may be a fee for mortgage advice. The actual amount you pay will depend upon your circumstances.

Tax Calculator
LBTT calculator for properties purchased in Scotland. Stamp Duty calculator for properties purchased in England.
Land & buildings transaction tax (LBTT)
= £0
New build house with stone and timber cladding

Looking To Sell Or Let?

Rettie is one of the most trusted and well-respected names in property. Our unrivalled market knowledge helps people from around the world buy, sell, let and develop property in Scotland and the North East of England - from city apartments and rural cottages to large townhouses and prime country homes, farms and estates. We deal with some of the most prestigious properties on the market, but provide the same exceptional standards of service and value for money to all our clients.