Offers Over £230,000
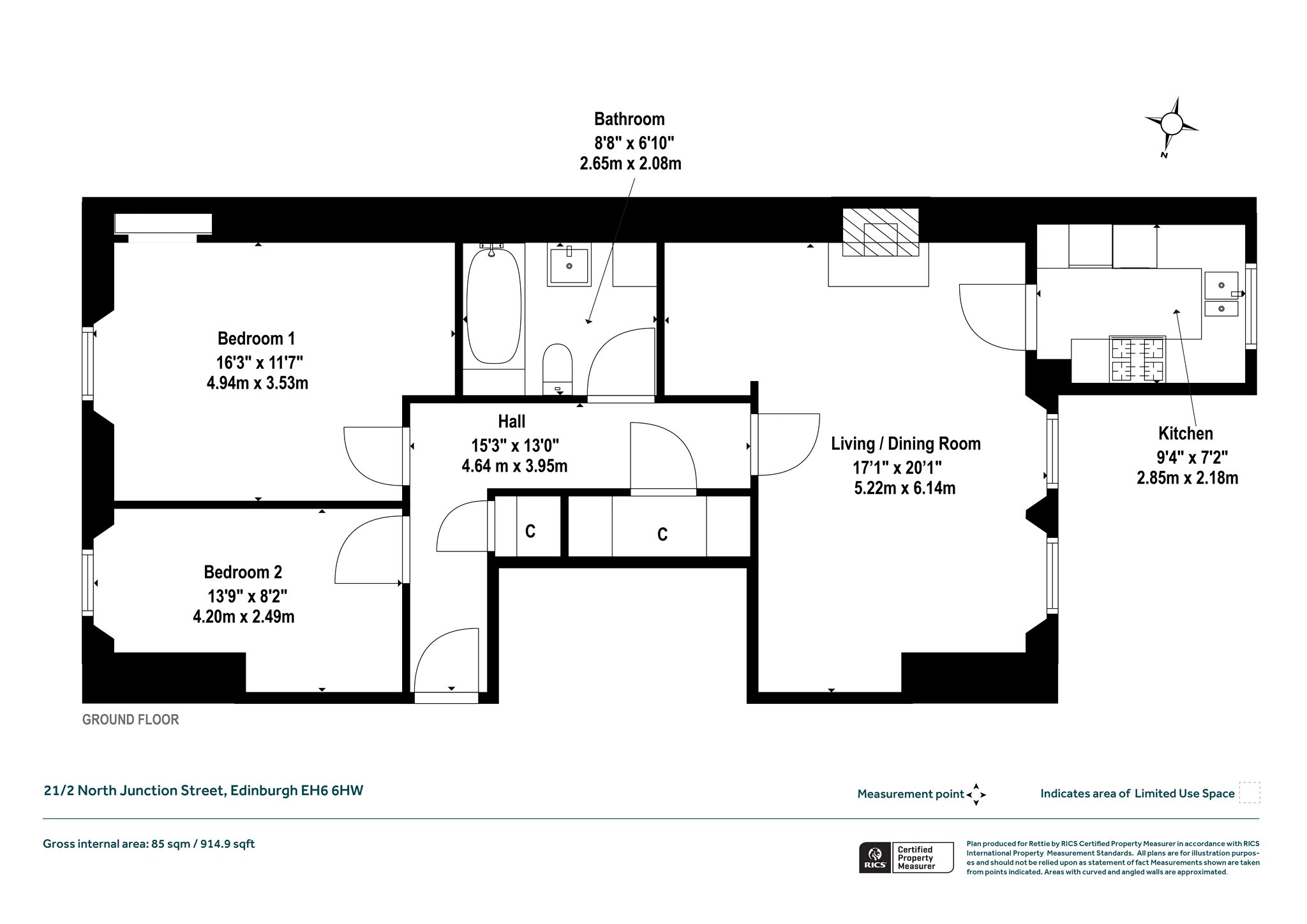
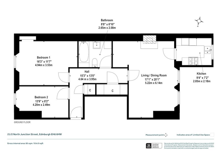
Ground Floor Apartment
2 Bedrooms
1 Bathroom
1 Reception Room
914 sq.ft
Communal Garden
On Street/Permit
Property Description
An elegant and well proportioned two bedroom, ground floor flat situated in the heart the vibrant and ever-popular district of Leith, offering stylish modern living within easy reach of The Shore, excellent transport links, and a wealth of local amenities.
The property features a bright and spacious lounge / dining room, contemporary fitted kitchen with ample storage, two double bedrooms, ideal for guests or home working, modern bathroom with clean, neutral finishes and excellent storage in the hall.
The property is presented in walk-in condition throughout and will make it an ideal home for first time buyers, investors, or those seeking a well connected city base - this home combines convenience, character, and a highly desirable location.
Summary Of Accommodation
Ground Floor: Entrance Hall, Living / Dining Room, Kitchen, Two Double Bedrooms, Bathroom, Storage Cupboards
Externally
Communal Residents' Garden
Residents’ Permit Parking and Pay & Display Parking provided nearby.
More Details
EPC: D
CT Band: C
Tenure: Freehold
Viewing by appointment.
Your home may be repossessed if you do not keep up repayments on your mortgage.
There may be a fee for mortgage advice. The actual amount you pay will depend upon your circumstances. The fee is up to 1% but a typical fee is 0.3% of the amount borrowed.
Similar Properties
Looking To Sell Or Let?
Rettie is one of the most trusted and well-respected names in property. Our unrivalled market knowledge helps people from around the world buy, sell, let and develop property in Scotland and the North East of England - from city apartments and rural cottages to large townhouses and prime country homes, farms and estates. We deal with some of the most prestigious properties on the market, but provide the same exceptional standards of service and value for money to all our clients.
