Property Description
Having been extensively renovated throughout with a stylish, contemporary finish, this striking one-bedroom apartment also enjoys superb river views from its private balcony and the convenience of a secure allocated parking space. Positioned on the first floor of one of Glasgow’s pioneering residential warehouse conversions, within the original Lancefield Quay, the apartment occupies a prime riverside location on the edge of the River Clyde. It is ideally situated for easy access to the City Centre, the International Financial Services District, and the vibrant Finnieston area, where a wide array of amenities can be found along Argyle Street, along with excellent public transport connections.
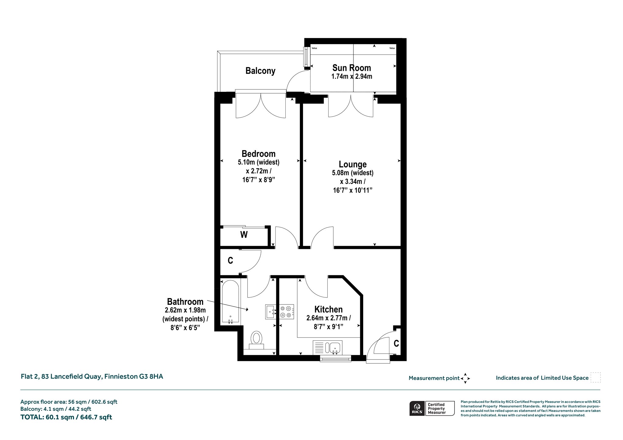
Entered via security entry door to communal entrance with stair access to each secure floor, the apartment boasts outstanding south-facing views across the river and is immaculately presented with bright, well-proportioned living space. The accommodation extends to welcoming L-shaped reception hall with two storage cupboards off; generous main living room with patio doors into a south facing conservatory sun room offering ample space for dining and with door to private balcony; double bedroom with fitted wardrobes; three piece bathroom with white suite, over bath shower and wall and floor tiling; modern kitchen complete with a range of base and wall units with a mix of integrated appliances, and tiled flooring. The property has gas central heating (replaced boiler), double glazing and an allocated parking space in the building’s residents’ car park.
Situation:
Lancefield Quay is situated on the edge of the City Centre and Finnieston. The location offers easy access to the central business district and a superb choice of wine bars, many highly acclaimed restaurants and wealth of amenities including both general and specialist shopping. In addition, being ideally located mid-way between Glasgow City Centre and the trendy West End’s vibrant neighbourhood of Finnieston, a prominent and widely renowned social location; there is within a short distance a myriad choice of exhibition and conference venues, shopping, culture and several fitness clubs. In close proximity, is Glasgow’s media centre, the Universities of Glasgow, Strathclyde and Caledonian. Excellent road links, including M8, M74 and M77 motorways, are all easily accessible as are Exhibition Centre Train Station for access to Glasgow Central Railway Stations. Glasgow, Edinburgh and Prestwick airports can all be reached within less than an hour’s drive.
Travel Directions
Driving from our branch on Bath Street, proceed west on Bath Street towards Charing Cross, at the junction with Newton Street turn left and proceed south on A804 towards Anderston Quay, at the junction turn right onto Lancefield Quay where the building can be found on the left hand side. No. 83 is the sixth entrance on the left-hand side located two-thirds along the development.
More Details
EPC: C
Council Tax Band: F
Tenure: Freehold
Your home may be repossessed if you do not keep up repayments on your mortgage. There may be a fee for mortgage advice. The actual amount you pay will depend upon your circumstances.
Similar Properties
Looking To Sell Or Let?
Rettie is one of the most trusted and well-respected names in property. Our unrivalled market knowledge helps people from around the world buy, sell, let and develop property in Scotland and the North East of England - from city apartments and rural cottages to large townhouses and prime country homes, farms and estates. We deal with some of the most prestigious properties on the market, but provide the same exceptional standards of service and value for money to all our clients.
