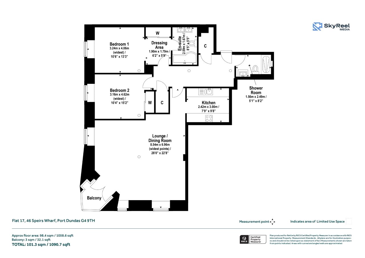
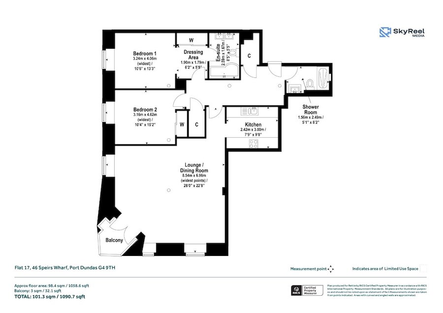
Flat 17, 46 Speirs Wharf, Port Dundas, Glasgow City, G4 9TH

Port Dundas, Glasgow City, G4 9TH
New
Pin View on map

Offers Over £269,000

House

Apartment

Bed

2 Bedrooms

Bathroom

2 Bathrooms

Reception

1 Reception Room

Size

1,119 sq.ft

Parking

Off Street Parking

Telephone

Property Description

Situated within the iconic Speirs Wharf development and seldom available, this corner set, second floor two-bedroom apartment offers an urban lifestyle with excellent transport links as well as a connection to nature and a scenic outlook, from the private balcony offering lovely views of the Forth and Clyde Canal. With dual aspects from its spacious open plan living and dining space and extending to over 1058 sq ft, the property has been upgraded and well maintained during its current ownership. The development is located on the north edge of the City Centre, with the Wharf buildings dating back to 1846, they were converted for both residential and commercial use in the 1980’s and with block 46 being upgraded more recently in the early 2000’s with notable features to include a deli restaurant, a spa, off street parking with security barrier, residents’ gym and residents’ indoor heated swimming pool with jacuzzi, steam room and sauna, as well as having great proximity to the City Centre, the West End and excellent transport links via the M8 motorway.

Accessed via security entry system, the communal entrance hall has both lift and stair access. The property has welcoming reception hall provides access to all main apartments and includes two generous storage cupboards. The main living and dining room spans 28 ft and features attractive structural beams and two recessed windows and corner balcony. The modern, semi-open-plan refitted kitchen is equipped with a range of base and wall-mounted units and integrated appliances. The generous main bedroom includes a large, fitted wardrobe with sliding glass doors providing excellent storage, a recessed window, and a refitted en-suite bathroom featuring over bath shower, bedroom two is a good-sized double with a recessed window and fitted wardrobes and there is a refitted shower room. The property is finished with fresh décor, a mix of carpet and laminate floor coverings, electric heating operated via smart sockets, and double glazing. Residents enjoy access to a gym, swimming pool, and off-street parking.

Situation

Speirs Wharf apartments were originally constructed in 1846 and have been finished externally in a blonde sandstone façade, situated on the banks of the Forth and Clyde Canal it is a short distance from the City Centre whilst having convenient access to Glasgow’s arterial motorway network, additional transport options are within close walking distance including Cowcaddens Subway Station, Buchanan Bus Station, Queen Street Railway Station and Glasgow Central Railway Station. The property is also within 30 mins walk from Glasgow’s Royal Infirmary, is just over a mile from the City Centre, the popular Merchant City and Strathclyde Universities Campus.

Travel Directions

From George Square proceed North onto North Hanover Street. Turn left onto Dobbie’s Loan continuing onto Craighall Road. Proceed through the roundabout, continuing along Craighall Road. Turn left into Speirs Wharf with No. 46 being at the far end of the building on the right-hand side.

More Details

Situation: Balcony
Council Tax Band: E
Tenure: Freehold

Request More Details

Lisa Pitchers MRICS

Lisa Pitchers MRICS

Associate Director
Craig Roberts

Craig Roberts

Mortgage & Protection Advisor
Mortgage Calculator
Monthly payments
Please set an interest rate.

Your home may be repossessed if you do not keep up repayments on your mortgage. There may be a fee for mortgage advice. The actual amount you pay will depend upon your circumstances.

Tax Calculator
LBTT calculator for properties purchased in Scotland. Stamp Duty calculator for properties purchased in England.
Land & buildings transaction tax (LBTT)
= £0
New build house with stone and timber cladding

Looking To Sell Or Let?

Rettie is one of the most trusted and well-respected names in property. Our unrivalled market knowledge helps people from around the world buy, sell, let and develop property in Scotland and the North East of England - from city apartments and rural cottages to large townhouses and prime country homes, farms and estates. We deal with some of the most prestigious properties on the market, but provide the same exceptional standards of service and value for money to all our clients.