Flat 4.9 Vienna Apartments, 55 Mitchell Street, Glasgow City, G1 3LN
Property Description
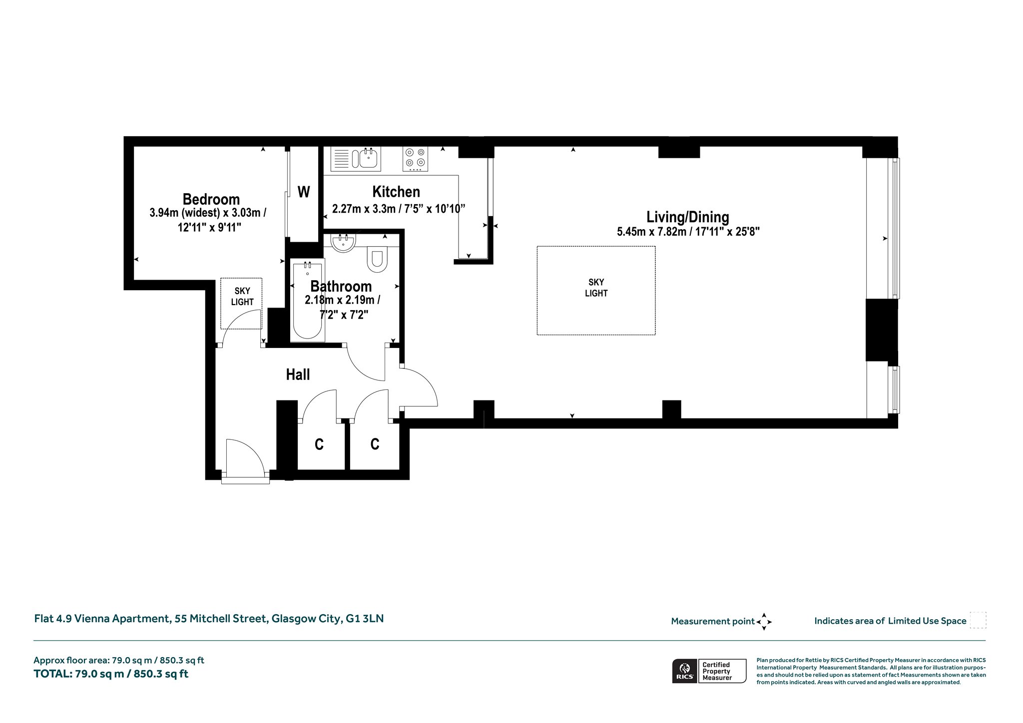
Super stylish and exceptionally spacious this one-bedroom, City apartment has been recently redecorated, and offers very generous proportions extending to over 950 sq ft. Situated on the fourth floor of the Vienna Apartments, the extensive open plan loft style living space stretches over 25’ 8” and has windows stretching the length of the east facing space, and with open outlook over Mitchell Street and towards the famous Lighthouse tower. The layout offers great flexibility for anyone working from home and looking for space and being so central, the property is well placed to take advantage of the many amenities of City living and has excellent transport links.
Accessed via security entry to communal hallway, there is both lift and stair access to upper floors. Completed in 2009 by Messer’s Burrell Homes the flat forms part of the traditional sandstone warehouse refurbishment section of the development. The accommodation comprises reception hallway with quality wood flooring, a laundry room cupboard, additional storage and access to the impressive open plan living/dining room spanning with engineered wood flooring and modern kitchen set back from the living space, complete with a range of base and wall mounted units, integrated appliances, main three-piece bathroom complete with tiled floor and wall coverings and over bath shower, the double bedroom is a haven for sleep with its Velux window and cavernous feel. The property has double glazing, electric heating system and fresh décor throughout. There is a locked communal bike store in the basement and an active building Residents Committee and WhatsApp group to steer the building management and maintenance.
Situation
Mitchell Street is located in the heart of Glasgow’s City Centre running parallel to Buchanan Street, part of Glasgow’s Style Mile. It is an area of Glasgow which has benefitted from significant redevelopment in the last few decades with both commercial developments and exclusive residential buildings. This setting offers one of the most prominent social locations Glasgow has to offer with wealth of amenities including both general and specialist shopping, wine bars and many highly acclaimed restaurants and is also conveniently located for access to the Merchant City. The property is in close proximity to Strathclyde & Caledonian Universities, the Glasgow School of Art, Royal Conservatoire as well as Glasgow’s #IFSD, the SEC and The Clyde Auditorium. The area benefits from frequent public transport with easy access to Central and Queen Street Train Stations, and St Enoch subway stations. Public transport and road links are exceptional. Parking permits are available on subscription with next door NCP or Jamaica Street’s Q-Park
Travel Directions
On foot from our office on Bath Street continue East down Bath Street, turning 5th right onto West Nile Street. Proceed South eventually crossing over Gordon Street onto Mitchell Street. No. 55 can be found halfway down on the right-hand side. Buzzer entry is 49 CALL.
More Details
EPC: C
Council Tax Band: E
Tenure: Freehold
Your home may be repossessed if you do not keep up repayments on your mortgage. There may be a fee for mortgage advice. The actual amount you pay will depend upon your circumstances.
Similar Properties
Looking To Sell Or Let?
Rettie is one of the most trusted and well-respected names in property. Our unrivalled market knowledge helps people from around the world buy, sell, let and develop property in Scotland and the North East of England - from city apartments and rural cottages to large townhouses and prime country homes, farms and estates. We deal with some of the most prestigious properties on the market, but provide the same exceptional standards of service and value for money to all our clients.
