Flat 4/5 The Monument, 5 Moir Street, Gallowgate, Glasgow, G1 5AE
Property Description
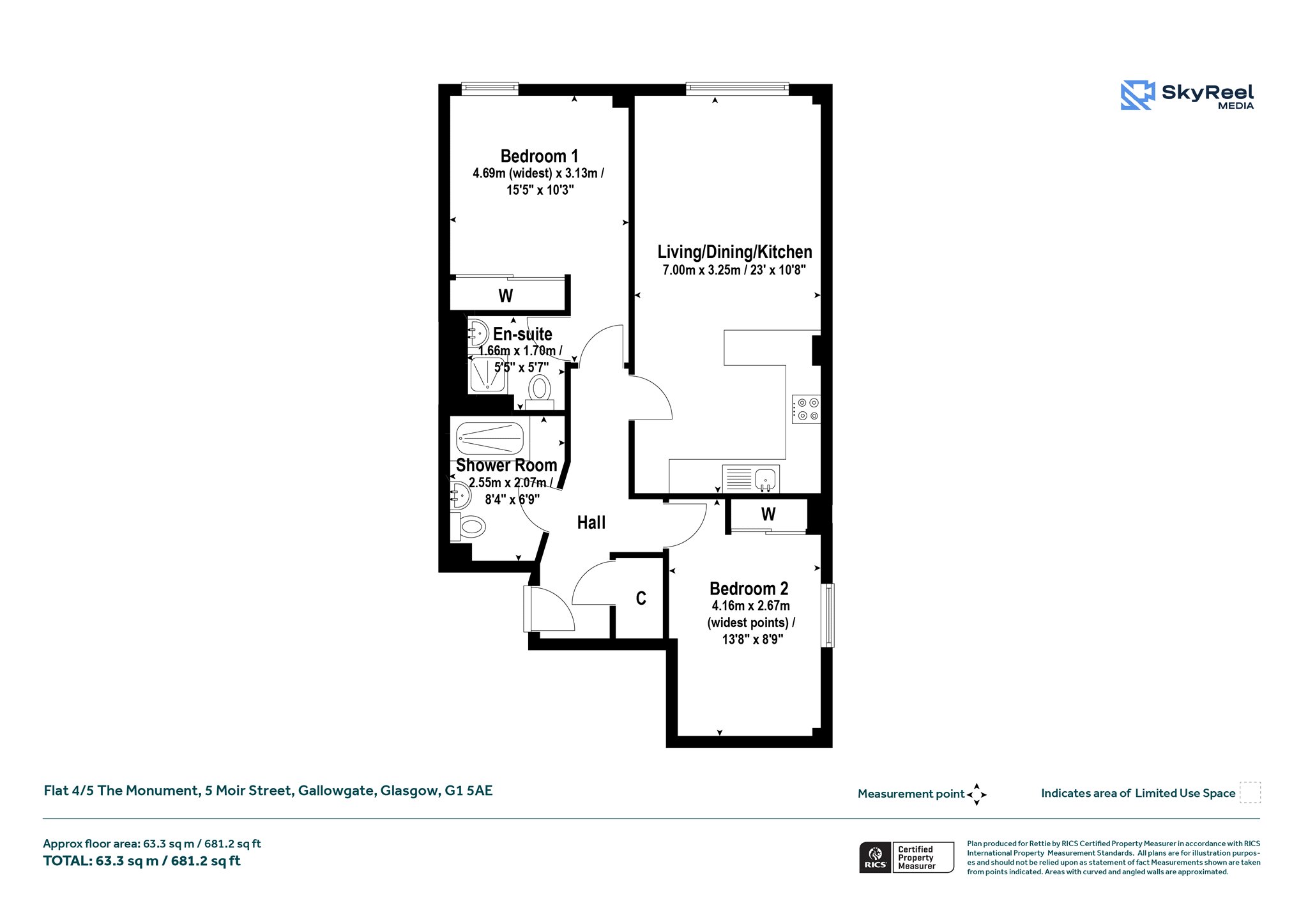
This modern two bedroom flat is in turn key condition, boasting a re-fitted kitchen and two re-fitted shower rooms, the property is situated on the east elevation of the fourth floor the Monument Building, completed in 2004 and located on the corner of Gallowgate and Barrowland Park. Just a few minutes’ walk from Glasgow’s Merchant City, the Barras Art and Design venue (BAaD) and it’s fore runner development The Homes for the Future at Glasgow Green.
Spanning over 681 square feet, the property has been both upgraded and well maintained by the current owner and offers generous lounge/dining/kitchen of over 23 ft, the modern re-fitted kitchen is off set from the living area and completed with breakfasting peninsula; there are two double bedrooms, both with fitted wardrobes and with the principal having en suite shower room; main bathroom and hall cupboard. The property has gas central heating and double glazing and there are well maintained communal courtyard gardens.
Situation
This generous apartment is situated on Gallowgate, an area of Glasgow’ City Centre which is benefitting from ongoing and significant redevelopment and in easy reach of the vibrant Merchant Centre where there is an outstanding selection of shops nearby on Argyle Street, Ingram Street, Buchanan Street’s Style Mile, together with a wonderful choice of restaurants and bars. Transport links are on the doorstep via bus and by rail with High Street, Queen Street and Glasgow Central Station all within a few minutes’ walk. There are a number of local hospitals nearby and the property is also well placed for road links including the M8 motorway network
Travel Directions
On foot from George Square head south onto South Frederick Street towards Ingram Street. At the traffic lights turn left onto Ingram Street. Continue east along Ingram Street and at the junction with High Street turn right and head south towards the Toll Booth. At the junction with Gallowgate, turn left and proceed east to the junction with Moir Street, turn right into Moir Street where you will find the entrance to No. 5 almost immediately on the left-hand side.
More Details
Situation: Communal Garden
Council Tax Band: E
Tenure: Freehold
Your home may be repossessed if you do not keep up repayments on your mortgage. There may be a fee for mortgage advice. The actual amount you pay will depend upon your circumstances.
Similar Properties
Looking To Sell Or Let?
Rettie is one of the most trusted and well-respected names in property. Our unrivalled market knowledge helps people from around the world buy, sell, let and develop property in Scotland and the North East of England - from city apartments and rural cottages to large townhouses and prime country homes, farms and estates. We deal with some of the most prestigious properties on the market, but provide the same exceptional standards of service and value for money to all our clients.
