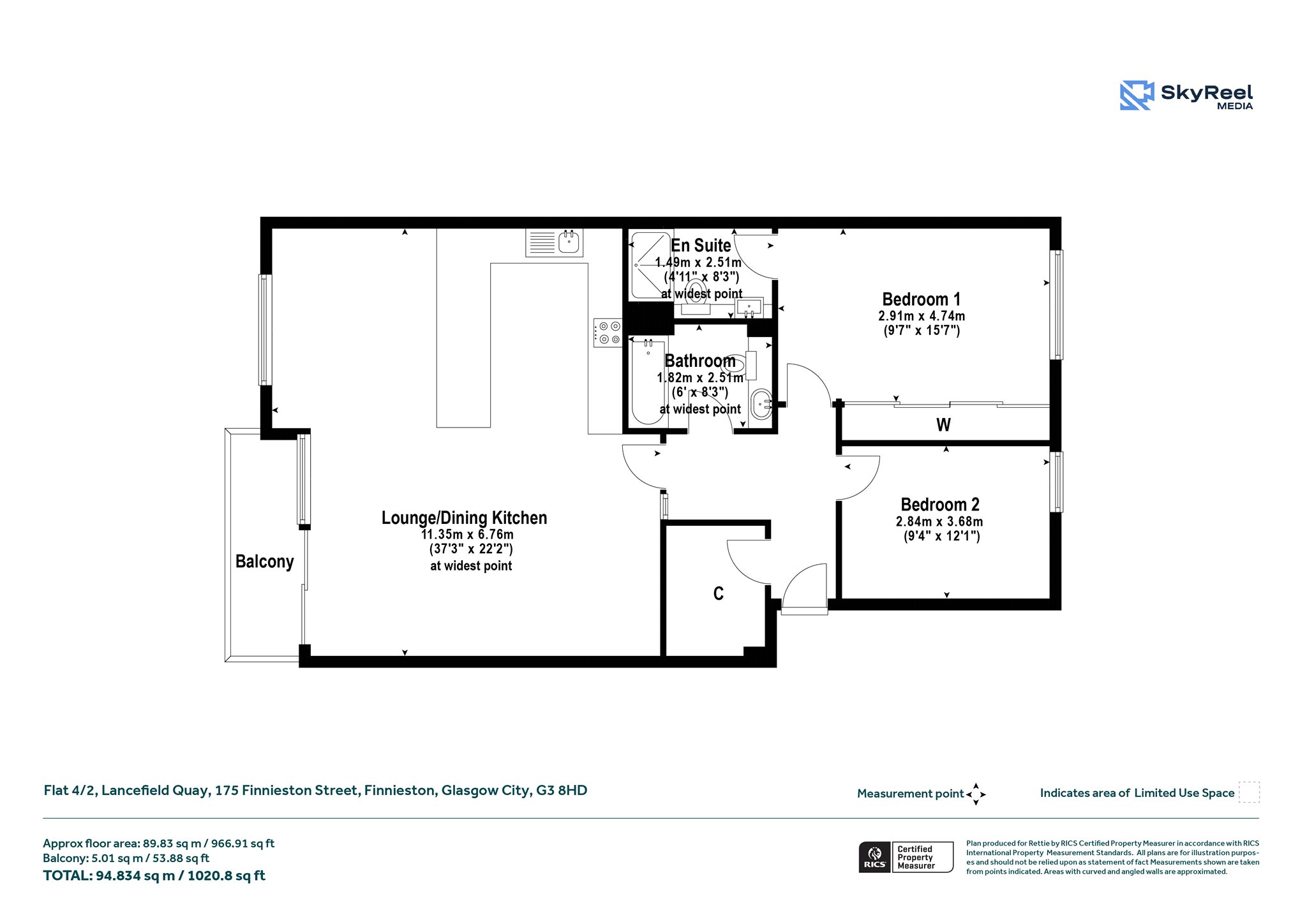
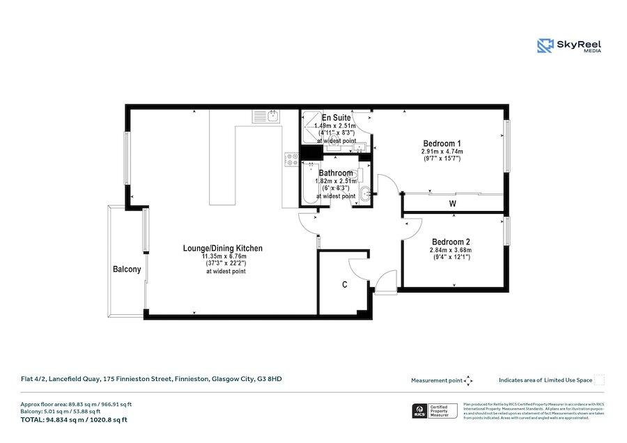
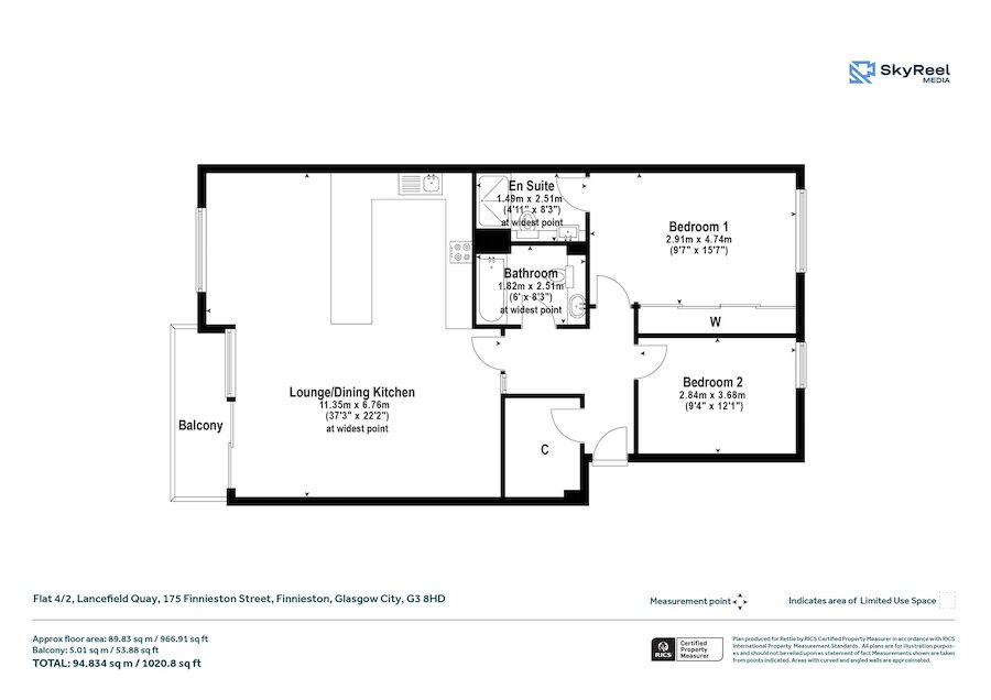
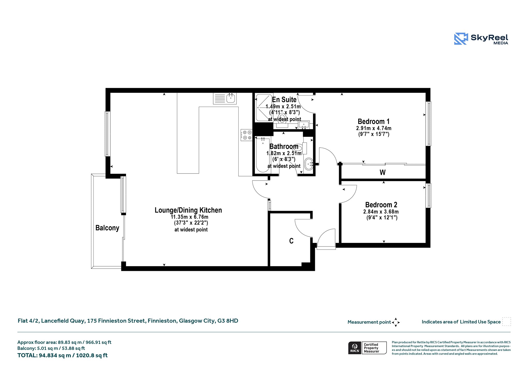
Flat 4/2, Lancefield Quay, 175 Finnieston Street, Finnieston, Glasgow City, G3 8HD
Offers Over £245,000
Apartment
2 Bedrooms
2 Bathrooms
1 Reception Room
966 sq.ft
Secure Parking
Property Description
Stylish and having been comprehensively upgraded by the current owner, this generous fourth floor two bedroom flat offers the significant advantage of secure allocated parking space. Located in Finnieston, an area ideally positioned for both the thriving City Centres Financial Services District and the vibrant West End’s local amenities on Argyle Street and offering superb transport links. The property extends to over 966 sq ft and has open an outlook south, west and north from the property’s private glass fronted balcony, enjoying views over Finnieston Street and towards the historic Clyde Crane.
Accessed via two secure gated entrances and the development has an onsite caretaker. There is further secure communal entrance offering lift and stair access to each floor. Internally the property is presented in turnkey condition with fresh decor throughout, refitted laminate wood effect flooring to the hallway and main living space and offers bright and generously proportioned accommodation with notable features including a fabulous open plan living room with dedicated dining area and fully re-fitted kitchen with breakfasting peninsula and integrated appliances, principal bedroom with a wall of fitted wardrobes and re-fitted en-suite shower room, second double sized bedroom and re-fitted three piece bathroom with tiled finishes and over bath shower. There is an added bonus of a separate utility room off the reception hall housing the gas combi central heating boiler.
Remediation works have commenced and are ongoing, this is being undertaken to ensure the building meets current regulations for a satisfactory EWS1 Certificate. The factors and co-owners’ application for The Scottish Governments Single Building Assessment (SBA) pilot was successful and original developers of the building are fully engaged, have provided a Letter of Undertaking relating to the works and are now scoping the second phase of the remediation scheme
Situation
Lancefield Quay is situated in the widely renowned neighbourhood of Finnieston, ideally located mid-way between Glasgow City Centre and the trendy West End, there is within a short distance a fabulous selection of restaurants bars and cafes, nearby Scottish Events Campus for exhibition and conference venues, great shopping, culture and several fitness clubs. In close proximity are Glasgow’s media centre, the Universities of Glasgow, Strathclyde and Caledonian. Excellent road links, including M8, M74 and M77 motorways, are all very easily accessible as are Anderston Station linking to Glasgow Central railway stations.
Travel Directions
From the Clyde ‘Squinty’ Bridge, proceed east on Lancefield Quay, turning first left into Elliot Street and almost immediately left into the gated courtyard of Lancefield Quay. Once inside the courtyard carpark area, head west through the development carpark and grounds where the entrance to No. 175 can be found directly opposite the gated entrance to the building.
More Details
Situation: Balcony
Council Tax Band: F
Tenure: Contact Branch
Your home may be repossessed if you do not keep up repayments on your mortgage. There may be a fee for mortgage advice. The actual amount you pay will depend upon your circumstances.
Similar Properties
Looking To Sell Or Let?
Rettie is one of the most trusted and well-respected names in property. Our unrivalled market knowledge helps people from around the world buy, sell, let and develop property in Scotland and the North East of England - from city apartments and rural cottages to large townhouses and prime country homes, farms and estates. We deal with some of the most prestigious properties on the market, but provide the same exceptional standards of service and value for money to all our clients.
