Property Description
This elegant sandstone four bedroom mid terraced house on Essex Drive marries classic Jordanhill character with a dramatic contemporary rear extension, awash with sunlight and creating an exceptional family home within prime Jordanhill School catchment.
The defining element of 115 Essex Drive is the home’s contemporary rear extension, which serves as an architectural marvel. A split level raised kitchen descends a soft toned timber stairway into a beautiful and serene living and dining area. This space is almost united with the outdoors through broad “wall to wall” bi-fold doors. Vaulted ceilings and an abundance of skylights further amplify the sense of volume and scale, thus creating an astonishing space perfect for family life and entertaining. Further practicality is lent via an imperative utility room, convenient downstairs shower room and useful cellar storage area.
Finally, we would like to highlight the innovative and high quality attic conversion which has a stylish stairway, upper landing, a fabulous bedroom with eaves storage and an amazing contemporary bathroom.
Essex Drive enjoys a peaceful setting at the heart of Jordanhill with excellent access to local amenities, transport links and the open spaces of Victoria Park. Jordanhill School is one of Scotland’s most prestigious and best performing schools, while several highly regarded independent schools are also nearby.
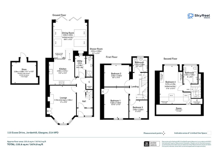
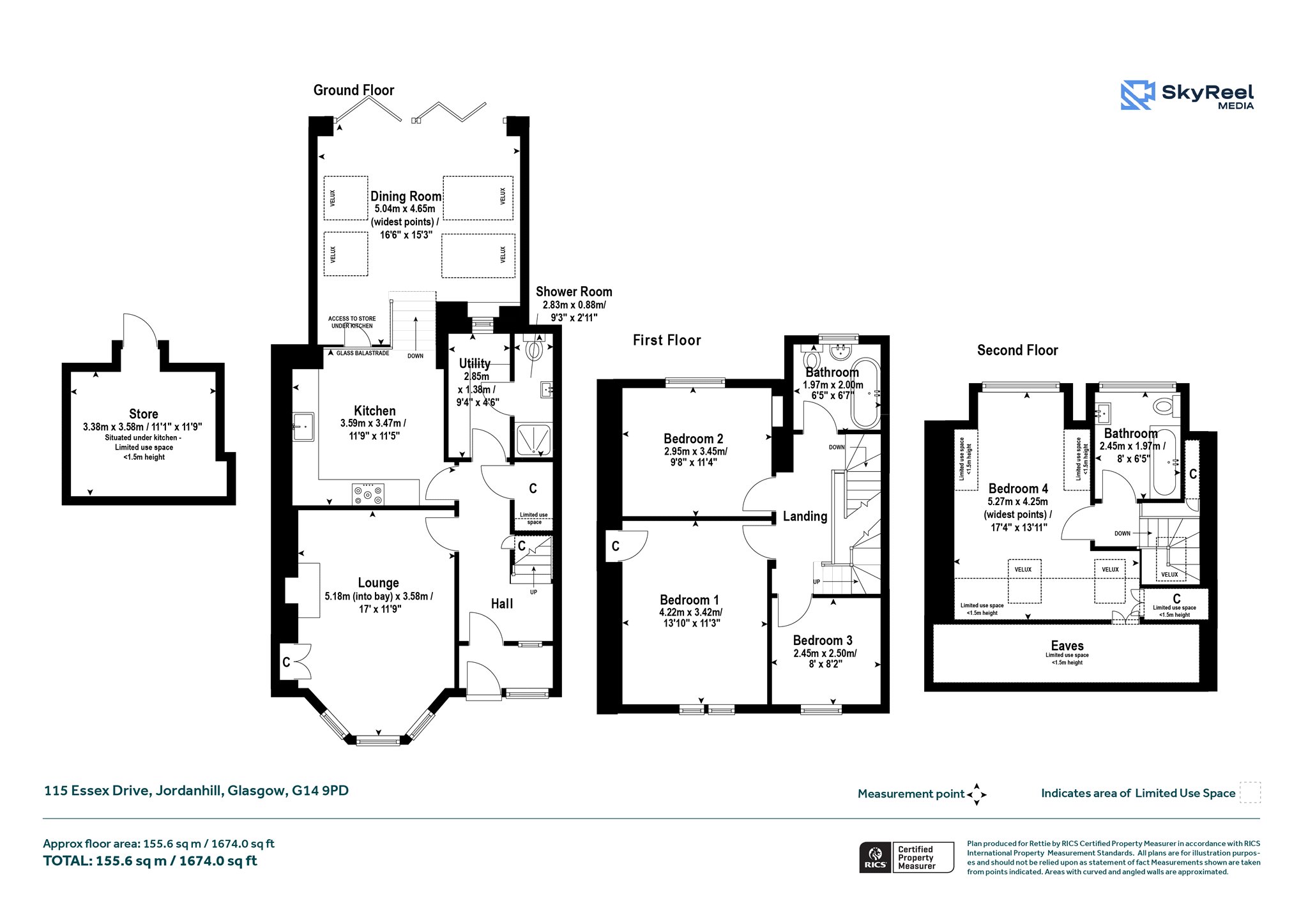
Accommodation
Ground Floor
- Entrance vestibule with stained glass doorway.
- Alluring hallway with traditional wooden flooring and stairway to upper levels with storage underneath.
- Spectacular front lounge brightened by broad three section double glazed bay window and focal point fireplace.
- Fitted kitchen with butcher block worktops, integrated appliances and “Belfast” sink set upon an elevated plateau that descends via contemporary staircase into a breathtaking rear extension.
- Absolutely “show stopping” split level rear extension living area featuring vaulted ceiling with electric skylights, “wall to wall” bi-folding doors and gable clerestory window; completing the light-filled dining/family space that transitions perfectly into the landscaped gardens. The entire extension has the added benefit of gas powered underfloor heating, and an easily accessible storage cellar.
- Handy utility room with drying clothes “pulley”, sleek cabinetry and window to the rear.
- Modern three piece downstairs shower room.
First Floor
- Principal (main) bedroom with two section window to the front.
- Bedroom two with double section window to the rear.
- Bedroom three with single window to the front.
- Three piece bathroom with shower over bath and traditional style sanitary fittings and window to the rear.
- Stairway to upper level with skylight and eave storage.
Second Floor
- Well proportioned attic bedroom with two section dormer window, skylights and generous eave storage.
- Three piece bathroom with shower over bath and two section window to the rear.
Additional Information
- South facing garden.
- Double glazing.
- Gas central heating.
- On street parking.
- Tiling by Porcelanosa.
- Coloured paints by Farrow and Ball.
- List one catchment for Jordanhill School.
More Details
EPC: C
Council Tax: F
Tenure: Freehold
Your home may be repossessed if you do not keep up repayments on your mortgage. There may be a fee for mortgage advice. The actual amount you pay will depend upon your circumstances.
Similar Properties
Looking To Sell Or Let?
Rettie is one of the most trusted and well-respected names in property. Our unrivalled market knowledge helps people from around the world buy, sell, let and develop property in Scotland and the North East of England - from city apartments and rural cottages to large townhouses and prime country homes, farms and estates. We deal with some of the most prestigious properties on the market, but provide the same exceptional standards of service and value for money to all our clients.
