Property Description
Set within a well-maintained blonde sandstone tenement, this beautifully presented one-bedroom second floor apartment offers stylish, South-facing accommodation in a prime location at the edge of Glasgow city centre.
Perfectly suited to young professionals, first-time buyers or students, the property enjoys an abundance of natural light throughout and has been finished to a high standard. The communal areas are neat and well-kept, with secure entry in place and factoring services ensuring the building is maintained to a good standard.
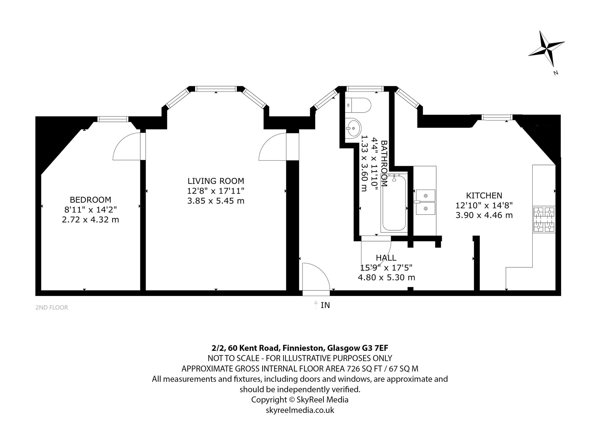
Internally, the property boasts a bright and airy layout with comfortable, well-proportioned rooms. The accommodation comprises a welcoming reception hall, a spacious bay-windowed living room, generous king-sized bedroom, stylish dining kitchen with integrated appliances, and a recently upgraded bathroom featuring a modern white suite and shower-over-bath. With its attractive finish, comfortable dimensions and sought-after outlook, this apartment offers excellent value in a vibrant urban setting.
This attractive one-bedroom home enjoys an excellent, highly central position near Charing Cross. This extremely convenient location places the property within walking and cycling distance of numerous amenities in our bustling city centre and leafy West End. As such, homes in this locale are highly popular with students who are attending Glasgow University, the School of Art and Glasgow Caledonian University. Major employers in the city centre including Iberdrola/Scottish Power and the Barclay’s Northern European Headquarters are both within walking distance of the home for sale, adding to the desirability of high-quality residential homes within this popular pocket. Within minutes of leaving the property on foot, it is possible to access a diverse selection of amenities including everything from shops & supermarkets to restaurants, coffee shops and bars. There is a Tesco Metro within a few minutes’ walk of the property’s front door and Charing Cross itself is home to a lovely collection of bar/restaurants including Chinaskis & The Locale. Kelvingrove Park can be accessed within ten to fifteen minutes of leaving the home for sale on foot, offering extensive inner city green space, playing fields & a world-renowned bandstand concert venue. Kent Road is extremely well-placed for gaining rapid access to the M8 motorway and considering that permit parking is available on street – this could be a brilliant address for anyone who requires frequent access to major road networks in order to commute or work successfully throughout West Central Scotland.
Attributes
- Beautiful one-bedroom second floor tenement apartment
- All rooms South-facing with excellent natural light
- Stylish interior presented in walk-in condition
- Bay window lounge with bright open outlook
- Spacious king-sized bedroom
- Contemporary dining kitchen with integrated appliances
- Modern upgraded bathroom with white suite & shower over bath
- Secure entry system & well-maintained communal areas
- Located in a desirable, central location near Charing Cross
- Permit on-street parking available
- Excellent transport links, with rapid access to M8 motorway
- Ideal for professionals, first-time buyers or students
EPC: D
Council Tax: B
Tenure : Freehold
More Details
Situation: Communal Garden
Council Tax Band: B
Tenure: Freehold
Your home may be repossessed if you do not keep up repayments on your mortgage. There may be a fee for mortgage advice. The actual amount you pay will depend upon your circumstances.
Similar Properties
Looking To Sell Or Let?
Rettie is one of the most trusted and well-respected names in property. Our unrivalled market knowledge helps people from around the world buy, sell, let and develop property in Scotland and the North East of England - from city apartments and rural cottages to large townhouses and prime country homes, farms and estates. We deal with some of the most prestigious properties on the market, but provide the same exceptional standards of service and value for money to all our clients.
