Property Description
Houses of this quality and position will rarely grace the Jordanhill market, mainly because once you own a house of this calibre you will want to live in it and enjoy it for many years to come. It’s been a pleasure to prepare the marketing details for this unique house and the photographs, video etc will indeed say more than countless adjectives.
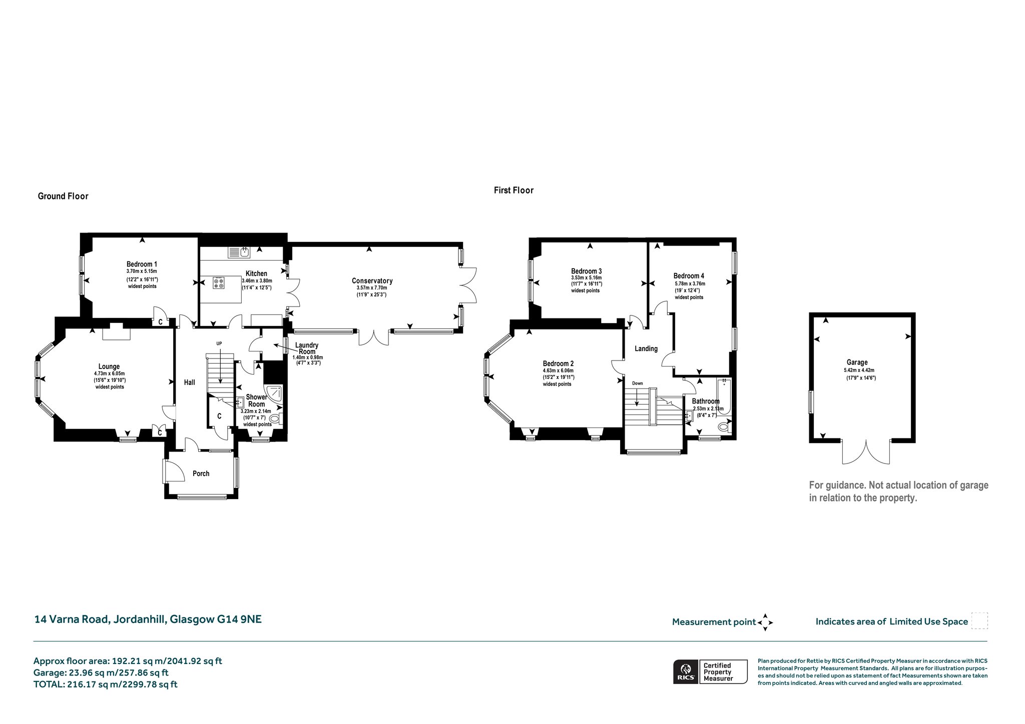
14 Varna Road sits on an incredibly prominent, corner plot with frontage to Eastcote Avenue and the side elevation to Varna Road. This is a stunning seven apartment red sandstone semi detached villa and whilst it could be a five bedroom home it is it currently four bedrooms as two of the upstairs rooms have been joined to form a bigger room.
On entering the reception hall (via the charming front porch) there is an immediate feeling of quality, care, and constant maintenance/improvement. The house is presented in outstanding order and consideration has been given to retaining and enhancing the original features such as the original Oregon pine wooden floors stained/leaded glass and the stunning wooden stairway.
We would finally highlight the amazing “flow” and versatility of the kitchen which links through to the conservatory which is currently used as a wonderful dining/sitting room.
Externally the house continues to impress and provides a beautiful, unusually large south facing back garden which is fully enclosed and at the end of the garden there is a driveway and a substantial garage with a pitched roof.
Accommodation
- Charming entrance porch to the side with stained/leaded glass windows.
- Reception hall entered through the original panelled/stained glass front door. Leaded glass window to the side, original wooden flooring, dado rail, under stair storage and ornate ceiling cornice.
- Stunning main lounge with four section bay window to Eastcote Avenue and an additional window to Varna Road with all windows retaining the stained/leaded glass in the upper sashes. Focal point fireplace with living flame gas fire, wooden flooring, picture rail and ornate ceiling cornice. Original corner press.
- Bedroom one (currently a music room/home office) with two section window to the front, (upper sashes with stained/leaded glass), wooden flooring and storage cupboard off.
- Superbly presented downstairs shower room with three piece white suite and window to the side.
- Useful laundry/utility with window to the rear.
- Extremely stylish, bespoke Bultaup contemporary kitchen with generous units, worktop surfaces and built-in Semiens appliances. Ornate cornice and wooden/glazed doors to the conservatory/dining room/sitting room.
- Absolutely outstanding, unique conservatory with windows (including central doors) on the two main walls. An amazing and particularly versatile space which also gives dining and sitting room area. Reclaimed oak Wooden flooring and a pitched/glazed roof.
- A stairway from the reception hall with beautiful wooden steps and handrail leads to the half and upper landings and the half landing has a three section stained/leaded glass window.
- Upper landing with wooden floor and dado rail.
- Bedroom two (principal) with four section bay window to Eastcote Avenue with outstanding views (upper sashes with stained/leaded glass upper sashes), picture rail, ornate cornice plus two small recessed stained glass windows looking onto Varna Rd.
- Bedroom three with two section window to the front (stained/leaded glass upper sashes)
- Bedroom four with two windows to the front. Bedroom four was formerly two rooms and could be separated.
- Main family bathroom with three piece white suite and window to the side.
- Gas central heating.
- Replacement, double glazed sash and case style windows.
- Really substantial garage measuring 5.42m x 4.42m and driveway
- Beautiful flower filled and lawned garden to the front.
- Outstanding, unusually large south facing garden to the rear and side. This garden is privately screened by mature hedging and also has a lovely paved patio accessed from the conservatory.
EPC: D
Council Tax: G
Tenure : Freehold
More Details
Situation: Private Garden
Council Tax Band: G
Tenure: Freehold
Your home may be repossessed if you do not keep up repayments on your mortgage. There may be a fee for mortgage advice. The actual amount you pay will depend upon your circumstances.
Similar Properties
Looking To Sell Or Let?
Rettie is one of the most trusted and well-respected names in property. Our unrivalled market knowledge helps people from around the world buy, sell, let and develop property in Scotland and the North East of England - from city apartments and rural cottages to large townhouses and prime country homes, farms and estates. We deal with some of the most prestigious properties on the market, but provide the same exceptional standards of service and value for money to all our clients.

