Property Description
This elegant and deceptively spacious traditional Victorian sandstone semi-detached villa is located in the old part of Jordanhill and benefits from a prime location within the highly regarded Jordanhill School catchment area.
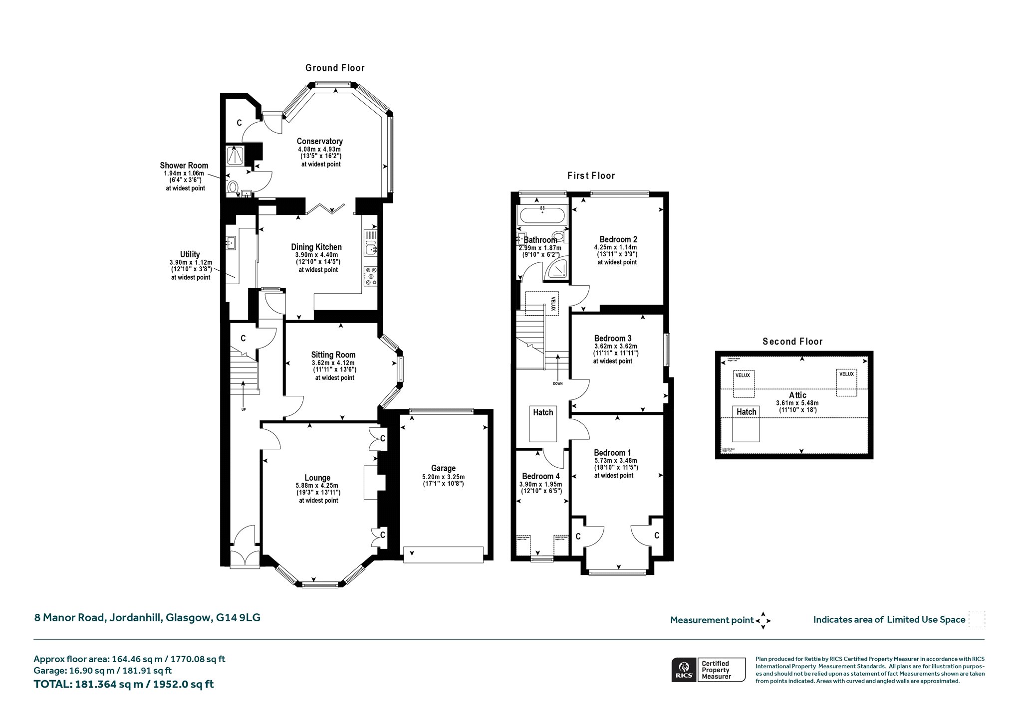
The attractive chalet style frontage imparts a striking sense of distinction and presence, subtly reflecting the impressive depth and thoughtfully arranged seven apartment accommodation beyond. The property retains charming original features which demonstrate the quality of craftsmanship of the era, while tasteful updates throughout have ensured the house is well suited to modern family life.
The decoration has been approached with creativity and care, enhancing the original character while introducing a warm and contemporary feel. Bespoke plantation shutters grace each bedroom, the bathroom, and the front reception room, adding further elegance and practicality. The heart of the home is the bright dining kitchen, complete with integrated appliances and bespoke booth seating. This inviting space flows effortlessly into the rear conservatory, is flooded with natural light and opens directly onto the wonderful landscaped garden. The grounds are thoughtfully designed and well maintained, wrapping around the whole side of the property to offer a good balance of privacy, space, and easy maintenance to alleviate the burden of excessive upkeep.
The property enjoys a very peaceful setting within the heart of Jordanhill, yet remains within easy reach of excellent amenities, transport links and the stunning Victoria Park. Jordanhill School is one of Scotland’s most prestigious and best performing schools, while several highly regarded independent schools are also easily accessible, making this home a compelling consideration for fledgling families.
Accommodation
- Entrance vestibule with double glazed storm doors and bespoke stained glass feature designed by renowned local artist Phil Melville.
- Reception hall with sanded wooden flooring, ceiling cornice, and storage under traditional stairway leading to the upper level.
- Impressive front lounge with broad three section bay window, focal living flame gas fireplace flanked by charming glass paned cupboards, ornate ceiling cornice and delightful ceiling rose.
- Versatile second public room with three section bay window to the side, original rose and cornice; this room could easily serve as a separate dining room or downstairs bedroom, and is currently utilised as a cosy “snug” family room.
- Large fitted dining kitchen with integrated appliances, plentiful dining space via bespoke booth seating.
- Exceptionally practical separate utility room accessed via sliding door, with “Belfast” sink and clothes drying “pulley”.
- Conservatory/extension with five section window and glazed ceiling providing direct access to rear garden.
- Corner walk in storage room with Velux window accessed from the conservatory.
- Beside is a three piece downstairs shower room providing excellent convenience.
- Stairway from entrance hallway leading to an upstairs landing with Velux window.
- Main bathroom with four piece separate bath and shower and double glazed window to the rear.
- Bedroom two located at the rear of the property with double glazed window to the rear and attic access hatch.
- Principal (main) bedroom of good proportions with balance storage adjacent to five section double glazed box bay dormer window, along with original cornice and ceiling rose.
- Bedroom four with window to the front.
- Fully floored, lined, plastered, powered and decorated attic room with downlights, and two Velux windows, having been completed with all relevant permissions granted. This would be ideal for a “den”, home office or storage space.
- Single vehicle garage with power, lighting, window to rear and electrical car charging point.
- Private garden to the front of the property laid to lawn with beautiful planting.
- Enclosed private fully landscaped garden to the rear, with two lawned sections, two patios, all surrounded by mature plants.
- Side garden with shed and apple tree.
- Gas central heating.
- Double glazing.
- Monitored security alarm.
- Off street parking.
More Details
EPC: D
Council Tax: G
Tenure: Freehold
Your home may be repossessed if you do not keep up repayments on your mortgage.
There may be a fee for mortgage advice. The actual amount you pay will depend upon your circumstances. The fee is up to 1% but a typical fee is 0.3% of the amount borrowed.
Similar Properties
Looking To Sell Or Let?
Rettie is one of the most trusted and well-respected names in property. Our unrivalled market knowledge helps people from around the world buy, sell, let and develop property in Scotland and the North East of England - from city apartments and rural cottages to large townhouses and prime country homes, farms and estates. We deal with some of the most prestigious properties on the market, but provide the same exceptional standards of service and value for money to all our clients.
