Property Description
Forming part of an imposing Georgian Townhouse, this third-floor conversion is a superb example of its type in the hugely desirable “Park” district.
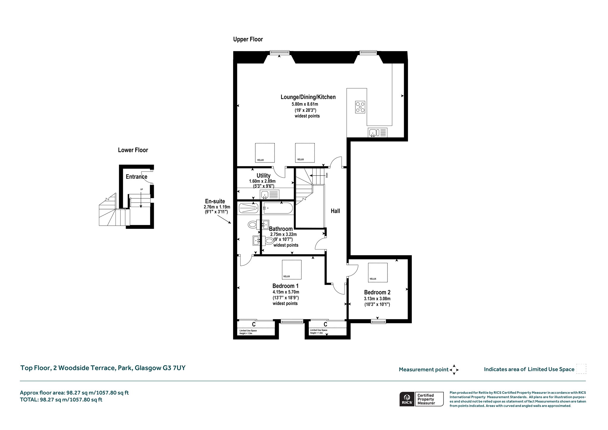
This elegant townhouse is a carefully restored A-listed building originally designed by George Smith and was constructed in 1835. The conversion itself is extremely bright, has a south facing frontage, is comfortably proportioned and fabulous views over the city. The accommodation including a superb main lounge/dining room, a stunning open plan kitchen by Kitchens International, two spacious double bedrooms, a stylish en suite shower room, a contemporary three-piece bathroom and an invaluable utility room off the lounge/dining room. Additional features including secure video entry system, engineered oak flooring, Italian bathroom tiling, Hansgrohe and Geberit bathroom fittings and traditional column radiators
The Park District it is exceptionally well placed for an enviable selection of amenities and the property lies almost equidistant for both the West End and City Centre. The University of Glasgow is also nearby together with the beautiful Kelvingrove Park for those seeking outdoor pursuits.
Accommodation:
- Video security entry system
- Impressive entrance hall with ornate ceiling cornice and cupola above
- Lower reception hall with staircase lading to main reception hall
- Superb main lounge/ding room with two windows to the front, engineered oak flooring and two Velux windows to the rear
- Stunning open plan kitchen complete with a range of base and wall units, integrated Siemens appliances, quality worktops and kitchen peninsula with breakfasting bar
- Bedroom one with window to the rear, Velux window above and fitted wardrobes
- Stylish three-piece en suite shower room
- Bedroom two with window to the rear
- Contemporary three-piece bathroom comprising bath, over bath shower toilet, toilet and wash hand basin
- Gas central heating
- Sash and case double glazed windows
- Double glazed Velux windows
- Private garden area to the rear of the building
- Availability of on street residents’ parking permit
- Access to beautifully maintained pleasure gardens to the front of the building
EPC: B
Council Tax: E
Tenure : Freehold
More Details
Situation: Contact branch
Council Tax Band: E
Tenure: Freehold
Your home may be repossessed if you do not keep up repayments on your mortgage. There may be a fee for mortgage advice. The actual amount you pay will depend upon your circumstances.
Similar Properties
Looking To Sell Or Let?
Rettie is one of the most trusted and well-respected names in property. Our unrivalled market knowledge helps people from around the world buy, sell, let and develop property in Scotland and the North East of England - from city apartments and rural cottages to large townhouses and prime country homes, farms and estates. We deal with some of the most prestigious properties on the market, but provide the same exceptional standards of service and value for money to all our clients.

