Property Description
A grand and incredibly versatile ground & garden conversion with private rear garden in the heart of Dowanhill, seconds walk from Byres Road & Glasgow University.
22 Dowanside Road presents a rare opportunity to acquire a substantial and highly adaptable ground and garden level conversion, set within a handsome blonde sandstone townhouse on one of Dowanhill’s most desirable, tree-lined terraces. Seconds from Byres Road and within easy walking distance of the University of Glasgow, this is a home that delivers the full West End lifestyle with ease – complete with a private enclosed rear garden, south-facing front “well” garden, and expansive, character-filled interior that retains many beautiful original features.
The home is located in the Dowanhill Conservation Area, just 0.2 miles from Hillhead Underground Station, providing quick connections across the city, while an excellent selection of shops, restaurants, and coffee spots – including Waitrose, Blank Street, Ka Pao, and Little Italy etc – are all within a 3–5 minute stroll. This is an exceptional address for those who value architecture, lifestyle, and convenience in equal measure.
Internally, the property is impressive in scale and character – retaining beautiful ornate cornicing, ceiling roses, high skirting boards, and large sash windows. The current layout offers a well-balanced, flexible arrangement of rooms over two levels, with excellent storage and the potential to upgrade or reconfigure to suit the next owner’s requirements.
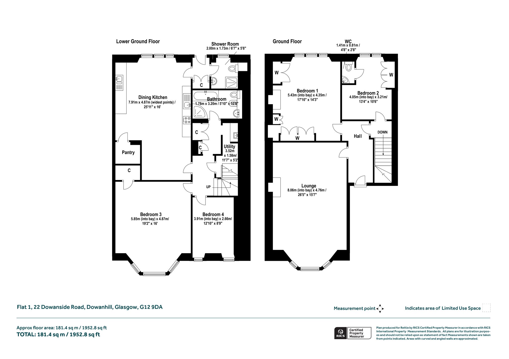
Accommodation Summary
Upon entering via the main door, a welcoming reception hallway leads to a grand bay window lounge, flooded with natural light and adorned with a ceiling rose and intricate cornice work. The principal bedroom lies to the rear, enjoying peaceful views over the private garden, while a second double bedroom—complete with corner WC—completes the main floor accommodation.
A staircase leads to the lower garden level, which offers further generously proportioned accommodation. Here you'll find:
- A third bedroom with front-facing bay window and large walk-in storage cupboard
- A fourth double bedroom, ideal for guests or as a home office
- A large dining kitchen, fitted with a range of traditional units and ample room for family dining
- A rear vestibule with direct access to the rear garden
- A dedicated utility room
- A family bathroom with white four-piece suite including separate shower and bath
- An additional WC conveniently located near the back door
Outdoor Space
One of the home’s standout features is its generous and completely private rear garden, which is enclosed by full height fencing and a beautiful stone boundary wall. A gate provides direct access to Ruthven Lane, offering a secure and practical connection to local amenities. To the front, the well-kept south-facing “well” garden provides a suntrap seating area and enhances the already impressive curb appeal.
Key Features
- Beautiful, spacious ground & garden level conversion
- Held within a traditional blonde sandstone townhouse in Dowanhill
- Approx. 0.2 miles from Hillhead Underground & 0.3 miles to Glasgow University
- Exceptionally close to Byres Road, Waitrose, and a range of acclaimed restaurants & cafés
- Wonderful south-facing front garden + fully enclosed private rear garden
- Generous and flexible layout over two levels
- 3–4 bedrooms, with great scope for reconfiguration or further enhancement
- Grand bay window lounge with ornate cornice and ceiling rose
- Large dining kitchen with utility and garden access
- Beautiful original features and abundant built-in storage
- Family bathroom + additional WC + en suite-style WC in second bedroom
- Gas central heating and traditional sash windows (some lower front-facing windows are sash and casement double glazed examples)
- Ideal for families, professionals, or those seeking a prime West End garden flat
EPC: C
Council Tax: F
Tenure : Freehold
More Details
Situation: Private Garden
Council Tax Band: F
Tenure: Freehold
Your home may be repossessed if you do not keep up repayments on your mortgage. There may be a fee for mortgage advice. The actual amount you pay will depend upon your circumstances.
Similar Properties
Looking To Sell Or Let?
Rettie is one of the most trusted and well-respected names in property. Our unrivalled market knowledge helps people from around the world buy, sell, let and develop property in Scotland and the North East of England - from city apartments and rural cottages to large townhouses and prime country homes, farms and estates. We deal with some of the most prestigious properties on the market, but provide the same exceptional standards of service and value for money to all our clients.

