Property Description
Situated in the heart of Glasgow’s desirable Hyndland district, this beautifully presented two-bedroom flat occupies a prominent top floor position and offers a perfect blend of traditional charm and modern living. Contained within a red sandstone tenement, this bright and spacious property enjoys elevated views over the leafy West End and boasts period features alongside contemporary upgrades.
Novar Drive itself is steeped in character and history, forming part of the prestigious Hyndland Conservation Area. Developed in the late 19th and early 20th centuries, the street is renowned for its distinctive Victorian and Edwardian architecture.
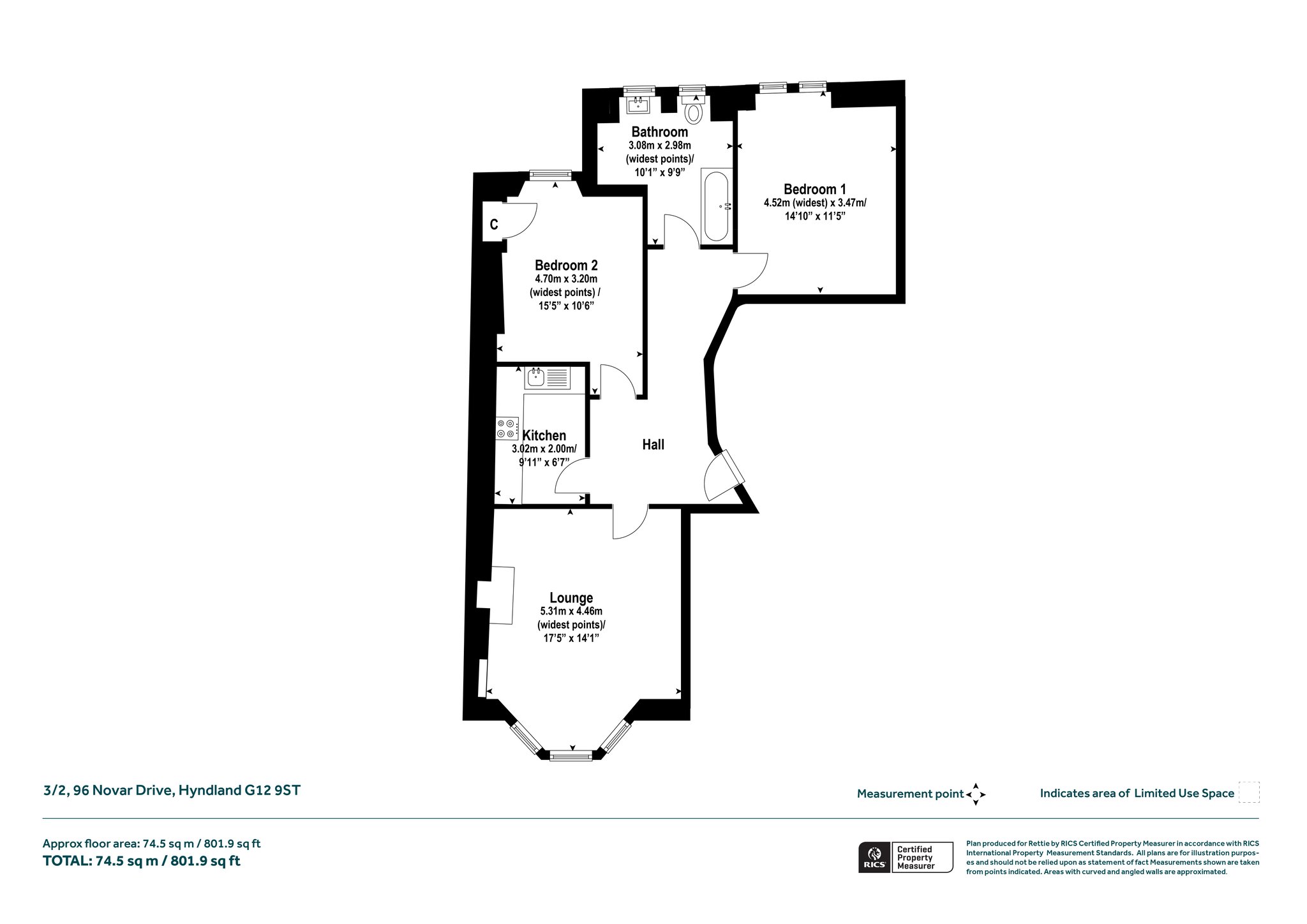
Inside, the flat features a welcoming entrance hallway, a superb bay windowed lounge, a separate modern kitchen, two spacious double bedrooms, and a contemporary three-piece bathroom. The top-floor position provides a peaceful retreat, with ample natural light and open rooftop views.
Residents of Hyndland benefit from an array of outstanding local amenities. The nearby Hyndland Road and Byres Road offer an eclectic mix of independent cafés, restaurants, boutique shops, and delis. The area is also well-served by excellent transport links including Hyndland railway station just a short walk away, connecting to Glasgow City Centre in minutes.
Green spaces are abundant, with the scenic Hughenden Playing Fields, Botanic Gardens, and Kelvingrove Park all within easy reach. The property also falls within the catchment for some of Glasgow’s top-rated schools and is conveniently located for access to Glasgow University, Queen Elizabeth University Hospital, and major road networks.
This stunning flat is ideal for professionals and first-time buyers, or anyone seeking a stylish home in one of Glasgow’s most historic and vibrant neighbourhoods.
Accommodation:
- Security entry system
- Communal entrance close
- Broad and welcoming reception hall
- Superb lounge with three section bay window, shelved press and focal point fireplace
- Separate modern kitchen complete with a range of base and wall units and appliances
- Bedroom one with two section window to the rear
- Bedroom two with window to the rear
- Stylish three-piece bathroom comprising bath, over bath shower, toilet and wash hand basin. Two windows to the rear
- Gas central heating
- Double glazing
- Shared garden to the rear of the building
- Availability of on street residents’ parking permit
EPC: C
Council Tax: D
Tenure : Freehold
More Details
Situation: Communal Garden
Council Tax Band: D
Tenure: Freehold
Your home may be repossessed if you do not keep up repayments on your mortgage. There may be a fee for mortgage advice. The actual amount you pay will depend upon your circumstances.
Similar Properties
Looking To Sell Or Let?
Rettie is one of the most trusted and well-respected names in property. Our unrivalled market knowledge helps people from around the world buy, sell, let and develop property in Scotland and the North East of England - from city apartments and rural cottages to large townhouses and prime country homes, farms and estates. We deal with some of the most prestigious properties on the market, but provide the same exceptional standards of service and value for money to all our clients.
