8 Hutton, Westerlands Park, Anniesland, Glasgow, G12 0FF
Property Description
This substantial and immediately impressive, detached villa is of a highly desirable and rarely available style and is located within the popular Westerlands Park development by Stewart Milne.
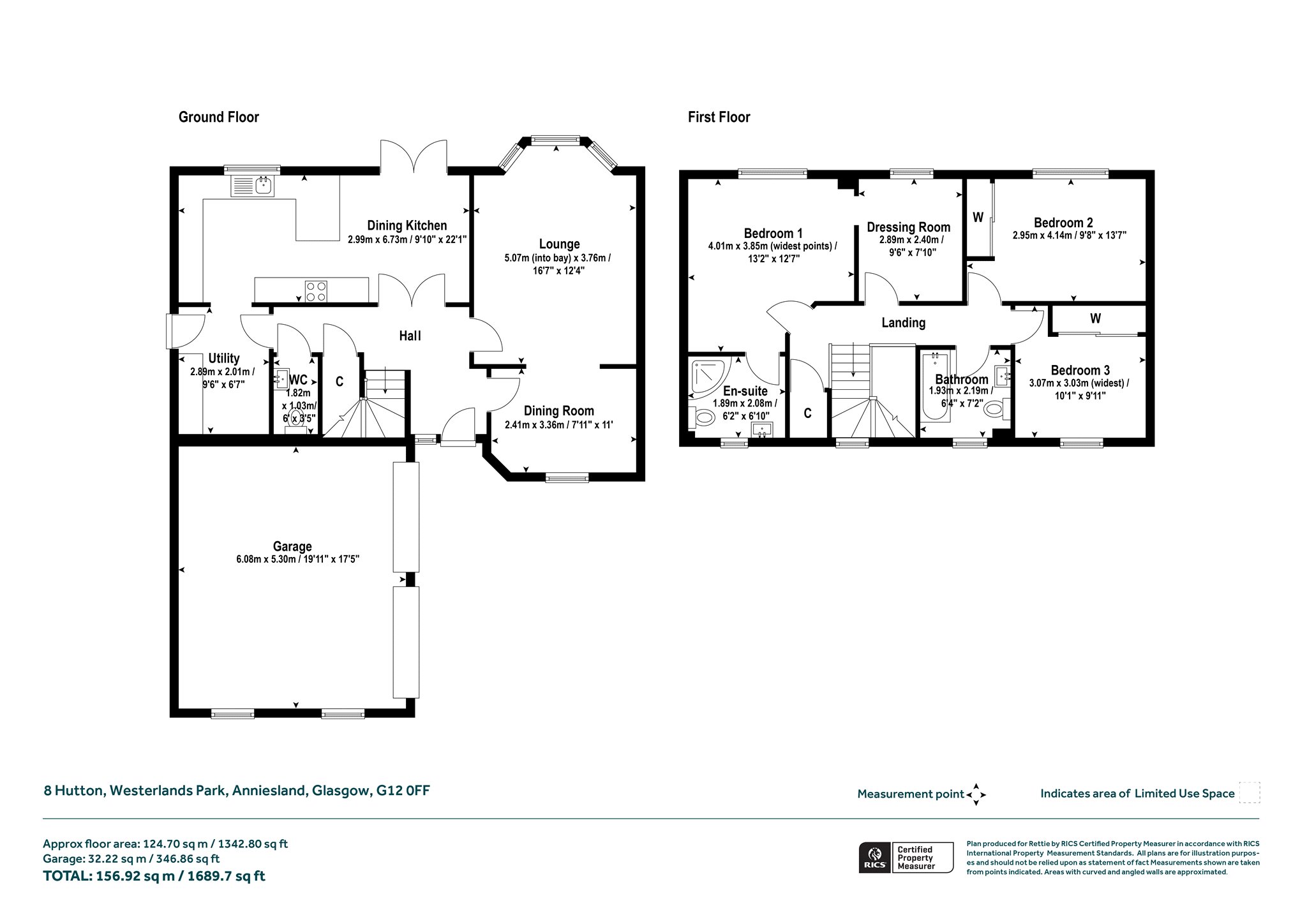
Internally the property is presented in exceptional order throughout, benefits for excellent natural light and is of generous proportions, extending to circa 1689 square feet. The accommodation is formed over two levels and includes a fabulous bay windowed lounge, a formal dining room, a stunning dining kitchen and three spacious double bedrooms. In addition, there is an invaluable utility room, a stylish two-piece WC, a contemporary en suite shower room and a modern three-piece bathroom. There is ample storage including under stair storage, an impressive dressing room off bedroom one and fitted wardrobes in bedroom two and bedroom three. Externally, there is a double width driveway, a double garage and a immaculately maintained, fully enclosed rear garden.
Hutton is a peaceful central address located within an extremely desirable modern development. Just off Great Western Road, a few minutes’ walk from Anniesland Cross – this attractive address is extremely popular with professional couples and growing families in search of a highly convenient living position. The local area has an enviable selection of amenities including schools, leisure facilities and supermarkets to public transport links and several restaurants & coffee shops. This area is also particularly well-placed for commuters who require frequent access to rail services, being within walking distance of Anniesland Rail Station. Additionally, Westerlands Park is well-placed for gaining quick access to major road networks that link up quickly with the M8 & M74 motorways, making this an ideal base for anyone who travels throughout West Central Scotland for business.
Accommodation:
- Covered, outer porch with steps from the driveway
- Broad and welcoming reception hall with staircase to upper level and under stair storage cupboard
- Stylish downstairs WC comprising two-piece suite
- Fabulous formal lounge with three section bay window to the rear
- Formal dining room with two section window to the front
- Outstanding dining kitchen complete with a range of base and wall units, integrated appliances, three section window to the rear and double doors providing direct access to the rear garden
- Invaluable utility providing additional storage, window to the side and door to the side of the property
- Upper landing with storage cupboard off
- Bedroom one with three section window to the rear
- Stylish en suite shower room comprising three-piece suite. Window to the front
- Impressive dressing room with fitted wardrobes and two section window to the rear
- Bedroom two with three section windows to the front and fitted wardrobes
- Bedroom three with two section window to the front and fitted wardrobes
- Modern three-piece bathroom comprising bath, over bath shower, toilet and wash hand basin. Window to the front
- Gas central heating
- Double glazing
- Superb, fully enclosed rear garden with area of level lawn and patio area
- Double width driveway
- Double garage
EPC: C
Council Tax: G
Tenure : Freehold
More Details
Situation: Private Garden
Council Tax Band: G
Tenure: Freehold
Your home may be repossessed if you do not keep up repayments on your mortgage. There may be a fee for mortgage advice. The actual amount you pay will depend upon your circumstances.
Similar Properties
Looking To Sell Or Let?
Rettie is one of the most trusted and well-respected names in property. Our unrivalled market knowledge helps people from around the world buy, sell, let and develop property in Scotland and the North East of England - from city apartments and rural cottages to large townhouses and prime country homes, farms and estates. We deal with some of the most prestigious properties on the market, but provide the same exceptional standards of service and value for money to all our clients.
