2/2, 1846 Great Western Road, Anniesland, Glasgow, G13 2TN

Anniesland, Glasgow, G13 2TN
Sold
Pin View on map

Offers Over £195,000

House

Duplex Apartment

Bed

4 Bedrooms

Bathroom

2 Bathrooms

Reception

1 Reception Room

Size

1,219 sq.ft

Tree

Communal Garden

Parking

On Street/Permit

Telephone

Property Description

CLOSING DATE TUESDAY 27 TH MAY AT 11AM

This immediately impressive and rarely available four-bedroom duplex apartment occupies a prominent second floor position within an attractive red sandstone building and benefits from south facing aspects to the front. 1846 Great Western Road occupies an incredibly convenient West End location and is situated in the highly popular Anniesland area. The property is exceptionally well placed for an enviable selection of local amenities including supermarket shopping, schooling and excellent transport links including Anniesland Railway Station.

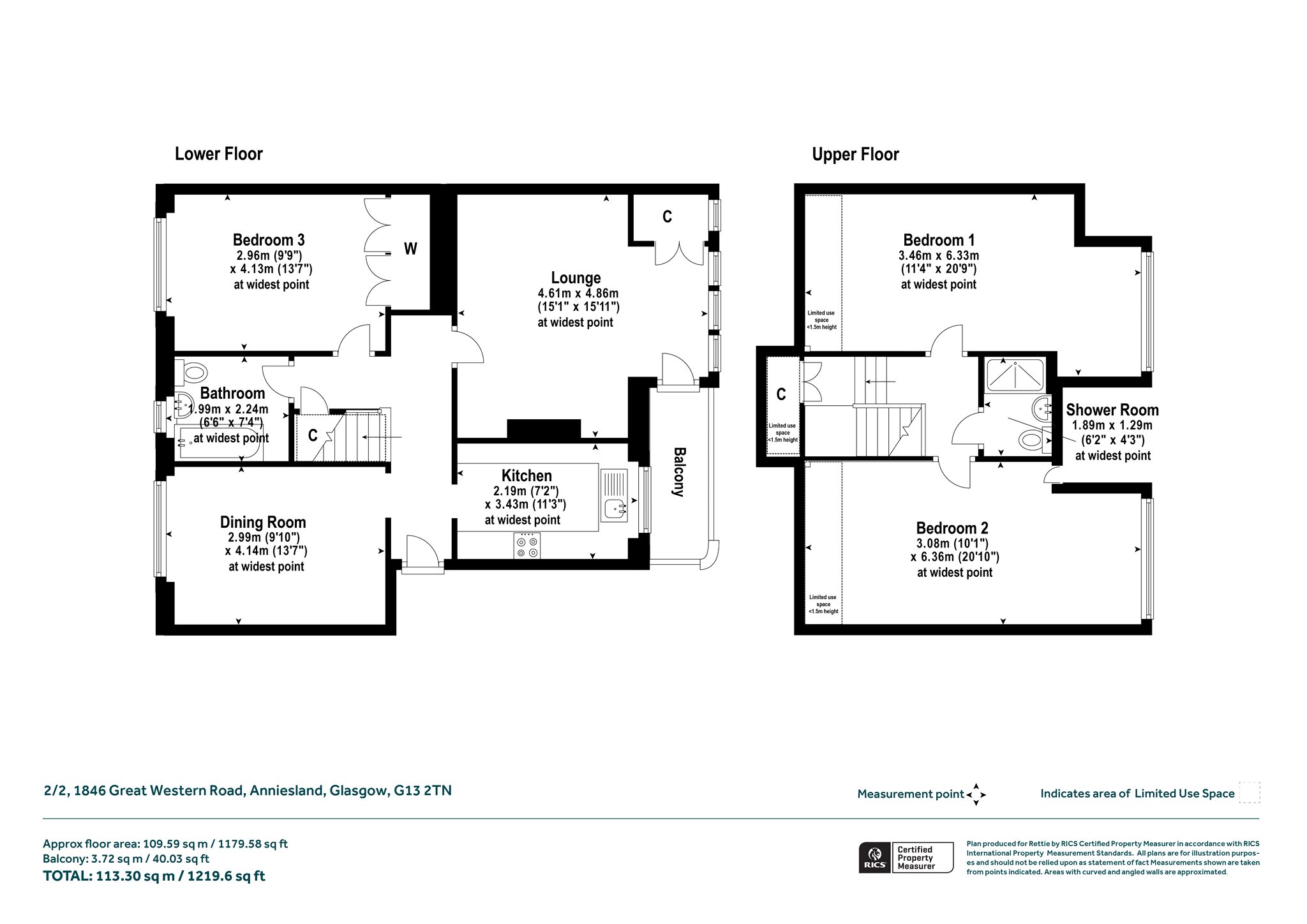
The internal accommodation, formed over two levels, is immaculately presented throughout, benefits from excellent natural light, is versatile and has a comfortable feel. Notable highlights include a superb main lounge/dining room, a separate kitchen, four spacious and adaptable double bedrooms, a downstairs bathroom and a modern three-piece shower room on the upper level. We would highlight the useful storage cupboard off the reception hall together with additional storage accessed from the half landing. In addition, there is a private south facing balcony and well-maintained shared garden to the rear of the building.

Accommodation:

  • Security entry system
  • Communal entrance close
  • Welcoming reception hall with under stair storage cupboard staircase to upper level
  • Superb main lounge with three section window to the front, useful storage cupboard off and access to private, south facing balcony
  • Separate kitchen complete with a range of base and wall units, appliances and two section window to the front
  • Bedroom three with two section window to the rear and fitted wardrobes
  • Adaptable dining room/fourth bedroom with two section window to the rear and wooden flooring
  • Three-piece bathroom comprising bath, over bath shower, toilet and wash hand basin
  • Upper landing (storage space access from half landing)
  • Bedroom one with two section window to the front
  • Bedroom two with two section window to the front
  • Modern three-piece shower room
  • Gas central heating
  • Double glazing
  • Well maintained shared garden to the rear of the building

EPC: D
Council Tax: D
Tenure : Freehold

More Details

Situation: Communal Garden
Council Tax Band: D
Tenure: Freehold

Contact Us

Lyndsey Mercer

Lyndsey Mercer

Sales Negotiator
Craig Roberts

Craig Roberts

Mortgage & Protection Advisor
Mortgage Calculator
Monthly payments
Please set an interest rate.

Your home may be repossessed if you do not keep up repayments on your mortgage. There may be a fee for mortgage advice. The actual amount you pay will depend upon your circumstances.

Tax Calculator
LBTT calculator for properties purchased in Scotland. Stamp Duty calculator for properties purchased in England.
Land & buildings transaction tax (LBTT)
= £0
New build house with stone and timber cladding

Looking To Sell Or Let?

Rettie is one of the most trusted and well-respected names in property. Our unrivalled market knowledge helps people from around the world buy, sell, let and develop property in Scotland and the North East of England - from city apartments and rural cottages to large townhouses and prime country homes, farms and estates. We deal with some of the most prestigious properties on the market, but provide the same exceptional standards of service and value for money to all our clients.